Three Horseshoes, The Pound, Knockholt, Sevenoaks, TN14 7LD
Size
Ask agent
Tenure
Leasehold
EPC
Parking
Ask agent
- Primary use
- Pub
Key features
- Traditional public house in village setting
- Public bar (40), restaurant (54), bar (30)
- Beer garden/outside bar/stage area
- Car park (25)
- 6-bedroom owner's accommodation
- Excellent opportunity for destination venue. Energy Rating D
- Annual rent: £60,000
- Christie & Co Ref: 8856079
Description
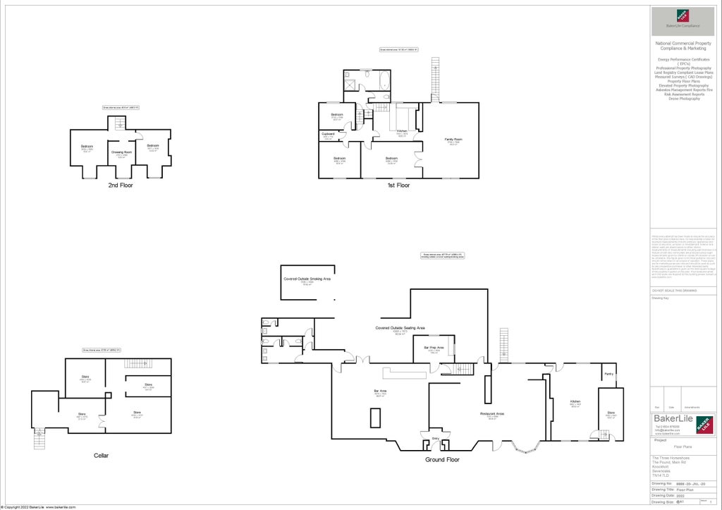
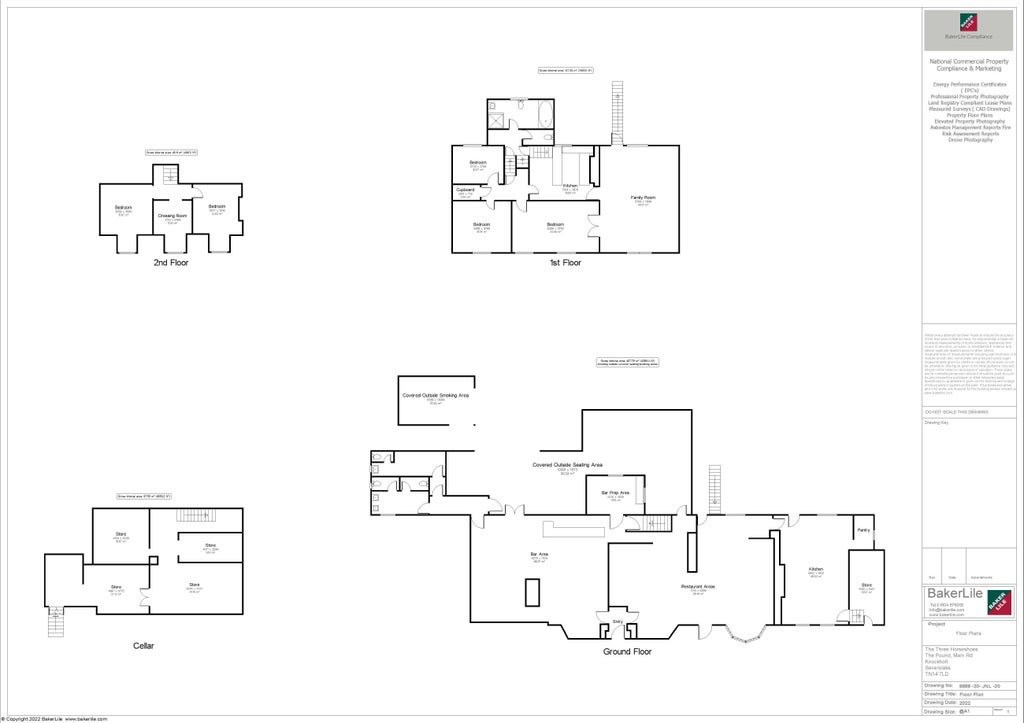
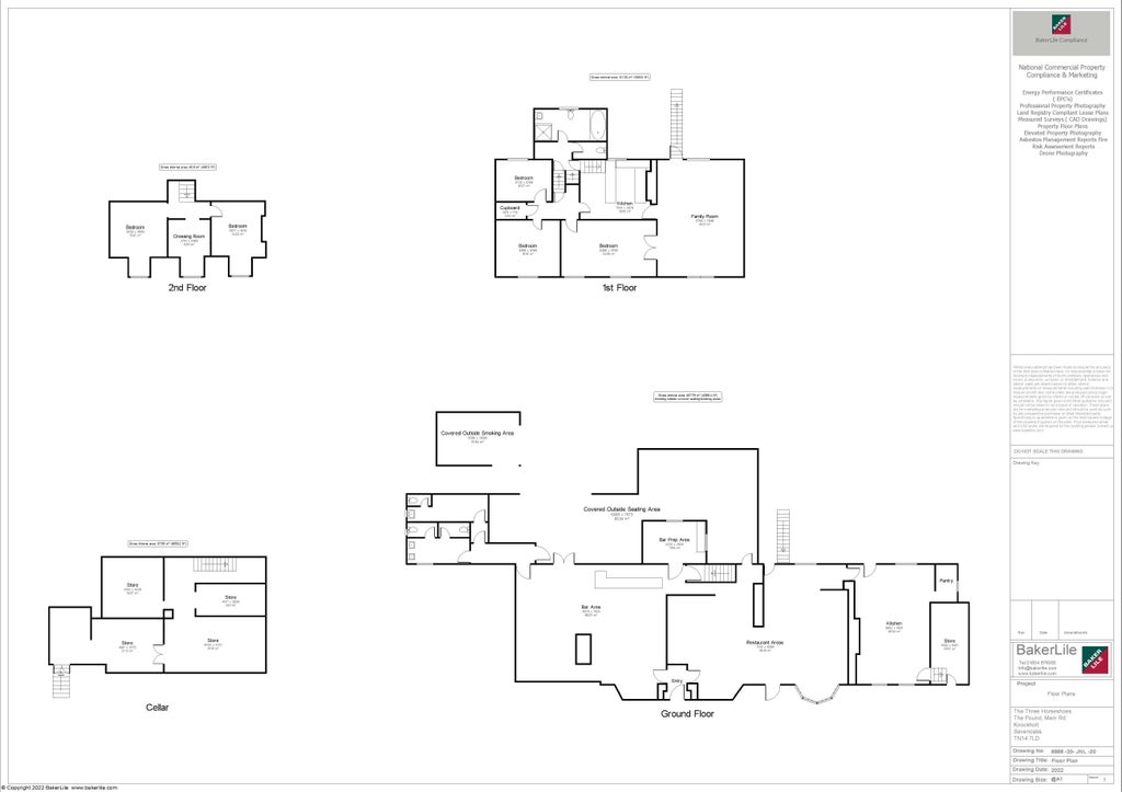
Detached three-storey property of brick construction with painted elevations to the front under a pitched slate tiled roof.
LocationLocated in the picturesque village of Knockholt, approximately two miles from the south eastern section of the M25 (Junction 5) and the M26 and five miles to the north west of the affluent town of Sevenoaks. The business is situated in an area known as The Pound, at the junctions of Pound Lane, Harrow Road, Knockholt Main Road and Chevening Lane. The immediate area comprises residential housing with Knockholt mainline station approximately two miles away.
Internal DetailsGround floor public bar, open plan trading area (40) with bar servery and access to the rear beer garden. Ladies and gents WCs. Restaurant and bar, formal table seating (54) and lounge style bar seating (30). Separate bar servery linking to the public bar and rear ancillary space which is currently used for storage and coffee making. To the side of the restaurant is a fitted commercial kitchen with additional larder and storage space.
Basement beer cellar and storage and rooms.
All trade fixtures and fittings will be included in the sale and our clients will provide a trade inventory.
External DetailsLarge public beer garden, covered smoking area, covered area outside (c.100), bar and covered stage (c. 11,500 sq ft). Car park (25 parking spaces).
Agent's Note:
The additional attached buildings to the main structure include a single storey pitched roof triple space garage (not included in the sale). The sellers are in the process of obtaining planning consent to convert this into residential dwellings.
First floor:
Three bedrooms, lounge/dining room, kitchen, bathroom and separate WC.
Second floor:
Attic conversion is currently set up as three bedrooms.
The owners are selling after many years in hospitality and are now looking for a better work/home life balance.
We thoroughly recommend a viewing to fully appreciate this opportunity.
The business is predominantly owner run with a complement of five full time and three part time casual staff.
Trading InformationTrading information will be supplied following a formal viewing.
Trading HoursMonday - Thursday: 12–10pm
Friday & Saturday - 12–11 pm
Sunday - 12–8 pm
New free of tie lease - terms to be agreed.
Business RatesCurrent rateable value (1 April 2023 to present) £13,900.
This is the rateable value for the property. It is not what you pay in business rates or rent. Your local council uses the rateable value to calculate the business rates bill.
Premises Licence.
- Service charge
- Ask agent
- Business rates
- Ask agent
- Use class
- Ask agent
- Listed building
- Ask agent
- Business for sale
- Yes
- Tenure
- Leasehold
- Length of lease
- Ask agent
An Energy Performance certificate helps you understand the current energy efficiency of a property.
Read more about EPC requirementsAsk agent
- BREEAM rating
- Ask agent
- Environmental description
- Ask agent
Brochure
Three Horseshoes, The Pound, Knockholt, Sevenoaks, TN14 7LD
We’re the leading specialist advisor for buying and selling businesses in our sectors - hotels, pubs, restaurants, childcare, healthcare, convenience retail, leisure and medical.
If you’re looking to buy or sell a business in our specialist sectors – from a pharmacy in Sussex to a hotel in Austria – our expert advice and collaborative support will help you achieve your goals. You may be an independent first-time buyer or a multinational adding to your portfolio; either way, you’ll discover that our personalised service is focused on helping you achieve your ambitions.
Clients have access to our carefully managed network of potential buyers. This unique database of contacts has been continually developed by our advanced IT capabilities and benefits from both our years of experience developing our network and our wide geographical coverage.
Where we work
We employ the largest team of sector specialists in the UK and the largest group of hotel specialists in Europe, providing professional brokerage and advisory services from offices in major cities across Britain and Europe. And because we’ve been doing this for over 80 years, we know our sectors and local markets inside out. We work closely with our clients to guide and conclude transactions of any size, covering hotels, restaurants and pubs, leisure, forecourts and convenience retail businesses, social care and elderly care, childcare & education facilities, dental practices and pharmacies.
Our professional services
We offer unrivalled insight, experience and expertise across your choice of services, including brokerage, consultancy, finance, development, investment, surveying, rent reviews, dispute resolution, corporate valuation, and turnaround & recovery. These services are all underpinned by our in-depth market intelligence and leading-edge technology. And we’re accredited by the Royal Institution of Chartered Surveyors (RICS), so you can trust in our professionalism.
What makes us tick
Businesses are about people, so relationships matter to us. We bring an integrity and transparency to business which can be all too rare – and that’s why people trust us. Our clients will attest to our genuine desire to help achieve their objectives, our attention to detail, and our tireless hard work on their behalf. We understand that buying a business can bring its own pressures and strains; needs can change, plans may need to be adjusted, and opportunities can come and go. But we’re always here, a constant, flexible and reliable force you can count on.
Our opening hours for all offices:
Mon – Fri, 9am – 5.30pm
Your search history
You have no recent searches
Disclaimer - Property reference 8856079-lh. The information displayed about this property comprises a property advertisement. Rightmove.co.uk makes no warranty as to the accuracy or completeness of the advertisement or any linked or associated information, and Rightmove has no control over the content. This property advertisement does not constitute property particulars. The information is provided and maintained by Christie Owen & Davies Ltd, Pubs & Restaurants. Please contact the selling agent or developer directly to obtain any information which may be available under the terms of The Energy Performance of Buildings (Certificates and Inspections) (England and Wales) Regulations 2007 or the Home Report if in relation to a residential property in Scotland.

























