Chiltern House, Marsack Street, Caversham, Reading
Size
5,465
Tenure
Freehold
EPC
Ask agent
Parking
Ask agent
- Primary use
- Traditional office
- Capacity
- Ask agent
- Desks
- Ask agent
Building amenities
Additional costs may apply for some services – please check the full property description for more details.
- Parking
- Transport links
- Well connected
- Central heating
- Natural light
- Open plan
- Partitioned offices
Key features
- Freehold Office
- Excellent Location With Easy Access to Paddington via Reading mainline
- Ample Parking on Site
- Development Opportunity subject to necessary consents
- Vacant Posession
- Elected for VAT
Description
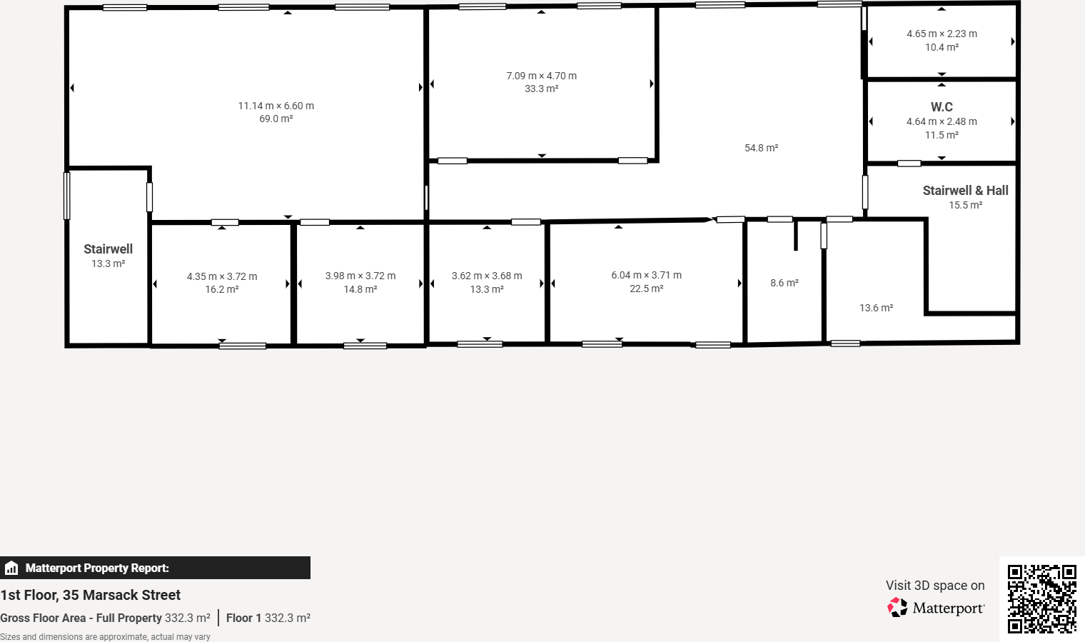
This two-storey office building is situated in a well-established commercial location in Caversham. Constructed in traditional brick with modern glazing, the property provides a mix of open-plan and cellular office accommodation across both floors. Each floor measures approximately 2,700 Sqft, with flexible layouts suitable for a range of occupiers. The building benefits from suspended ceilings with recessed lighting, perimeter trunking for data and power, and central heating throughout. Ample on-site parking is available around both sides of the property.
Subject to the usual consents, the property offers scope for refurbishment, reconfiguration, or potential redevelopment for alternative commercial or residential use. The prominent position in a mixed-use area makes it particularly attractive for owner-occupiers, investors, or developers seeking to add value.
- Service charge
- Ask agent
- Business rates
- Ask agent
- Use class
- E
- Listed building
- No
- Floors in building
- 1
- Business for sale
- No
An Energy Performance certificate helps you understand the current energy efficiency of a property.
Read more about EPC requirements- BREEAM rating
- Ask agent
- Environmental description
- Ask agent
Brochure
Chiltern House, Marsack Street, Caversham, Reading
Your search history
You have no recent searches
Disclaimer - Property reference ChilternHouse. The information displayed about this property comprises a property advertisement. Rightmove.co.uk makes no warranty as to the accuracy or completeness of the advertisement or any linked or associated information, and Rightmove has no control over the content. This property advertisement does not constitute property particulars. The information is provided and maintained by BWP Commercial Property, Home Counties. Please contact the selling agent or developer directly to obtain any information which may be available under the terms of The Energy Performance of Buildings (Certificates and Inspections) (England and Wales) Regulations 2007 or the Home Report if in relation to a residential property in Scotland.














