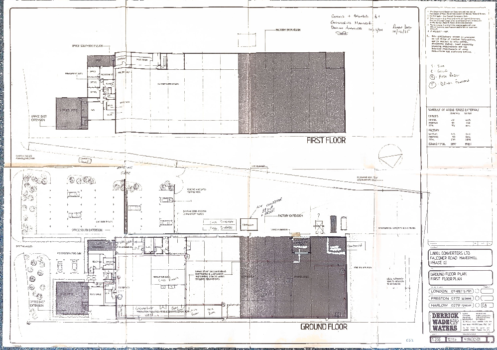
Falconer Road, Haverhill, CB9 7XU
Size
30,069
Tenure
Freehold
EPC
Parking
34
- Primary use
- Distribution warehouse
Key features
- Gross internal area of 30,069 sq ft (2.793 sq m)
- Internal eaves of 5.16 m
- Incoming power supply up to 450 kVA
- 34 onsite car parking spaces
- Prominent position at entrance to Falconer Road
- Excellent access to Cambridge and the A11/M11
Description
The main unit is of steel portal frame construction under a pitched roof with steel profile clad elevations & roof. The internal eaves is 5.1m to the haunch, two level access electric roller shutter doors are provided. The factory specification includes gas space heating, LED lighting, air handling system and up to 450kVA power supply. A small mezzanine store is also provided.
The offices are of steel framed construction set under a flat roof with brick elevations and double glazed windows. The accommodation comprises
entrance lobby, meeting rooms, kitchen, WCs and open plan office areas to ground and first floor. The specification includes suspended ceilings with
recessed lighting, gas fired wall mounted radiators, comfort cooling and perimeter trunking.
34 car parking spaces are provided to the fore of the offices. The yard runs to the length of the southern elevation of the building with an undeveloped area at the western end which could be capable of further development (stp).
Mezzanine storage provides a further 1,768 sq ft (164.21 sq m). The site area is 1.97 acres (0.798 ha).
The property is prominently positioned at the junction of Falconer Road and Sturmer Road, one mile southeast of Haverhill town centre and with excellent access to the A1017 & A1307 providing direct links to Cambridge, the A11 & M11.
Haverhill is the fastest growing town in Suffolk with a current population of 27,000 (Census 2021). Major occupiers in the town include Culina Logistics, TAIT, Sanofi, Ardex, Petrow Food Group and Sigma Aldrich.
temporary leased warehouse is provided at the rear of the site. The warehouse can be removed or the lease can be assigned by separate
agreement.
- Clear height
- Ask agent
- Yard depth
- Ask agent
- Service charge
- Ask agent
- Business rates
- Ask agent
- Use class
- E, B2, B8
- Listed building
- No
- Floors in building
- 1
- Business for sale
- No
An Energy Performance certificate helps you understand the current energy efficiency of a property.
Read more about EPC requirementsAsk agent
- BREEAM rating
- Ask agent
- Environmental description
- Ask agent
Brochure
Your search history
You have no recent searches
Disclaimer - Property reference 357811-1. The information displayed about this property comprises a property advertisement. Rightmove.co.uk makes no warranty as to the accuracy or completeness of the advertisement or any linked or associated information, and Rightmove has no control over the content. This property advertisement does not constitute property particulars. The information is provided and maintained by Hazells, Bury St Edmunds. Please contact the selling agent or developer directly to obtain any information which may be available under the terms of The Energy Performance of Buildings (Certificates and Inspections) (England and Wales) Regulations 2007 or the Home Report if in relation to a residential property in Scotland.















