16 Northdown Street, 16A Northdown Street, London, N1 9BG
Size
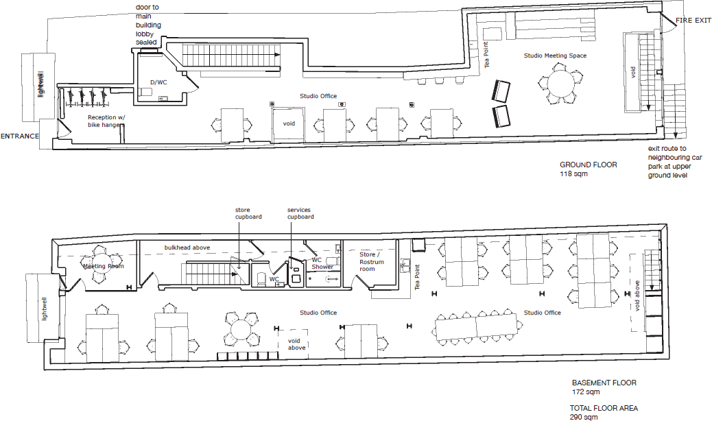
947 - 2,561
Tenure
Leasehold
EPC
Ask agent
Parking
Ask agent
- Primary use
- Traditional office
- Capacity
- Ask agent
- Desks
- Ask agent
Key features
- Self-contained office headquarters
- Long leasehold interest available
- Excellent natural light
- Secure cycle storage
- Shower facilities
- Air conditioning installed throughout
- High ceiling heights (minimum approx. 2.75m)
- Four-minute walk to King’s Cross Station
Description
The lower ground floor benefits from excellent natural light via front, rear and central lightwells, creating a bright and attractive working environment. The building also benefits from strong ceiling heights (minimum approx. 2.75m), air conditioning installed throughout, secure cycle storage and shower facilities, together with kitchenettes on both floors. The space currently has a creative character but could easily be adapted to suit a more corporate or minimalist office fit-out.
The property is located on Northdown Street in the King’s Cross area, one of London’s most established and rapidly evolving commercial districts.
King’s Cross Station and St Pancras International are both within a short walk, providing exceptional connectivity across London via the Underground network as well as national rail services and international connections via Eurostar.
The surrounding area offers an extensive range of amenities, including restaurants, cafés, bars and retail operators. Nearby destinations such as Coal Drops Yard, Granary Square and the wider King’s Cross estate provide a vibrant mix of food, leisure and cultural offerings, making the location highly attractive for businesses seeking a well-connected central London headquarters.
All viewings are strictly by appointment and should be arranged via the sole selling agents, Newmark.
- Service charge
- Ask agent
- Business rates
- Ask agent
- Use class
- E
- Listed building
- Ask agent
- Business for sale
- No
- Tenure
- Leasehold
- Length of lease
- Ask agent
An Energy Performance certificate helps you understand the current energy efficiency of a property.
Read more about EPC requirementsAsk agent
- BREEAM rating
- Ask agent
- Environmental description
- Ask agent
Brochure
16 Northdown Street, 16A Northdown Street, London, N1 9BG
Newmark in the UK provides innovative, bespoke advisory across the full spectrum of commercial real estate services to a wide range of clients; many of the world’s most successful companies trust us with every aspect of their real estate. Newmark’s UK business includes entities that operated previously as BH2, Gerald Eve and Harper Dennis Hobbs (HDH).
Your search history
You have no recent searches
Disclaimer - Property reference 354199-1. The information displayed about this property comprises a property advertisement. Rightmove.co.uk makes no warranty as to the accuracy or completeness of the advertisement or any linked or associated information, and Rightmove has no control over the content. This property advertisement does not constitute property particulars. The information is provided and maintained by Newmark, HDH. Please contact the selling agent or developer directly to obtain any information which may be available under the terms of The Energy Performance of Buildings (Certificates and Inspections) (England and Wales) Regulations 2007 or the Home Report if in relation to a residential property in Scotland.



























