The Mundy Arms, 95 Ashbourne Road, Mackworth, Derby, DE22 4LZ
Size
Ask agent
Tenure
Leasehold
EPC
Parking
Ask agent
- Primary use
- Pub
Key features
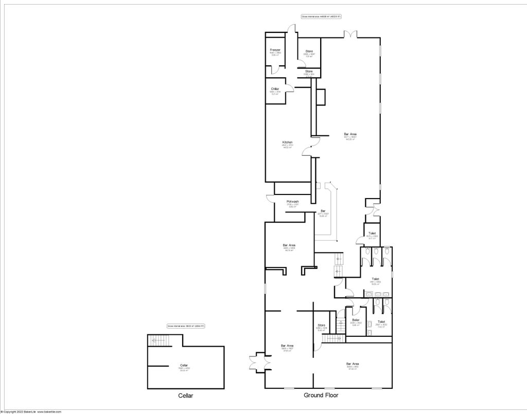
- c.2800 SqFt of trading space
- Large former Greene King Pub
- New Internal Free of Tie lease
- 30 Hotel Rooms on site
- Rent - £35,000 pa
- Roadside Presence on A52 | Energy Rating D
- Annual rent: £35,000
- Christie & Co Ref: 5752411
Description
The Mundy Arms is a former Greene King Pub and Premier Inn Hotel. The site was sold in 2024 to a private owner who runs the hotel and is now seeking to grant a new lease to an experienced operator to run the Pub & Restaurant.
The pub benefits from multiple dining rooms with a large and welcoming bar, totalling over 2,800 SqFt, with an estimated 140/150 internal covers
The Mundy Arms is located in Mackworth, a well‑connected suburban area of Derby, just 3.4 miles from Derby city centre, close the the busy Markeaton roundabout.
The Mundy Arms benefits from a highly visible roadside presence on the A52 corridor from Derby to Ashbourne, providing easy access for both locals and visitors.
The Mundy Arms is a large single story pub with five dining areas and three entrances. There are customer toilets, various store rooms, a cellar and large kitchen.
Fixtures & FittingsThere are no Fixtures and Fittings included in the sale. New applicants would need to conduct their own fit out of the cellar, kitchen and trading area.
Letting AccommodationThe hotel, Tyger Inn, is a former Premier Inn site. The hotel is operated by the owner and consists of 30 hotel rooms.
External DetailsThe pub has a large car park for the hotel and pub guests, with approximately 70 car parking spaces. There is a small beer garden
Owner's AccommodationThere is no owners accommodation being offered as part of the lease.
The OpportunityThe Mundy Arms represents an opportunity to re-establish trade in a large venue on a busy roadside location, with an historic trade and strong local community presence
There is established trade at the nearby venue, Farmhouse at Mackworth and The Mundy Arms benefits from 22 hotel rooms on site.
The pub is closed so there is no trading information to share
New Applicants must be agreeable to catering for breakfast for the hotel guests.
The owner is seeking to grant a brand new free of tie Internal Lease
Rent - £35,000 pa
Term - 10 - 20 years
Rent Free Period - The owner is agreeable to offering a rent free period depending on the strength of the tenant
The Rateable value is £30,000 with effect rom1st April 2026. Confirmation of actual business rates payable should be obtained from the Local Authority.
- Service charge
- Ask agent
- Business rates
- Ask agent
- Use class
- Ask agent
- Listed building
- Ask agent
- Business for sale
- Yes
- Tenure
- Leasehold
- Length of lease
- Ask agent
An Energy Performance certificate helps you understand the current energy efficiency of a property.
Read more about EPC requirementsAsk agent
- BREEAM rating
- Ask agent
- Environmental description
- Ask agent
Brochure
The Mundy Arms, 95 Ashbourne Road, Mackworth, Derby, DE22 4LZ
We’re the leading specialist advisor for buying and selling businesses in our sectors - hotels, pubs, restaurants, childcare, healthcare, convenience retail, leisure and medical.
If you’re looking to buy or sell a business in our specialist sectors – from a pharmacy in Sussex to a hotel in Austria – our expert advice and collaborative support will help you achieve your goals. You may be an independent first-time buyer or a multinational adding to your portfolio; either way, you’ll discover that our personalised service is focused on helping you achieve your ambitions.
Clients have access to our carefully managed network of potential buyers. This unique database of contacts has been continually developed by our advanced IT capabilities and benefits from both our years of experience developing our network and our wide geographical coverage.
Where we work
We employ the largest team of sector specialists in the UK and the largest group of hotel specialists in Europe, providing professional brokerage and advisory services from offices in major cities across Britain and Europe. And because we’ve been doing this for over 80 years, we know our sectors and local markets inside out. We work closely with our clients to guide and conclude transactions of any size, covering hotels, restaurants and pubs, leisure, forecourts and convenience retail businesses, social care and elderly care, childcare & education facilities, dental practices and pharmacies.
Our professional services
We offer unrivalled insight, experience and expertise across your choice of services, including brokerage, consultancy, finance, development, investment, surveying, rent reviews, dispute resolution, corporate valuation, and turnaround & recovery. These services are all underpinned by our in-depth market intelligence and leading-edge technology. And we’re accredited by the Royal Institution of Chartered Surveyors (RICS), so you can trust in our professionalism.
What makes us tick
Businesses are about people, so relationships matter to us. We bring an integrity and transparency to business which can be all too rare – and that’s why people trust us. Our clients will attest to our genuine desire to help achieve their objectives, our attention to detail, and our tireless hard work on their behalf. We understand that buying a business can bring its own pressures and strains; needs can change, plans may need to be adjusted, and opportunities can come and go. But we’re always here, a constant, flexible and reliable force you can count on.
Our opening hours for all offices:
Mon – Fri, 9am – 5.30pm
Your search history
You have no recent searches
Disclaimer - Property reference 5752411-lh. The information displayed about this property comprises a property advertisement. Rightmove.co.uk makes no warranty as to the accuracy or completeness of the advertisement or any linked or associated information, and Rightmove has no control over the content. This property advertisement does not constitute property particulars. The information is provided and maintained by Christie Owen & Davies Ltd, Pubs & Restaurants. Please contact the selling agent or developer directly to obtain any information which may be available under the terms of The Energy Performance of Buildings (Certificates and Inspections) (England and Wales) Regulations 2007 or the Home Report if in relation to a residential property in Scotland.















