The Oakwood Hall Hotel, Lady Lane, Bingley BD16 4AW
Size
14,055
Tenure
Freehold
EPC
Ask agent
Parking
Ask agent
- Primary use
- Hotel
Key features
- Vacant possession
- VAT is applicable to this property
- SPV can be purchased to minimise stamp duty
- Comprises Grade II listed 20-bed hotel
- Situated on a plot of 2.98 acres land
- Total GIA: 1,306 sq m (14,055 sq ft)
Description
Vacant possession
VAT is applicable to this property
SPV can be purchased to minimise stamp duty
Comprises Grade II listed 20-bed hotel
Situated on a plot of 2.98 acres land
Total GIA: 1,306 sq m (14,055 sq ft)
Residential development potential, STTP
Situated in a prominent residential area, within 1.3 miles from Crossflatts Train Station and 1.0 mile from Bingley Train Station, providing direct services to Bradford and Leeds
Retail occupiers within 5 min drive include Co-Op Food, Post Office, Fitness, Barbers, Restaurants, Cafés, Pharmacy and more.
Property Description:
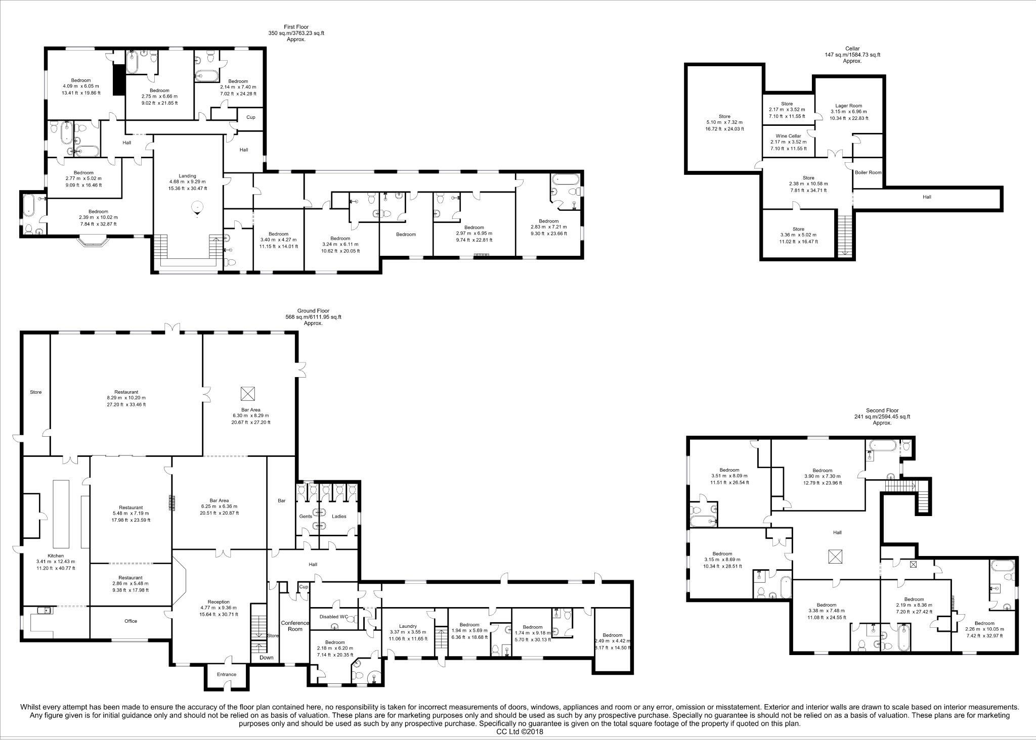
Comprises part two, part three storey 20-bed hotel on a plot of 2.98 acres of land. Access to the property is provided through a private road connected to The Orchards, leading to the front parking area and hotel entrance. The property features rear gardens and an outdoor seating area for the restaurant, along with a spacious reception and lobby area equipped with seating. All rooms are individually decorated to make the most of the beautiful historic Grade 2 listed building. Many of the bedrooms boast original beams or decorative original cornices and fireplaces.
Total GIA: 1,306 sq m (14,055 sq ft)
Residential development potential, subject to obtaining the necessary consents.
Letting Accommodation:
There are 20 individually designed bedrooms housed over three floors of Oakwood Hall Hotel. All of the bedrooms are en suite and range in style and size, there are original wooden beams in some of the second floor bedrooms as well as four poster beds. All of the bedrooms are all well appointed throughout. The letting accommodation can reach approximately 50 by the use of sofa beds and extra beds.
External Details:
The driveway from Lady Lane leads to the hotel. The driveway is flanked by substantial hedging giving the property a private feel to it. There is very pleasant garden area to the rear of the hotel which has its own patio leading from the lounge area. There are two out-buildings, one used for storage and the other for staff changing. There is parking to the front of the property for circa 20 cars and to the side of the hotel there is much larger car park for approximately 40 vehicles.
Location:
Bingley is a market town and civil parish in the metropolitan borough of the City of Bradford, West Yorkshire. The property is situated in a prominent residential area, within 1.3 miles from Crossflatts Train Station and 1.0 mile from Bingley Train Station, providing direct services to Bradford, Leeds and Skipton. Retail occupiers within 5 min drive include Co-Op Food, Post Office, Fitness, Barbers, Restaurants, Cafés, Pharmacy and more.
- Service charge
- Ask agent
- Business rates
- Ask agent
- Use class
- C1
- Listed building
- No
- Business for sale
- No
An Energy Performance certificate helps you understand the current energy efficiency of a property.
Read more about EPC requirementsAsk agent
- BREEAM rating
- Ask agent
- Environmental description
- Ask agent
Brochure
The Oakwood Hall Hotel, Lady Lane, Bingley BD16 4AW
Blue Alpine is a UK-wide property consultancy based in central London, focusing on commercial property, developments and residential blocks. Our services include disposals, acquisitions, lettings, auction advice, planning and architecture, dilapidations, and surrenders of leases.
Blue Alpine plans and delivers solutions that manage risk, optimise benefits, and expand the power of capital to protect and strengthen portfolios. By employing a transparent and consultative approach, we can assess and manage your current portfolio to devise a forward-looking investment plan and, if necessary, an exit strategy.
We are dedicated to disrupting the commercial property industry by delivering exceptional solutions that prioritise honesty, transparency, integrity, and providing an unparalleled client experience. Our team consists of knowledgeable professionals with a strong background in commercial property, enabling us to help clients around the world turn property into a path for growth.
Together, we unlock potential.
Your search history
You have no recent searches
Disclaimer - Property reference oakwoodhotel. The information displayed about this property comprises a property advertisement. Rightmove.co.uk makes no warranty as to the accuracy or completeness of the advertisement or any linked or associated information, and Rightmove has no control over the content. This property advertisement does not constitute property particulars. The information is provided and maintained by BLUE ALPINE PARTNERS LIMITED, London. Please contact the selling agent or developer directly to obtain any information which may be available under the terms of The Energy Performance of Buildings (Certificates and Inspections) (England and Wales) Regulations 2007 or the Home Report if in relation to a residential property in Scotland.















