22 ORCHARD STREET, STOCKTON HEATH, WARRINGTON, WA4 6LH
Size
1,471
Tenure
Ask agent
EPC
Ask agent
Parking
Ask agent
- Primary use
- High street retail
- Frontage
- Ask agent
Building amenities
Additional costs may apply for some services – please check the full property description for more details.
- Transport links
- Well connected
Key features
- PROMINENT LOCATION IN STOCKTON HEATH VILLAGE
- ROADSIDE FRONTAGE
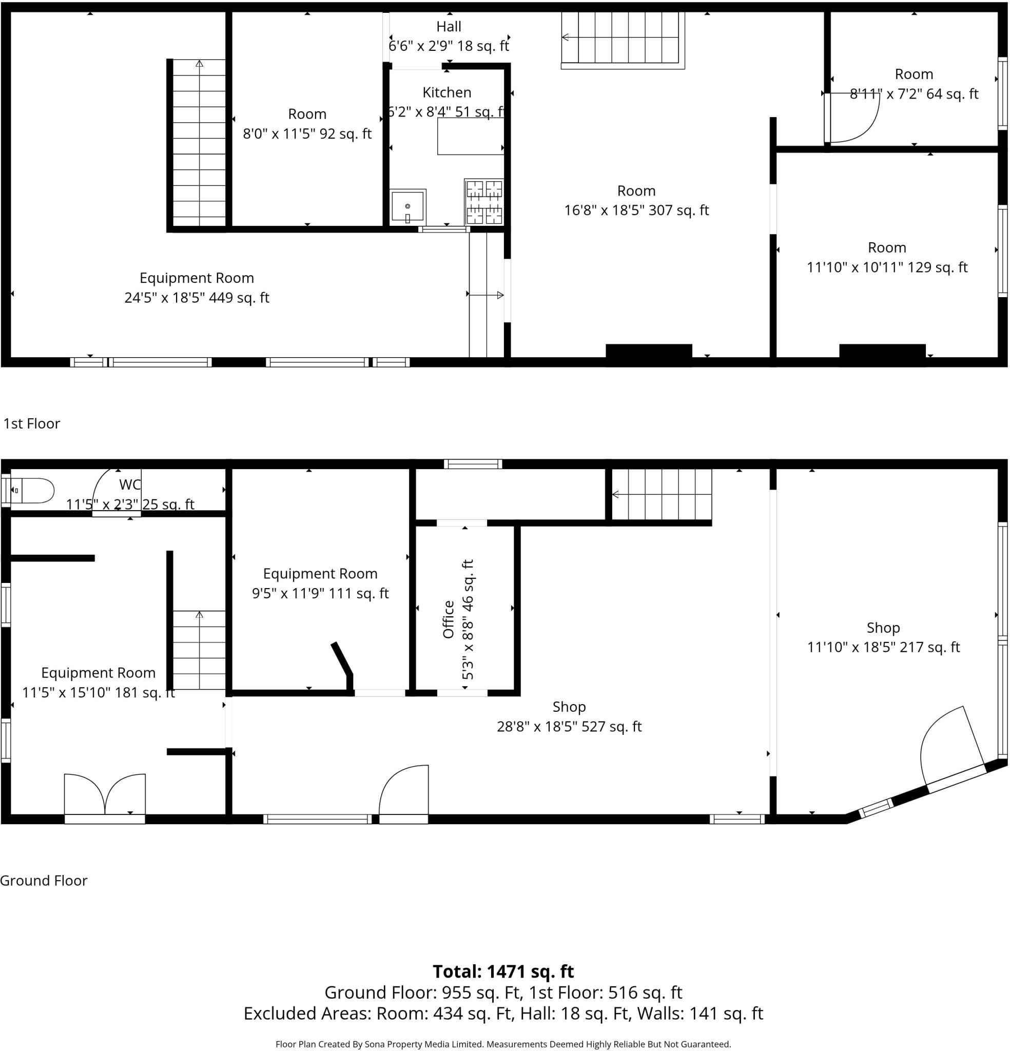
- TOTAL ACCOMMODATION – 1,471 SQ.FT
- SUITABLE FOR USE CLASS E AND SIMILAR
- EXCELLENT TRANSPORT LINKS
- CLOSE TO AMENITIES
- SURROUNDING ON STREET CAR PARKING
Description
PROMINENT LOCATION IN STOCKTON HEATH VILLAGE
ROADSIDE FRONTAGE
TOTAL ACCOMMODATION – 1,471 SQ.FT
SUITABLE FOR USE CLASS E AND SIMILAR
EXCELLENT TRANSPORT LINKS
CLOSE TO AMENITIES
SURROUNDING ON STREET CAR PARKING
LOCATION
22 ORCHARD STREET OCCUPIES A PROMINENT CORNER POSITION IN THE HEART OF STOCKTON HEATH, ONE OF THE MOST SOUGHT-AFTER SUBURBAN VILLAGES IN WARRINGTON. THE PROPERTY IS JUST A SHORT WALK FROM THE VIBRANT VILLAGE CENTRE, WHICH OFFERS AN EXCELLENT MIX OF INDEPENDENT BOUTIQUES, CAFES, RESTURANTS AND EVERYDAY AMENITIES, CREATING A LIVELY AND WELL-CONNECTED COMMUNITY ENVIRONMENT. THE AREA BENEFITS FROM STRONG TRANSPORT LINKS, WITH EASY ACCESS TO THE A49 AND NEARBY MOTORWAY NETWORKS INCLUDING THE M56 AND M6, PROVIDING CONVENIENT CONNECTIONS TO MANCHESTER, LIVERPOOL AND THE WIDER NORTH WEST. WARRINGTON BANK QUAY AND WARRINGTON CENTRAL RAILWAY STATIONS ARE ALSO WITHIN A SHORT DRIVE, OFFERING REGULAR SERVICES TO LONDON AND OTHER MAJOR CITIES.
ACCOMMODATION
1,471 SQ.FT
TENURE
FREEHOLD
LEGAL COSTS
EACH PARTY IS RESPONSIBLE FOR PAYING THEIR OWN LEGAL COSTS
PRICEÂ
OFFERS IN EXCESS OF £300,000 EXCLUSIVE OF VAT
- Service charge
- Ask agent
- Business rates
- Ask agent
- Use class
- E
- Listed building
- No
- Floors in building
- 2
- Business for sale
- No
An Energy Performance certificate helps you understand the current energy efficiency of a property.
Read more about EPC requirementsAsk agent
- BREEAM rating
- Ask agent
- Environmental description
- Ask agent
Brochure
22 ORCHARD STREET, STOCKTON HEATH, WARRINGTON, WA4 6LH
Your search history
You have no recent searches
Disclaimer - Property reference 22ORCHARDSTREET. The information displayed about this property comprises a property advertisement. Rightmove.co.uk makes no warranty as to the accuracy or completeness of the advertisement or any linked or associated information, and Rightmove has no control over the content. This property advertisement does not constitute property particulars. The information is provided and maintained by Read Property Associates , Warrington. Please contact the selling agent or developer directly to obtain any information which may be available under the terms of The Energy Performance of Buildings (Certificates and Inspections) (England and Wales) Regulations 2007 or the Home Report if in relation to a residential property in Scotland.










