7A Grimbald Crag Court, Knaresborough, North Yorkshire
Size
500 - 2,500
Lease length
1year
EPC
Parking
4
- Price per
- Primary use
- Traditional office
- Capacity
- 1 - 10 people
- Desks
- 10
Building amenities
Additional costs may apply for some services – please check the full property description for more details.
- Parking
- Transport links
- Well connected
- Air conditioning
- Natural light
- Open plan
- Partitioned offices
- Raised floor
- Communal gardens
- Flexible tenancies
- Kitchen
- Pets allowed
- Dda compliant
Key features
- Air conditioning heating / cooling, with addition wall mounted electric panel heaters
- Combination of open plan & bespoke designed partition office
- WC & kitchen including sink, fridge & space for table & chairs
- Disable toilet facility
- Fully raised floor for cable runs
- Secure entrance
- Various lease terms
- 4 car parking spaces
- Close to motorway networks
Description
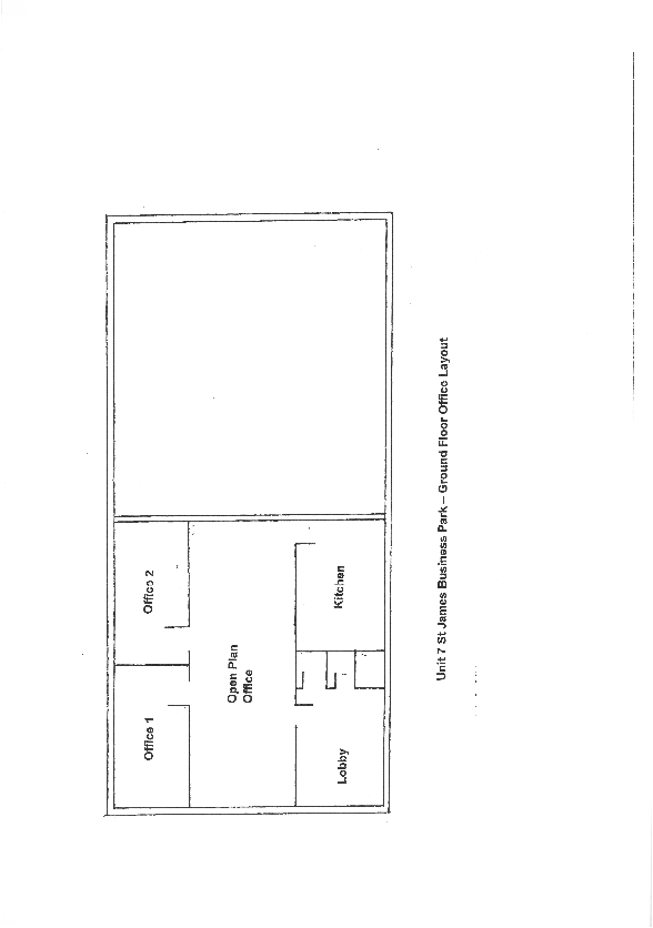
High quality office accommodation available at 7A St James Business Park Knaresborough
FANTASTIC GROUND FLOOR OFFICE SUITE
1,091 sq. ft (101 sq m) Net internal area
St James Business Park is off Grimbald Cragg Close which is adjacent to Knaresborough bypass and close to the Knaresborough Retail Park
Located on the A59 between Harrogate & Knaresborough, and convenient for Junction 47 on the A1(M) with links to the M1 AND M62 motorways
The property comprises of a standalone building of brick construction arranged over ground and first floors.
Internally the property benefits from part open plan office, part partitioned offices along with kitchen and toilet facilities
Car Parking - There are 4 dedicated parking spaces allocated
Rent £15,000pa
Buildings Service Charge charged at 26.6% of the total floor area - invoiced in arrears
Electric metered separately and invoiced in arrears
Air Con - metered separately - charged at 26.6% of the total floor area that uses aircon.
Water - Charged separately - charged at 26.6% of the total floor area
Estate Charge - There is an Estate Service Charge which covers the communal estate facilities and costs. Further details upon request
- Let type
- Flexible
- Let contract length
- 12 months
- Rent obligation
- Fully repairing and insuring
- Status
- Available
- Date available
- 08 April 2026
- Service charge
- Ask agent
- Business rates
- Ask agent
- Use class
- E
An Energy Performance certificate helps you understand the current energy efficiency of a property.
Read more about EPC requirements- BREEAM rating
- Ask agent
- Environmental description
- St James Business Park, located on Grimbald Crag Court in Knaresborough HG5 8QB, forms part of a modern, purpose-built commercial environment on the southern edge of the town. The surrounding environment is characterised by a blend of business, light industrial, and retail uses set within a semi-urban fringe landscape. A modern, well-serviced commercial setting within a mixed-use business corridor, combining functional built form, landscaped surroundings, and proximity to both urban amenities and open countryside.
7A Grimbald Crag Court, Knaresborough, North Yorkshire
The Gaunt family can be traced back to the reign of Queen Elizabeth 1, 1558 - 1603. The family history is rich in terms of its connection to the area of Calverley, Pudsey and Farsley, and its involvement in textiles, first as clothiers and subsequently as Worsted Spinners and Woollen and Worsted manufacturers at Springfield and Broom Mills. The company was founded in 1875 by Reuben Gaunt and converted into a Limited Company in 1896. That Company trades to this day.
About the owner: Gaunts Ltd
Your search history
You have no recent searches
Disclaimer - Property reference 7AGFKBRO. The information displayed about this property comprises a property advertisement. Rightmove.co.uk makes no warranty as to the accuracy or completeness of the advertisement or any linked or associated information, and Rightmove has no control over the content. This property advertisement does not constitute property particulars. The information is provided and maintained by Gaunts Ltd, Leeds. Please contact the selling agent or developer directly to obtain any information which may be available under the terms of The Energy Performance of Buildings (Certificates and Inspections) (England and Wales) Regulations 2007 or the Home Report if in relation to a residential property in Scotland.











