D Thomson & Sons, 24 High Street, Jedburgh, Scottish Borders
Size
Ask agent
Tenure
Freehold
EPC
Ask agent
Parking
Ask agent
- Primary use
- High street retail
- Frontage
- Ask agent
Key features
- Town Centre Location
- Excellent Window Frontage
- Spacious Self-Contained 4 bedroom maisonette
Description
- Prominent south-facing retail unit
- Excellent frontage onto Jedburgh High Street
- Formerly a long-established gentlemans outfitters
- Spacious four bedroom maisonette
- Class 1a (Retail, Financial, Professional & other services)
LOCATION
The subjects occupy a prominent south-facing position on High Street within Jedburgh town centre. Jedburgh is a traditional market town located on the southern fringe of the Scottish Borders, situated on the Jed Water, a tributary of the River Teviot, approximately ten miles north of the Anglo-Scottish Border at Carter Bar.
The town has a population of approximately 4,129 according to the 2022 Census and serves a wider catchment within the Jedburgh and District Ward, which had a population of around 9,340 in 2021. Jedburgh functions as an established local service centre, offering a broad mix of independent shops, cafés, restaurants and professional services within its traditional market core.
Jedburgh is particularly well known for its rich historic character, which attracts a significant level of seasonal tourism. Much of the town centre lies within a Conservation Area encompassing key landmarks such as Jedburgh Abbey and the Castle Gaol. The Abbey, founded in 1138 by King David I, is one of the most complete surviving abbeys in the Scottish Borders despite repeated historical destruction, while the Castle Gaol occupies a commanding elevated position on the site of a former medieval stronghold.
The town also benefits from a strong leisure and community offering, with facilities including modern sports pitches, running tracks, a bowling green, gym and a wide range of sporting clubs, including rugby, football and golf. These amenities support a vibrant local population and enhance the town’s residential and visitor appeal.
Jedburgh enjoys good transport connectivity, with the A68 trunk road passing through the town and providing direct links to other principal Borders towns and the national road network. Newcastle Airport is approximately 52 miles to the south and Edinburgh Airport around 55 miles to the north. Rail connections to Edinburgh are available via the Borders Railway from Galashiels and Tweedbank, with mainline also accessible at Berwick-upon-Tweed.
SERVICES
Mains electricity, water and drainage are connected. Electric Heating.
DESCRIPTION
The subjects comprise a mid-terraced Category B Listed building dating from 1895, designed by James Pearson Alison, arranged over three principal storeys with additional attic accommodation. The property occupies a broadly east-facing position within Jedburgh town centre and forms part of an established traditional streetscape. Constructed in honey-coloured stugged and coursed ashlar sandstone with polished dressings, the building features chamfered arrises and a broad central bay, contributing to its distinctive late 19th-century commercial character.
The ground floor incorporates a modern shopfront with a large central plate-glass display window and flanking doors, the northernmost of which provides separate access to the upper residential accommodation. Above, the first floor is characterised by a recessed arcaded loggia, framed by moulded architraves and keystones and supported by a central Tuscan column. The loggia is set behind a decorative wrought-iron balustrade and contains two central windows with a single window to each side set within an inverted cant. The second floor features a tripartite central window flanked by single windows, while the attic level includes a bipartite window incorporated into a crested central gablet.
Windows comprise a mixture of plate-glass timber sash and case units to the central bay and four-pane sashes to the outer bays. Many of the windows to the rear elevation have been rep[laced with modern upvc double glazed units.
The building is finished with a steeply pitched raised grey slate roof, incorporating a mansard form with a flat central section thought to be of rolled-metal construction.
To the rear, the property has been extended over time. Two-storey projections with slate-clad pitched and hipped roofs lead to a substantial cavity flat-roofed extension with rendered external finish beneath a mineral-felt covering. A more recent single-storey blockwork addition sits beyond this under a hipped roof clad in insulated box-profile sheeting. A gravel-surfaced courtyard lies to the rear, accessed via double gates from Darnley’s Close off Friarsgate.
Internally, the subjects are configured as a long-established and highly regarded gentleman’s outfitters specialising in countrywear, formalwear and kilt hire. Trading accommodation extends across the ground and first floors, reflecting continuous occupation since constructed for this purpose for R Wilson clothier.
A separate entrance to the north elevation provides access to a well-appointed maisonette accessed off a first floor landing. The maisonette is self-contained arranged over the second floor and attic level.
The property forms part of Jedburgh’s traditional High Street and contributes to the architectural interest and historic character recognised in its Category B listing. Its distinctive late-Victorian commercial frontage, detailed stonework and arcaded loggia provide a notable contribution to the townscape.
ACCOMMODATION
The accommodation comprises:
Commercial Element:
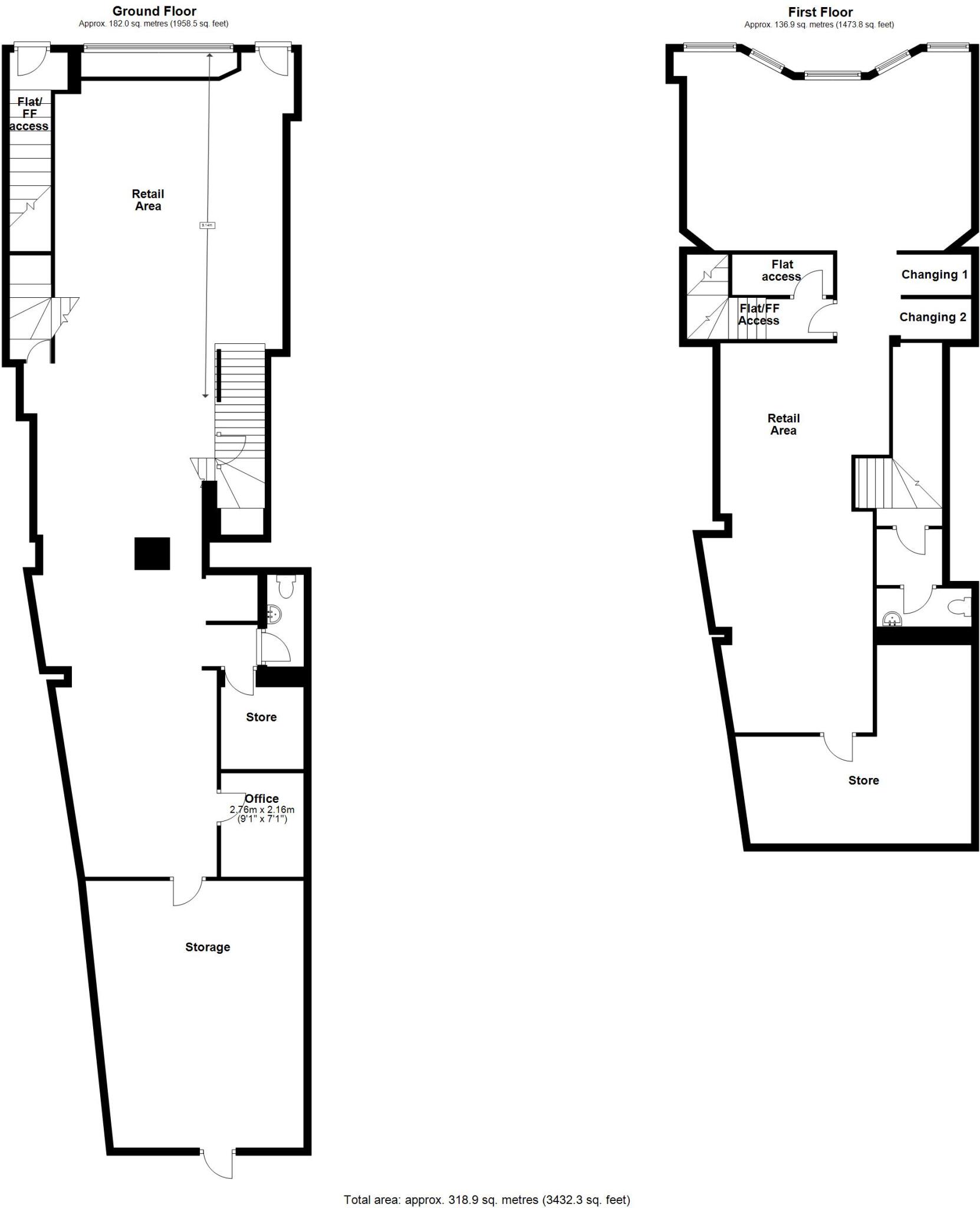
Ground Floor: Front shop with under stair cupboard and store room off; rear shop; two changing rooms, one with link to store room and WC, office; large rear store.
First Floor: Formal wear and Kilt hire configured as front shop with inverted dormer, door to north stair with lobby providing access to maisonette, two changing areas, rear shop with store room off, half landing with storage area and WC off.
Residential Element
Ground Floor: Separate stair from north with landing at first floor with door to flat and separate door to shop.
Second Floor: Landing, living room, kitchen, bedroom, bathroom and store.
Attic: Landing, three bedrooms.
AREAS
The property has been measured to the following approximate areas:
Commercial Element:
Net Internal Area: 288.50 sq m / 3,104 sq ft
In Terms of Zone A: 112.55 sq m / 1,211 sq ft
Residential Maisonette:
Gross Internal Area: 121.77 sq m / 1,310 sq ft
E & oe Measurements taken using laser measure.
PLANNING
The subjects are situated within the Jedburgh town centre boundary as defined within the Scottish Borders Local Development Plan (LDP2) which was formally adopted on 22nd August 2024.
Established Use is understood to be Class 1A of the Town and Country (Use Classes) Scotland Order 1997 (as amended) which incorporates former Class 1 (Retail), Class 2 (Financial, Professional and Other Services). Class 1A also has permitted development rights for change of use to Class 3 (Hot Food) and Class 4 (Business).
Like much of Jedburgh town centre the SEPA flood risk map classifies that 24 High Street is at medium risk of flooding by surface and small watercourses which is defined as a 0.5% chance per annum within 25m. There is no specific for rivers and coastal
RATEABLE VALUE
The current Rateable Value effective from 01-April-2026 is £12,300.
Small Business Rates Relief Scheme currently provides up to 100% rates relief for units with a Rateable Value of £12,000 or less based on a combined total of all the occupiers business premises within Scotland (subject to application and eligibility). This relief is reviewed annually in accordance with the Budget.
EPC TBC
LEGAL COSTS
Each party will be responsible for their own legal costs incurred in connection with this transaction.
VALUE ADDED TAX
Unless otherwise stated the prices quoted are exclusive of VAT.
Any intending tenants must satisfy themselves independently as to the instances of VAT in respect of any transaction.
VIEWING
By appointment with the sole agents.
Edwin Thompson, Chartered Surveyors
76 Overhaugh Street
Galashiels
TD1 1DP
Tel.
Fax.
E-mail: g.
IMPORTANT NOTICE
Edwin Thompson for themselves and for the Vendor of this property, whose Agents they are, give notice that:
1. The particulars are set out as a general outline only for the guidance of intending purchasers and do not constitute, nor constitute part of, any offer or contract.
2. All descriptions, dimensions, plans, reference to condition and necessary conditions for use and occupation and other details are given in good faith and are believed to be correct, but any intending purchasers should not rely on them as statements or representations of fact but must satisfy themselves by inspection or otherwise as to their correctness.
3. No person in the employment of Edwin Thompson has any authority to make or give any representation or warranty whatsoever in relation to this property or these particulars, nor to enter into any contract relating to the property on behalf of the Agents, nor into any contract on behalf of the Vendor.
4. No responsibility can be accepted for loss or expense incurred in viewing the property or in any other way in the event of the property being sold or withdrawn.
5. Edwin Thompson is the generic trading name for Edwin Thompson Property Services Limited, a Limited Company registered in England and Wales (no.07428207). Registered office:28 St John’s Street, Keswick, Cumbria, CA12 5AF
- Service charge
- Ask agent
- Business rates
- Ask agent
- Use class
- 1A
- Listed building
- No
- Business for sale
- No
An Energy Performance certificate helps you understand the current energy efficiency of a property.
Read more about EPC requirementsAsk agent
- BREEAM rating
- Ask agent
- Environmental description
- Ask agent
Brochure
D Thomson & Sons, 24 High Street, Jedburgh, Scottish Borders
Founded in the English Lake District in 1880, Edwin Thompson now operate from eight offices in Northern England and the Scottish Borders - Berwick-upon-Tweed, Carlisle, Edinburgh, Galashiels, Keswick, Kendal, Newcastle and Windermere, as well as their original office in Keswick - with a client list ranging from major national companies , institutions and pension funds to smaller local companies and individuals, with interests throughout the UK.
Your search history
You have no recent searches
Disclaimer - Property reference DTs. The information displayed about this property comprises a property advertisement. Rightmove.co.uk makes no warranty as to the accuracy or completeness of the advertisement or any linked or associated information, and Rightmove has no control over the content. This property advertisement does not constitute property particulars. The information is provided and maintained by EDWIN THOMPSON PROPERTY SERVICES LIMITED, Galashiels. Please contact the selling agent or developer directly to obtain any information which may be available under the terms of The Energy Performance of Buildings (Certificates and Inspections) (England and Wales) Regulations 2007 or the Home Report if in relation to a residential property in Scotland.























