Exceptional Home and Holiday Cottage Business, North Devon
Size
Ask agent
Tenure
Freehold
EPC
Parking
Ask agent
- Primary use
- Other leisure
Key features
- Period spacious 5-bedroom owners' farmhouse and annex
- Well suited for multigenerational living
- 8 self catering holiday cottages, each with private garden and hot tub
- Purpose built petting farm comprising menage, stables and animal enclosures
- Multi-award-winning business
- Easily accessible location
- Freehold, set in 9.4 acres
- Turnover in the region of £300,000
Description
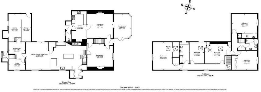
The farmhouse is situated within the centre of the site but is oriented away from the main courtyard of cottages, affording it a good deal of privacy. The farmhouse offers flexible accommodation and is well suited to multi-generational living as it and can be arranged to provide two, self-contained dwellings. In addition, there is a large private garden set away from the cottages.
The main farmhouse is a spacious and well appointed family home with open plan kitchen, sitting and dining room featuring a kitchen island and AGA. There is a separate ground floor reception room with attractive, exposed stone fireplace with original bread oven.
The annex, internally accessible from the farmhouse, provides further living / reception room, conservatory and second kitchen diner.
On the first floor are five bedrooms (one en suite) and two family bathrooms.
It is possible to arrange the farmhouse as one large five bedroom property, or to use the annex as a separate two bedroom self contained property.
In connection with the business, reception, laundry and storage rooms can be accessed via the main house internally or externally from the courtyard of cottages allowing these to remain self contained from the living areas of the house if desired.
THE HOLIDAY COTTAGES
There are eight holiday cottages, each of which benefit from a private garden and hot tub.
THE FARM
There is a purpose built petting farm, developed by the current owners, providing a unique guest experience. This area could be used to accommodate a purchaser's own animals if so desired, rather than a guest experience.
AMENITIES AND EXTERNAL AREAS
The site comprises an exceptional therapy/beauty treatment room which is currently operated in house by the current owners.
Indoor facilities also include a large games room with table tennis and darts. A pool table area and spacious play room for under 7’s.
Landscaped gardens provide a range of picnic and outdoor play areas. There is a dedicated parking area with ample guest parking spaces.
North Devon is known for its dramatic coastline including the South West coastal path as featured in the Salt Path book and recent film. Rolling moorland and ancient woodland are synonymous with the area. The region offers a compelling mix of nature, heritage and outdoor activities. Nearby attractions include:
Woolacombe and Saunton Sands – Award-winning golden beaches ideal for surfing and kayaking or exploring rock pools.
Exmoor National Park – Ancient woodland, rolling moorland and plunging sea cliffs, perfect for hiking, riding, cycling and running. Exmoor is a designated International Dark Sky Reserve.
The Tarka Trail – The UK’s longest continuous cycling and walking path, with a 180-mile route weaving through stunning scenery and unspoilt countryside.
RHS Garden Rosemoor – One of just four RHS flagship gardens in the country
This tranquil location remains accessible and connected for both leisure and business ventures.
- Service charge
- Ask agent
- Business rates
- Ask agent
- Use class
- Ask agent
- Listed building
- Ask agent
- Business for sale
- Yes
An Energy Performance certificate helps you understand the current energy efficiency of a property.
Read more about EPC requirementsAsk agent
- BREEAM rating
Unclassified
- Environmental description
- Ask agent
Exceptional Home and Holiday Cottage Business, North Devon
Your search history
You have no recent searches
Disclaimer - Property reference 253B8357-A82C-44A6-A287-D96E520A6A6F. The information displayed about this property comprises a property advertisement. Rightmove.co.uk makes no warranty as to the accuracy or completeness of the advertisement or any linked or associated information, and Rightmove has no control over the content. This property advertisement does not constitute property particulars. The information is provided and maintained by Savills National , Exeter. Please contact the selling agent or developer directly to obtain any information which may be available under the terms of The Energy Performance of Buildings (Certificates and Inspections) (England and Wales) Regulations 2007 or the Home Report if in relation to a residential property in Scotland.










