Land at Scotia Road, Tunstall, Stoke-on-Trent, Staffordshire
Size
Ask agent
Tenure
Freehold
EPC
Parking
Ask agent
- Primary use
- Land
No floor / site plan
Key features
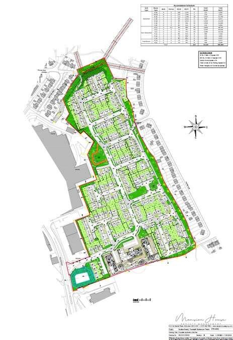
- Detailed planning permission for 227 dwellings, 93 care home apartments.
- Gross area extending to approximately 22.07 acres (8.93 hectares).
- Remediated development site with NHBC LQE Certification upon completion of sale.
- Excellent connectivity and regeneration potential.
Description
Historically, the site been used for mining purposes, with eight mine shafts identified across its area. However, the shafts have been grouted and capped with full remediation works scheduled for completion prior to the site’s disposal. One mine shaft remains untreated but is located in a POS area. An NHBC Land Quality Endorsement Certificate (LQE) will be obtained and shared with the buyer prior to the sale completing.
The remediation works are being carried out in accordance with the layout set out in the approved Proposed Site Plans, therefore any significant amendments to the layout may require further remediation works to be completed.
The site is located in Tunstall, one of the six towns that make up the city of Stoke-on-Trent in Staffordshire. Positioned along Scotia Road (A50), the site lies within close proximity to Tunstall and Burslem town centres, offering a range of local amenities, supermarkets, schools, healthcare facilities, and leisure.
The site offers excellent transport links, with the A500 dual carriageway approx. 1.5 miles away, providing swift access to Junction 16 of the M6 and the wider regional road network. Stoke-on-Trent railway station is 4.5 miles to the south, offering direct services to Manchester, Birmingham, and London. Bus stops on either side of Scotia Road adjacent to the site’s access providing direct services in to Stoke-on-Trent city centre and northbound to Crewe.
Manchester Airport is situated 34 miles north of the site whilst Birmingham Airport is located 60 miles south.
- Service charge
- Ask agent
- Business rates
- Ask agent
- Use class
- Ask agent
- Listed building
- Ask agent
- Business for sale
- No
An Energy Performance certificate helps you understand the current energy efficiency of a property.
Read more about EPC requirementsAsk agent
- BREEAM rating
Unclassified
- Environmental description
- Ask agent
Brochure
Land at Scotia Road, Tunstall, Stoke-on-Trent, Staffordshire
Who We Are
Savills Licensed Leisure team deals with freehold and leasehold licensed premises nationally for all purposes. We advice on sales, lettings and acquisitions of both trading and vacant premises.
Our Services
Our agency team sells licensed premises nationally and our existing clients include national pub companies, major leisure corporations and premium private operators across the UK. The team deals with sales, lettings and acquisitions of both trading and vacant premises. These include pubs, restaurants, late night bars, nightclubs and hotels.
We are one of the most respected team of Valuers in the industry providing specialist valuations for loan security, accounting and taxation purposes. Our clients include all major banks and lending institutions throughout the UK.
We offer clients a consultancy service including viability appraisals and Expert Witness reports to assist with development and planning opportunities. We are also able to represent clients whose interests are affected by Compulsory Purchase proposals.
In addition to a strong track record of dealing with trading properties, the team has particular expertise in redevelopment, working closely with the Savills Planning and Urban Design departments.
We represent Landlords and Tenants in rent review and lease renewal negotiations and make representations to Arbitrators and Independent Experts when disputes
require it.
The team includes highly experienced dispute resolvers able to act as arbitrators, independent experts and PIRRS valuers in rent review and lease renewal cases.
We undertake rating appeal work on behalf of owners/occupiers to mitigate business rates liabilities, as well as advising on empty rates.
The team have extensive experience in the sale and acquisition of licensed investments both individually and in large portfolios. Our knowledge of the buyer pool, whether that be a major fund, family office or small private investor, is coupled with a detailed granular knowledge of the underlying specialist asset.
Your search history
You have no recent searches
Disclaimer - Property reference D6108690-5AFD-4923-8EBF-61E18FE09C93. The information displayed about this property comprises a property advertisement. Rightmove.co.uk makes no warranty as to the accuracy or completeness of the advertisement or any linked or associated information, and Rightmove has no control over the content. This property advertisement does not constitute property particulars. The information is provided and maintained by Savills National , Manchester. Please contact the selling agent or developer directly to obtain any information which may be available under the terms of The Energy Performance of Buildings (Certificates and Inspections) (England and Wales) Regulations 2007 or the Home Report if in relation to a residential property in Scotland.



