Cornucopia, 33 Osborne Road, Southsea, PO5 3LR
Size
Ask agent
Tenure
Leasehold
EPC
Parking
Ask agent
- Primary use
- Convenience store
- Frontage
- Ask agent
Key features
- Advised weekly sales c. £18,000
- Retirement sale
- Established business with loyal customers
- High Street location
- Lock up retail unit with office above
- Energy Rating D
- Annual rent: £21,600
- Christie & Co Ref: 3818346
Description
Cornucopia is a licenced convenience store located moments from the sea front in the heart of Southsea, Hampshire. The store was set up 20 years ago by the current owners and has been trading successfully ever since. There has been a convenience store at this location for the last 50 years. Due to retirement the business is now available for sale. The current advised weekly sales are c. £18,000.
LocationSituated in the heart of vibrant Southsea, this convenience store benefits from a bustling coastal community and strong year-round footfall. Just moments from the seafront and surrounded by popular cafés, independent retailers, and residential streets, the location offers excellent visibility and accessibility. Southsea’s mix of locals, students, and tourists creates a dynamic customer base, ensuring consistent trade and growth potential. With easy transport links and ample nearby parking
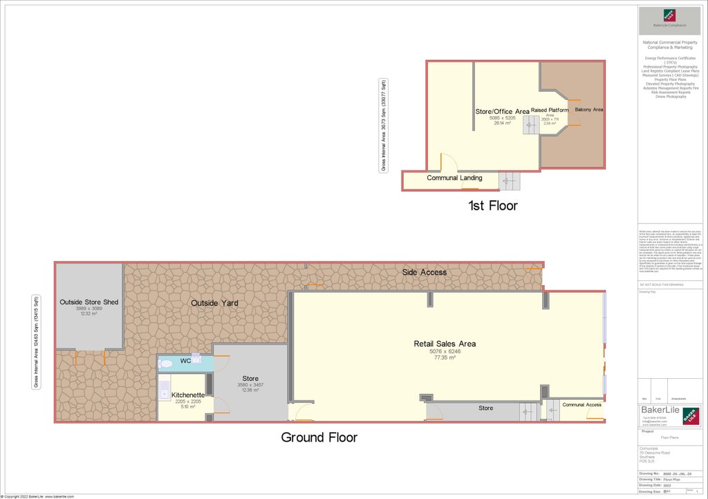
Internal DetailsThe retail area measures c. 77.35 sqm. Behind the retail space is a store room/office, w.c and kitchenette. There is an outside courtyard to the rear with additional storage and side access to the front.
Other FloorsIn addition to the shop there is a separate office with its own entrance. Details on floorplan.
Fixtures & FittingsThe majority of fixtures and fittings are owned outright and will be included in the sale.
The OpportunityThis is great opportunity to take over a thriving established convenience store. The new owners could add new product lines and expand with a delivery service and food to go offerings.
StaffThree full time members of staff.
Trading InformationAccounts YE Sept 2024
Turnover £896,271 (ex VAT)
Further Accounting information available on request
Monday - Thursday 6am -11pm
Friday - Saturday 6am -12 midnight
Sunday 6am -11pm
The existing lease is due to expire on 16th March 2027. We are advised the landlord may consider a new lease subject to terms being agreed.
- Service charge
- Ask agent
- Business rates
- Ask agent
- Use class
- Ask agent
- Listed building
- Ask agent
- Business for sale
- Yes
- Tenure
- Leasehold
- Length of lease
- Ask agent
An Energy Performance certificate helps you understand the current energy efficiency of a property.
Read more about EPC requirementsAsk agent
- BREEAM rating
- Ask agent
- Environmental description
- Ask agent
Brochure
Cornucopia, 33 Osborne Road, Southsea, PO5 3LR
We’re the leading specialist advisor for buying and selling businesses in our sectors - hotels, pubs, restaurants, childcare, healthcare, convenience retail, leisure and medical.
If you’re looking to buy or sell a business in our specialist sectors – from a pharmacy in Sussex to a hotel in Austria – our expert advice and collaborative support will help you achieve your goals. You may be an independent first-time buyer or a multinational adding to your portfolio; either way, you’ll discover that our personalised service is focused on helping you achieve your ambitions.
Clients have access to our carefully managed network of potential buyers. This unique database of contacts has been continually developed by our advanced IT capabilities and benefits from both our years of experience developing our network and our wide geographical coverage.
Where we work
We employ the largest team of sector specialists in the UK and the largest group of hotel specialists in Europe, providing professional brokerage and advisory services from offices in major cities across Britain and Europe. And because we’ve been doing this for over 80 years, we know our sectors and local markets inside out. We work closely with our clients to guide and conclude transactions of any size, covering hotels, restaurants and pubs, leisure, forecourts and convenience retail businesses, social care and elderly care, childcare & education facilities, dental practices and pharmacies.
Our professional services
We offer unrivalled insight, experience and expertise across your choice of services, including brokerage, consultancy, finance, development, investment, surveying, rent reviews, dispute resolution, corporate valuation, and turnaround & recovery. These services are all underpinned by our in-depth market intelligence and leading-edge technology. And we’re accredited by the Royal Institution of Chartered Surveyors (RICS), so you can trust in our professionalism.
What makes us tick
Businesses are about people, so relationships matter to us. We bring an integrity and transparency to business which can be all too rare – and that’s why people trust us. Our clients will attest to our genuine desire to help achieve their objectives, our attention to detail, and our tireless hard work on their behalf. We understand that buying a business can bring its own pressures and strains; needs can change, plans may need to be adjusted, and opportunities can come and go. But we’re always here, a constant, flexible and reliable force you can count on.
Our opening hours for all offices:
Mon – Fri, 9am – 5.30pm
Your search history
You have no recent searches
Disclaimer - Property reference 3818346-lh. The information displayed about this property comprises a property advertisement. Rightmove.co.uk makes no warranty as to the accuracy or completeness of the advertisement or any linked or associated information, and Rightmove has no control over the content. This property advertisement does not constitute property particulars. The information is provided and maintained by Christie Owen & Davies Ltd, Retail. Please contact the selling agent or developer directly to obtain any information which may be available under the terms of The Energy Performance of Buildings (Certificates and Inspections) (England and Wales) Regulations 2007 or the Home Report if in relation to a residential property in Scotland.










