177 Hoxton street, London, N16PJ
Size
3,850 - 4,000
Lease length
5years
EPC
Ask agent
Parking
Ask agent
- Price per
- Primary use
- High street retail
- Other use(s)
- Shop, Bar or nightclub, Restaurant, Other leisure, Commercial kitchen or dark kitchen, Mixed use
- Frontage
- Ask agent
Building amenities
Additional costs may apply for some services – please check the full property description for more details.
- Transport links
- Well connected
- Basement
- Natural light
- Open plan
- Professional management
- Storage space
- Controlled access
- Twenty four hour access
Key features
- Fully licensed bar/restaurant
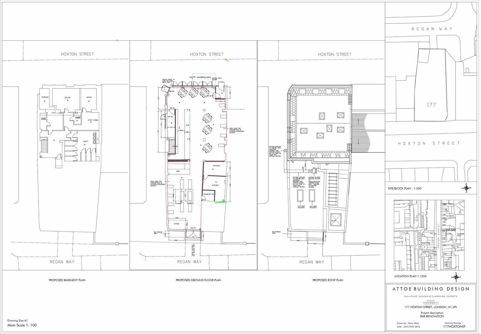
- 3,850 sq ft total (2,560 sq ft ground + 1,290 sq ft basement)
- Street-facing entrance with strong visibility
- Flexible layout for hospitality, retail, or creative use
- Existing kitchen with extractor and 3-phase power
- Large cold room + walk-in fridge and multiple storage rooms
- Soundproofed space suitable for loud or private use
- Long Lease
Description
This spacious and adaptable commercial unit is located on the bustling Hoxton Street, right next to Shoreditch, offering fantastic visibility and accessibility. The space has hosted a variety of successful ventures over the past four years, showcasing its versatility. Whether you’re looking for a retail storefront, creative office, or a licensed bar/restaurant, this property can cater to your needs.
Property Features:
Ground Floor - 2,560 ft²
Street-facing entrance with excellent footfall potential.
Fire exit at the rear for safety compliance.
A disabled toilet conveniently located at the back of the space.
Soundproofed walls, making it suitable for loud or discreet uses.
Basement -1,290 ft²:
Includes multiple rooms:
Toilets (can be reconfigured for alternative uses like office space).
Back office for administrative needs.
A large cold room with keg drop-down (ideal for storage or reinstating a bar setup).
Smaller insulated room, usable as a walk-in fridge.
Two additional storage rooms for equipment or stock.
⚙️Additional Infrastructure:
Fully licensed until 12:30 am (Mon-Sat) and midnight on Sundays.
Existing kitchen space with an extractor and 3-phase power, supporting appliances like a combi-oven or dishwasher.
Past and Current Uses:
Initially operated as a bar/restaurant with seating capacity for 120+ covers.
Transformed into a Superhero Cocktail Experience Pop-Up (see video attached).
Currently a Crazy Golf and Games Room Bar, demonstrating its flexibility.
Lease Details:
LEASE RUNS UNTIL 2031
Up to 3 months free.
Competitive rental rate for the area, with excellent potential for businesses seeking a dynamic location with high foot traffic.
⭐Why Choose This Space?
Prime location in a lively area adjacent to Shoreditch.
Flexible layout to suit various industries and business models.Soundproofed and licensed space, ready to accommodate unique or noise-sensitive operations. For further information or to arrange a viewing, please get in touch. Don’t miss this opportunity to secure a highly adaptable space in one of London’s most exciting areas!
- Let type
- Long
- Let contract length
- 60 months
- Status
- Available
- Date available
- 16 April 2026
- Service charge
- Ask agent
- Business rates
- Ask agent
- Use class
- E
- Year renovated
- 2026
- Floors in building
- 2
An Energy Performance certificate helps you understand the current energy efficiency of a property.
Read more about EPC requirementsAsk agent
- BREEAM rating
- Ask agent
- Environmental description
- Ask agent
177 Hoxton street, London, N16PJ
Your search history
You have no recent searches
Disclaimer - Property reference 177HoxtonStreet. The information displayed about this property comprises a property advertisement. Rightmove.co.uk makes no warranty as to the accuracy or completeness of the advertisement or any linked or associated information, and Rightmove has no control over the content. This property advertisement does not constitute property particulars. The information is provided and maintained by Mainyard Studios, London. Please contact the selling agent or developer directly to obtain any information which may be available under the terms of The Energy Performance of Buildings (Certificates and Inspections) (England and Wales) Regulations 2007 or the Home Report if in relation to a residential property in Scotland.

















