Gigi's Bar & Bistro & Gift Shop, 26-27 Steep Hill, Lincoln, LN2 1LU
Size
2,217
Tenure
Leasehold
EPC
Ask agent
Parking
Ask agent
- Primary use
- Restaurant
- Other use(s)
- Cafe
Building amenities
Additional costs may apply for some services – please check the full property description for more details.
- Cafe
- Kitchen
- Restaurant
Key features
- Located on the famous 'Steep Hill'
- EPC Rating - C
- Cafe/Restaurant Business incorporating a separate trading gift shop
Description
The property occupies a prime position on Steep Hill, famed for its eclectic mix of boutiques and restaurants and located within the main historic tourist district of Lincoln, providing a pedestrian link between Lincoln's High Street to the south and the Castle and Cathedral to the north. The Steep Hill and Bailgate areas are very busy tourist attractions, with Lincoln having a population of around 130,000 residents, being a vibrant city which, in addition to its rich cultural history, has a fast growing University and other excellent facilities resulting in Lincoln being a popular tourist destination and a great place to live.
Description
(For the Lease, Goodwill and Business Fixtures & Fittings) - We are delighted to offer this rare opportunity to acquire a popular cafe/restaurant business with adjoining gift shop, situated within Lincoln's primary tourist district, the famous 'Steep Hill' medieval cobbled pedestrian link between Lincoln's High Street and the Bailgate district, which includes the Castle and Cathedral. The property is able to offer up to 60 indoor covers, together with further outdoor seating to the rear and incorporates a separate trading gift shop, offering further year round income. Viewing is highly recommended to appreciate the size and business opportunity that is on offer.
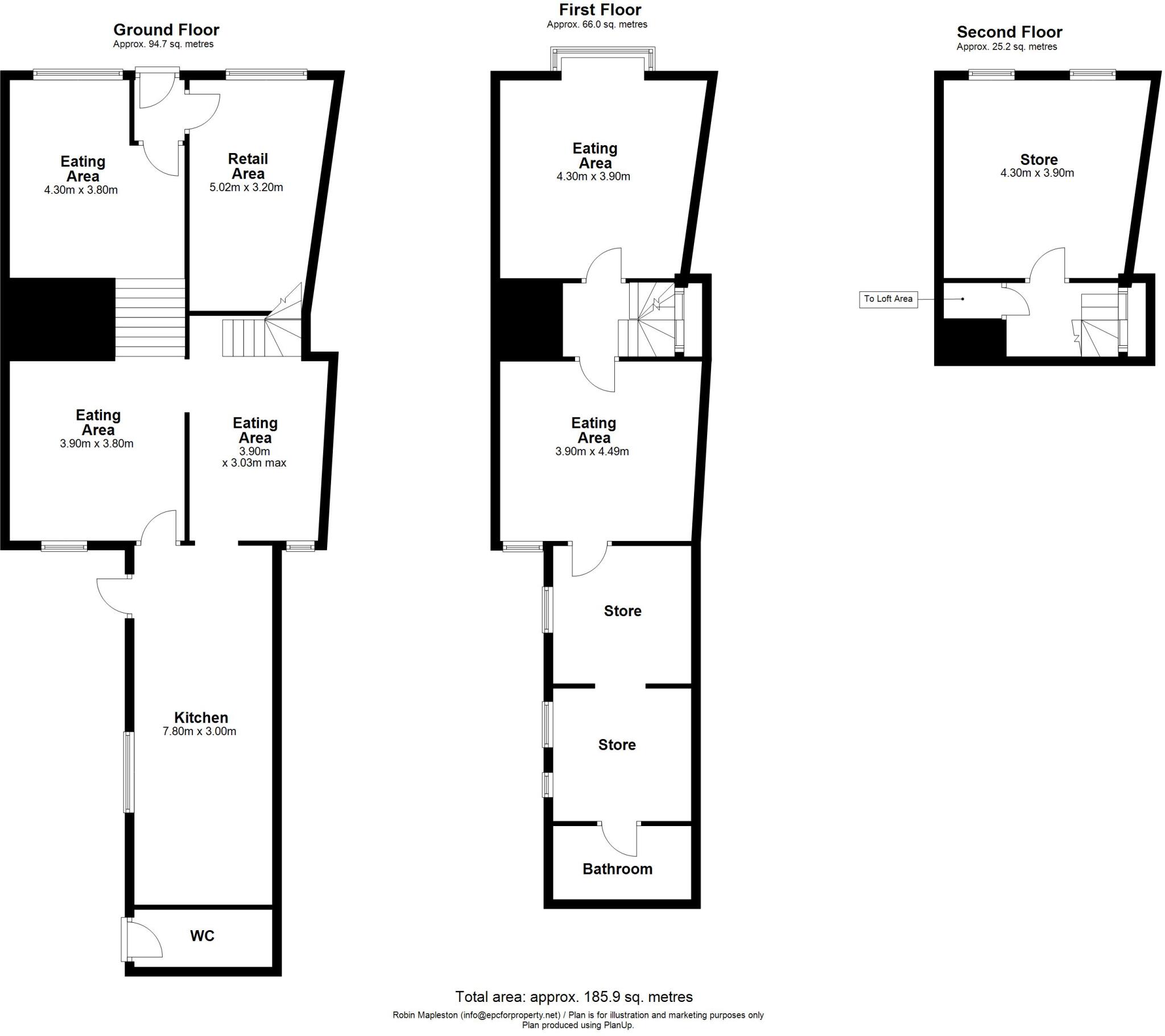
Accommodation
Internally, the accommodation is presented to an informal rustic-style and briefly comprises;
Ground Floor:
Reception Entrance/Seating Area - 3.8 metres x 4.2 metres with period fireplace and window overlooking Steep Hill.
Upper ground floor Dining Area - 3.6 metres x 3.8 metres overlooking the rear courtyard.
Rear Dining Area - 2.8 metres x 4.5 metres with staircase off and access to the open-plan kitchen area.
Kitchen - 2.9 metres x 7.7 metres, fully equipped with an excellent range of catering equipment to be included within the sale and also providing access to the dining and visitor WC facilities.
First Floor:
Dining Area - 4 metres x 4.3 metres, with exposed floorboards, period fireplace and attractive bay window overlooking Steep Hill.
Rear Dining Area/Office - 4.5 metres x 3.7 metres, with a further period fireplace and sash window to the rear.
Store Room - 3 metres x 3 metres.
Store Room 2 - 3 metres x 3.2 metres, with sink unit and staff WC facilities off.
Second Floor:
Office/Store Room - 4.4 metres x 3.9 metres, with two sash windows overlooking Steep Hill.
Third Floor:
Attic Store Room - 4.5 metres x 2.7 metres, providing an additional useful storage area.
In addition to the restaurant accommodation, as described above, there is a further gift shop at ground level, fronting onto Steep Hill - 3 metres x 5.2 metres, fully equipped and established as a popular retail outlet within this prime position.
Services
Mains drainage, gas, electricity and water are understood to be connected. Heating is via electric storage heaters.
EPC - C
Lease Terms
The property is held under the terms of a five year Lease commencing February 2024, with a Tenant option to determine the Lease in September 2026. The current rent is £24,000 per annum, covering the entire property including the retail outlet.
Rates
Rateable Value
26 Steep Hill comprising the ground floor retail gift shop - £9,600 (as of 1st April 2026).
27 Steep Hill comprising the three-storey restaurant premises - £15,500 (as of 1st April 2026)
Small Business Multiplier (2025/2026) 49.9p in the £.
The property may qualify for small business rates relief.
It may be possible to obtain Small Business Rates Relief, depending on individual circumstances.
VAT
VAT may be applicable in addition to the rent and sale price at the prevailing rate.
Legal Costs
The ingoing Tenant is responsible for a referencing fee of £150 inc VAT, together with the Landlord's and the current Tenant's reasonable legal costs associated with assigning/transferring the Lease and the purchase of the business. Further details are available on request.
Viewing
By prior appointment through Mundys Commercial.
- Service charge
- Ask agent
- Business rates
- Ask agent
- Use class
- E
- Listed building
- No
- Floors in building
- 3
- Tenure
- Leasehold
- Length of lease
- Ask agent
An Energy Performance certificate helps you understand the current energy efficiency of a property.
Read more about EPC requirements- BREEAM rating
- Ask agent
- Environmental description
- Ask agent
Brochure
Gigi's Bar & Bistro & Gift Shop, 26-27 Steep Hill, Lincoln, LN2 1LU
Your search history
You have no recent searches
Disclaimer - Property reference GigisBar. The information displayed about this property comprises a property advertisement. Rightmove.co.uk makes no warranty as to the accuracy or completeness of the advertisement or any linked or associated information, and Rightmove has no control over the content. This property advertisement does not constitute property particulars. The information is provided and maintained by MUNDYS PROPERTY SERVICES LLP, Lincoln. Please contact the selling agent or developer directly to obtain any information which may be available under the terms of The Energy Performance of Buildings (Certificates and Inspections) (England and Wales) Regulations 2007 or the Home Report if in relation to a residential property in Scotland.



















