Unit 6 Tweedbank Industrial Estate, Tweedbank, Galashiels, Scottish Borders
Size
6,353
Lease length
Ask agent
EPC
Ask agent
Parking
Ask agent
- Price per
- Primary use
- Light industrial
Key features
- Tarmacadam parking area with yard area to front
- Modern General Purpose Unit
Description
Relatively level and well configured site
Tarmacadam parking and yard area to front
Gross Internal Area 590.41 sq m (6,353 sq ft)
DESCRIPTION
A relatively level and well configured corner site extending to approximately 0.318 hectares (0.79 acres) landscaped with tarmacadam parking and yard to the front, verge to the east and west with further grounds to the rear which may provide scope for landscaping to provide additional yard space.
A modern steel-framed, general purpose industrial unit arranged over five bays, constructed in the 1980s. The building is externally clad in double-skinned plastisol-coated box profile sheeting with integrated quilt insulation, providing both durability and thermal efficiency. The building has distinctive moulded eaves. Internally, the unit benefits from a solid concrete floor throughout, suitable for a wide range of industrial, storage or trade counter uses. Lighting to the main workshop consists of suspended fluorescent units.
Eaves height is c.3.75m. Ridge height is c.4.75m.
Historically, the front elevation incorporated two full-height vehicular access doors. These openings have since been infilled with glazed panels and pedestrian access doors, improving natural light to the interior. The vehicular openings could be readily reinstated to provide roller shutter or similar loading access if required, offering flexibility for occupiers with distribution or workshop needs.
The easternmost three bays currently provide workshop accommodation. Within this section, stud partitioning has been installed to the northern corners to create a combination of workshop and office space, allowing for operational separation while maintaining practical workflow. The westernmost two bays are arranged as ancillary accommodation, formed with solid plastered internal divisions to provide a range of office, storage and support areas. This configuration is not structural and could be reconfigured or opened up with relative ease, enabling the layout to be tailored to suit a variety of business requirements.
Windows predominantly consist of the original timber-framed single-glazed units with some more recent uPVC double-glazed units to the front elevation. Overall, the building offers a versatile and adaptable space, well suited to light industrial, workshop, storage or hybrid office and operational use.
LOCATION
The subjects are located in a highly accessible position within the core of Tweedbank Industrial Estate, situated just south of the roundabout serving Tweedbank Railway Station, the southern terminus of the Borders Railway providing direct services to Edinburgh. The property lies approximately one mile east of Galashiels, the principal commercial and administrative centre of the Scottish Borders.
Tweedbank is a planned village established in the 1970s and forms an important part of the Central Borders. The settlement is arranged along Tweedbank Drive, its main spine road, with a clear distinction between the residential areas to the west and the industrial and business areas to the east. Within the centre of the residential area there is a well-established village core providing a range of amenities including a primary school, convenience store, hair and beauty salon, public house with restaurant, and modern office accommodation occupied by the Scottish Government’s Rural Payments and Inspections Division. The village also benefits from a public park and a man-made loch. In recent years Tweedbank has expanded further, notably with the completion of the Weavers Linn residential development to the south, reinforcing its role as a growing and sustainable community. According to the 2020 Mid-Year Population Estimates published by National Records of Scotland, Tweedbank has a population of approximately 1,990 residents, reflecting a stable and established local catchment.
The settlement is well positioned within the Central Borders, benefitting from excellent road connectivity via the A6091 (Melrose Bypass), with roundabouts at both eastern and western approaches to the village. Since the reopening of the Borders Railway in 2015, Tweedbank has been identified as a strategic growth location, with substantial areas of land at Lowood South allocated for residential and business development. A new office development at Tweedside Park has recently been completed with a second phase currently under construction, further strengthening the business environment. A prominent “Gateway” development at the eastern entrance to Tweedbank at the Broomilees Roundabout has also been constructed. This scheme, promoted by New Land Assets, is understood to have been developed by MFG with BP filling station, Budgens convenience store with associated Greggs and proposals for a Burger Kind drive-through mooted. A B & Q store has also been developed on the adjacent site significantly enhancing the amenity and profile of the area.
Unit 6 occupies a site to the western extremity of Tweedbank Industrial Estate readily accessible off the roundabout serving the station. Tweedbank Industrial Estate and is home to a number of established occupiers The surrounding occupier profile reflects Tweedbank’s strength as an established and expanding business location serving the wider Borders region.
Overall the subjects benefit from a highly accessible strategic position close to the English Scottish border, well suited to storage, distribution and transport related occupiers requiring efficient connectivity to both the Scottish Central Belt and the north of England.
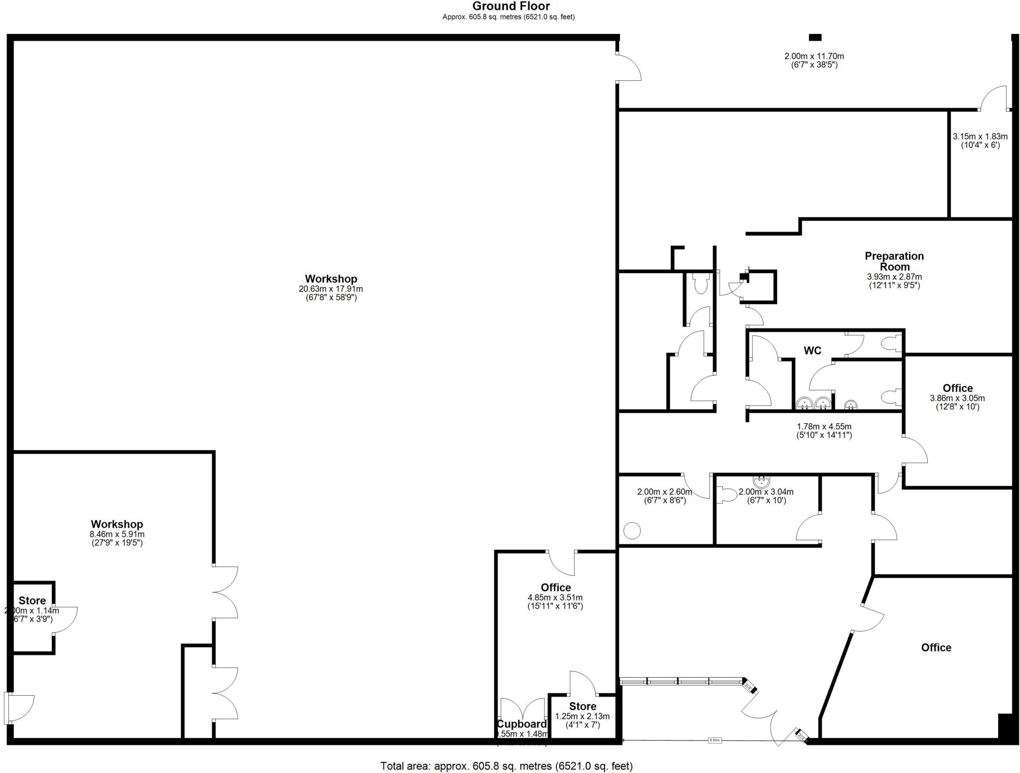
ACCOMMODATION
Recessed entrance porch, reception area with waiting room complete with tea-preparation area with two offices off and an accessible WC; rear hall linking to warehouse/ workshop within the three bays to the east of the unit with access to further office, Kitchen, preparation room, store room, ladies and gents WCs and plant room. The north east corner of the workshop has been sub-divided to form a further workshop with office to the north west with store room off.
AREAS
The property has been measured in accordance with the RICS Code of Measuring Practice (Latest Edition) to the following areas:
Workshop / Warehouse: 371.27 sq m / 3,995 sq ft
Office and Ancillary Accommodation: 219.14 sq m / 2,358 sq ft
Total: 590.41 sq m / 6,353 sq ft
E & oe Measurements taken using laser measure.
RATEABLE VALUE
According to the Scottish Assessor’s Association Website this unit is assessed to a Rateable Value of £33,000 effective from 01-Apr-2026.
SERVICES
All mains services are connected.
Heating to the main workshop is by means of a Pwrmatic gas space heater ducted through the unit. A Baxi Platinum 40 combi boiler provides central heating through the ancillary accommodation together with hot water supplemented by a large factory foam insulated Hercal hot water cylinder.
PLANNING
The subjects are zoned as an Established Business and Industry Site within the Scottish Borders Council Local Development. A range of uses within the Town and Country (Used Classes) (Scotland) Order 1997 (as amended) are likely to be supported at this site including Class 4 (Business / Light Industrial Use); Class 5 (General Industrial); Class 6 (Storage/Distribution).
Class 4 (Business / Light Industrial Use)
Class 5 (General Industrial)
Class 6 (Storage / Distribution)
There may also be potential for a range of trade counter or Sui Generis (site specific) uses. This category (Sui Generis) includes uses such as haulage yard, bus depot, veterinary surgery, vehicle sales, vehicle repairs, taxi or vehicle hire depot, or similar subject to Planning.
ENTRY
On the conclusion of legal missives.
LEASE TERMS
The unit will be let on full repairing and insuring terms.
VAT
Unless otherwise stated the prices quoted are exclusive of VAT. Any intending purchasers must satisfy themselves independently as to the instances of VAT in respect of any transaction.
LEGAL COSTS
Each party will be responsible for their own legal costs incurred in connection with this transaction.
VIEWING ARRANGEMENTS
By appointment only with the sole agents.
Edwin Thompson
76 Overhaugh Street
Galashiels
TD1 1DP
Tel:
Email: g.
IMPORTANT NOTICE
1. The particulars are set out as a general outline only for the guidance of intending purchasers and do not constitute, nor constitute part of, any offer or contract.
2. All descriptions, dimensions, plans, reference to condition and necessary conditions for use and occupation and other details are given in good faith and are believed to be correct, but any intending purchasers should not rely on them as statements or representations of fact but must satisfy themselves by inspection or otherwise as to their correctness.
3. No person in the employment of Edwin Thompson has any authority to make or give any representation or warranty whatsoever in relation to this property or these particulars, nor to enter into any contract relating to the property on behalf of the Agents, nor into any contract on behalf of the Vendor.
4. No responsibility can be accepted for loss or expense incurred in viewing the property or in any other way in the event of the property being sold or withdrawn.
5. Edwin Thompson is the generic trading name for Edwin Thompson Property Services Limited, a Limited Company registered in England and Wales (no.07428207). Registered office:28 St John’s Street, Keswick, Cumbria, CA12 5AF
- Clear height
- Ask agent
- Yard depth
- Ask agent
- Let type
- Ask agent
- Let contract length
- Ask agent
- Rent obligation
- Fully repairing and insuring
- Status
- Available
- Service charge
- Ask agent
- Business rates
- Ask agent
- Use class
- 5
An Energy Performance certificate helps you understand the current energy efficiency of a property.
Read more about EPC requirementsAsk agent
- BREEAM rating
- Ask agent
- Environmental description
- Ask agent
Brochure
Unit 6 Tweedbank Industrial Estate, Tweedbank, Galashiels, Scottish Borders
Founded in the English Lake District in 1880, Edwin Thompson now operate from eight offices in Northern England and the Scottish Borders - Berwick-upon-Tweed, Carlisle, Edinburgh, Galashiels, Keswick, Kendal, Newcastle and Windermere, as well as their original office in Keswick - with a client list ranging from major national companies , institutions and pension funds to smaller local companies and individuals, with interests throughout the UK.
Your search history
You have no recent searches
Disclaimer - Property reference brothers. The information displayed about this property comprises a property advertisement. Rightmove.co.uk makes no warranty as to the accuracy or completeness of the advertisement or any linked or associated information, and Rightmove has no control over the content. This property advertisement does not constitute property particulars. The information is provided and maintained by EDWIN THOMPSON PROPERTY SERVICES LIMITED, Galashiels. Please contact the selling agent or developer directly to obtain any information which may be available under the terms of The Energy Performance of Buildings (Certificates and Inspections) (England and Wales) Regulations 2007 or the Home Report if in relation to a residential property in Scotland.













