
Wild Arum Way, Chandlers Ford, SO53

Letting details
- Let available date:
- 29/11/2025
- Deposit:
- £1,955A deposit provides security for a landlord against damage, or unpaid rent by a tenant.Read more about deposit in our glossary page.
- Min. Tenancy:
- 12 months How long the landlord offers to let the property for.Read more about tenancy length in our glossary page.
- Let type:
- Long term
- Furnish type:
- Unfurnished
- Council Tax:
- Ask agent
- PROPERTY TYPE
End of Terrace
- BEDROOMS
3
- BATHROOMS
1
- SIZE
Ask agent
Key features
- Spacious Three Bedroom House
- Presented to High Standard Throughout
- Conservatory
- Stylish Kitchen
- Stunning Family Bathroom
- Garage With Power
- Delightful Cul-De-Sac Location
- Landscaped Rear Garden
- Available 29th November 2025
- Viewing By Appointment Only
Description
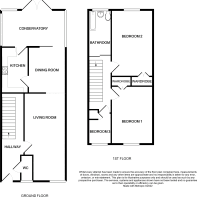
Entrance Hall:
Wood effect flooring, radiator, stairs to first floor landing, door to cloakroom, door to living room.
Cloakroom: (5'10" x 3'0)
Obscure double glazed window to front aspect, tiled flooring, suite comprising vanity wash hand basin with storage below and low level WC, towel rail.
Living Room: (15'4" x 11'5")
Double glazed window to front aspect, wood effect flooring flooring, feature fireplace, open to dining area, storage cupboard.
Dining Area: (10'1" x 7'1")
Wood effect flooring, sliding door to conservatory, radiator, door to kitchen.
Kitchen: (10'1" x 7'5")
Double glazed window to rear aspect, wood effect vinyl flooring, radiator, fitted with a range of wall and base level units with contrasting worksurfaces, sink and drainer with swan neck mixer tap over, fitted oven and hob with extractor over, space and plumbing for a washing machine or dishwasher, door to the conservatory.
Conservatory: (14'10" x 7'5")
Brick and double glazed construction, wood effect flooring, doors to garden.
First Floor Landing:
Fitted carpet, doors to bedrooms and bathroom, loft access.
Master Bedroom: (13'7" x 7'11")
Double glazed window to front aspect, fitted carpet, radiator, fitted blind, TV point, double wardrobe with shelving and hanging space.
Bedroom Two: (9'9" x 8'3" )
Double glazed window to rear aspect, fitted blinds, and shelves, double wardrobe with shelving and hanging space, radiator, fitted carpet
Bedroom Three: (10'11" x 6'8")
Double glazed window to front aspect, radiator, fitted blinds, built-in storage unit, airing cupboard with hanging space, fitted carpet,
Family Bathroom: (6'4" x 6'4")
A well designed, beautifully finished three piece suite comprising panel enclosed bath with combi showers, monsoon shower head, stylish circular wash hand basin with cupboards below and low level WC.
Front Garden:
A modern and minimalist front garden, laid to slate with potted plants and stylish spring trees.
Rear Garden:
A stunning, enclosed landscaped rear garden which is laid to lawn with white stone borders. There is an Indian sandstone seating area, planters and lovely flower beds.
Parking:
Driveway parking for one vehicle.
Garage:
With an up and over door to the front and a UPVC door to the rear garden, tiled flooring and its own consumer unit for power. There is space and plumbing for a washing machine, space for a fridge/freezer, workshop style bench and shelving.
Local Information:
Chandler's Ford is a highly desirable place to rent, offering a peaceful, family-friendly environment with excellent schools, strong community spirit, and abundant green spaces. It boasts great transport links via train, bus, and the M3, making commuting easy to nearby cities like Southampton and Winchester. The area is well-served by local amenities including supermarkets, cafes, parks, and health services, while recreational spaces like Hiltingbury Lakes and Hocombe Mead add to its outdoor appeal. Safe, well-kept, and welcoming, Chandler's Ford blends convenience with quality of life-ideal for families, professionals, and anyone seeking a well-rounded place to live.
Other Information:
Local Council: Eastleigh Borough Council
Council Tax Band: C
Infant/Junior School: Knightwood Primary School/St Francis Ce Primary School
Secondary School: The Toynbee School
Date Available: 29th November 2025
Furnishing: Unfurnished
Heating: Gas Central
Glazing: Double Glazing
EPC: D
Pets: No
Smokers: No
- COUNCIL TAXA payment made to your local authority in order to pay for local services like schools, libraries, and refuse collection. The amount you pay depends on the value of the property.Read more about council Tax in our glossary page.
- Ask agent
- PARKINGDetails of how and where vehicles can be parked, and any associated costs.Read more about parking in our glossary page.
- Driveway,Off street
- GARDENA property has access to an outdoor space, which could be private or shared.
- Private garden,Enclosed garden,Rear garden,Back garden
- ACCESSIBILITYHow a property has been adapted to meet the needs of vulnerable or disabled individuals.Read more about accessibility in our glossary page.
- Ask agent
Wild Arum Way, Chandlers Ford, SO53
Add an important place to see how long it'd take to get there from our property listings.
__mins driving to your place
Notes
Staying secure when looking for property
Ensure you're up to date with our latest advice on how to avoid fraud or scams when looking for property online.
Visit our security centre to find out moreDisclaimer - Property reference MT19. The information displayed about this property comprises a property advertisement. Rightmove.co.uk makes no warranty as to the accuracy or completeness of the advertisement or any linked or associated information, and Rightmove has no control over the content. This property advertisement does not constitute property particulars. The information is provided and maintained by Stanford Estate Agents, Eastleigh. Please contact the selling agent or developer directly to obtain any information which may be available under the terms of The Energy Performance of Buildings (Certificates and Inspections) (England and Wales) Regulations 2007 or the Home Report if in relation to a residential property in Scotland.
*This is the average speed from the provider with the fastest broadband package available at this postcode. The average speed displayed is based on the download speeds of at least 50% of customers at peak time (8pm to 10pm). Fibre/cable services at the postcode are subject to availability and may differ between properties within a postcode. Speeds can be affected by a range of technical and environmental factors. The speed at the property may be lower than that listed above. You can check the estimated speed and confirm availability to a property prior to purchasing on the broadband provider's website. Providers may increase charges. The information is provided and maintained by Decision Technologies Limited. **This is indicative only and based on a 2-person household with multiple devices and simultaneous usage. Broadband performance is affected by multiple factors including number of occupants and devices, simultaneous usage, router range etc. For more information speak to your broadband provider.
Map data ©OpenStreetMap contributors.








