Maesbrith, Dolgellau
- PROPERTY TYPE
Plot
- BEDROOMS
4
- BATHROOMS
2
- SIZE
Ask agent
Key features
- Popular residential location
- Fully serviced building plot
- Spectacular views
- Ten miles from sandy beaches
- Subject to 2006 building regulations
- Popular market town
- Close to all amenities
Description
As the site stands at ‘commenced’ status due to 5 properties being completed, as long as the remaining plots are built to the already approved plans the remaining plots will be subject to the building regulations passed in 2006 rather than current building regulations which equates to a substantial saving in construction costs.
With demand for housing in the area at a premium this development will provide a range of sought after attractive properties across all budgets. Access for vehicles and plant is excellent and the plot is situated in a an elevated position with glorious open views across the town and the surrounding hills and countryside. The development is a 10 minute walk from the bustling town centre.
Dolgellau is a bustling and ancient market town in one of the most beautiful parts of Snowdonia National Park at the foot of the Cader Idris mountain range. There is a cottage hospital, a doctor's surgery, two dental practices, primary and secondary schools, a tertiary college and restaurants, pubs, craft centre, shops and sporting clubs.
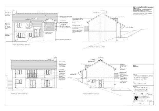
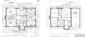
The Properties - Each property consists of 3 bedrooms, 2 bathrooms, lounge, dining room, kitchen, utility and integral garage. There is also a rear garden area & driveway parking.
Building Regulations - Building regulations application number is R06g/00260 for 17 houses. As the site stands at ‘commenced’ status due to 5 properties being completed, as long as the remaining plots are built to the already approved plans the remaining plots will be subject to the building regulations passed in 2006 rather than current building regulations.
The Locality - The plot is situated in a an elevated position with glorious open views across the town and the surrounding hills and countryside. The development is a 10 minute walk from the bustling town centre.
Dolgellau is a bustling and ancient market town in one of the most beautiful parts of Snowdonia National Park at the foot of the Cader Idris mountain range. There is a cottage hospital, a doctor's surgery, two dental practices, primary and secondary schools, a tertiary college and restaurants, pubs, craft centre, shops and sporting clubs. It is also just 10 miles from the coast and beautiful beaches.
Services - Mains water, gas, site drainage and sewerage are existing to the plot.
Access - The site is easily accessible for large plant and deliveries.
Tenure - The properties will all be freehold.
Council Tax - To be confirmed by the VOA.
Additional Information - Building Regulations approval was granted by Gwynedd Council in November 2007.
Brochures
Maesbrith, DolgellauBrochureMaesbrith, Dolgellau
NEAREST STATIONS
Distances are straight line measurements from the centre of the postcode- Morfa Mawddach Station6.8 miles
Notes
Disclaimer - Property reference 32225200. The information displayed about this property comprises a property advertisement. Rightmove.co.uk makes no warranty as to the accuracy or completeness of the advertisement or any linked or associated information, and Rightmove has no control over the content. This property advertisement does not constitute property particulars. The information is provided and maintained by Monopoly Buy Sell Rent, Llanbedr. Please contact the selling agent or developer directly to obtain any information which may be available under the terms of The Energy Performance of Buildings (Certificates and Inspections) (England and Wales) Regulations 2007 or the Home Report if in relation to a residential property in Scotland.
Map data ©OpenStreetMap contributors.





