Residential development for sale
Between Nettlestead & Somersham, Nr Ipswich, Suffolk
- SIZE
Ask agent
- SECTOR
Residential development for sale
Description
A traditional Suffolk barn with planning permission and listed building consent for conversion to an impressive single dwelling of approximately 2,600 sq ft (243 sqm) on a site of approximately 0.12 acres (0.05 hectares).
Location
Watering Farm Barn will be found in the Parish of Nettlestead, but just a short distance to the north-west of the popular village of Somersham. Somersham benefits from a village pub, The Duke of Marlborough, and other facilities including a hairdresser, primary school, garage, village hall, shop and children's play area, as well as St Mary's Church and Somersham Baptist Chapel. The village is surrounded by farmland but has easy access to the larger villages of Bramford and Claydon, both offering further everyday shopping and recreational facilities as well as primary and secondary schools. There is easy access to the A14 which offers access in an easterly direction to the A12, Ipswich and Felixstowe and in a westerly direction to Bury St Edmunds, Cambridge and on to the Midlands. The county town of Ipswich which is just 2 miles to the east, offers a wide range of facilities including mainline railway link to London's Liverpool Street.
Directions
Proceeding in a northerly direction on the A14 beyond Ipswich, take Junction 52 onto the B1113 where signposted to Bramford and Great Blakenham. At the roundabout take the second left onto the B1113 (Bramford Road). After a approximately half a mile take the second turning on your right onto Pound Lane. Continue along Pound Lane, turning right at the next junction onto Somersham Road. Continue through the village of Somersham where the barn will be found on the right hand side.
For those using the What3Words app: ///brilliant.professed.kitchens
Description
Planning Permission and Listed Building Consent were granted by Mid Suffolk District Council on 10th March 2022 for the change of use and conversion of a Grade II Listed barn to a dwelling house - References DC/21/06950 and DC/21/06951 respectively. Prior to these permissions lapsing in March 2025, the vendor implemented the planning permission by way of demolishing a lean-to to the rear of the building. The Community Infrastructure Levy (CIL) was also paid as part of the planning permission being implemented.
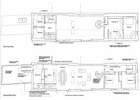
The approved plans that accompanied the planning permission provide for an impressive five bedroom dwelling of just over 2,600 sq ft (243 sqm). The proposed accommodation will comprise a covered porch incorporating useful storage, entrance hall, an impressive, double height and open plan kitchen, dining and living room area with circular staircase rising to the first floor, two ground floor double bedrooms, a bathroom and separate WC. The first floor accommodation will be accessed via two separate staircases; the circular staircase will lead to the master bedroom with a double bedroom, dressing room and en-suite bathroom, whilst the secondary staircase will lead to a landing area, two single bedrooms and a bathroom. To the front of the porch there will be a parking area for two vehicles and along the frontage of the barn it is proposed that there will be permeable brick paving enclosed within a low level brick wall. To the rear an existing building will be removed to make way for the garden area and this will incorporate a further area of permeable brick paving and enclosed within another low brick wall and proposed planting.
Extracts of the approved plans are included within these particulars.
Services
We anticipate that a purchaser will wish to bring new, independent underground supplies for water, electricity and drainage from the public highway and a suitable easement to undertake these works within the retained land will be granted, subject to any ‘making good’ works to the vendor’s satisfaction. It will be for the purchaser to satisfy themselves in relation to the provision and capacity of any services required.
Covenants & Purchaser Obligations
Prospective purchasers should note that the vendor will include a positive covenant within the sale contract requiring that the development should be in accordance with the planning permission granted and any variation will need to be with the vendor’s prior consent, which is not to be unreasonably withheld.
Access to Watering Farm Barn will be via the existing roadway, although this will be retained by the vendors. The vendors will covenant only to use that access for domestic and light goods vehicles only with a new independent access for agricultural vehicles being created to the west. The vendors will not be obliged to maintain the roadway to any better standard than that for agricultural purposes only, although the purchasers can upgrade the roadway should they so wish. Moving forward the purchasers will be obliged to contribute a fair proportion towards the maintenance and upkeep of the roadway.
The vendors will include a covenant/obligation within the sale contract not to use the agricultural buildings at the rear for the housing of any livestock. The vendors will also include a covenant/obligation requiring that the purchaser, and future purchasers, will not object to any planning application to redevelop the retained barns to the north for residential purposes.
Architects
HAT Projects, Trinity Works, 24 Trinity Street, Colchester, CO1 1JN Tel:
Email: . For the attention of Hanna Loftus.
Local Authority
Mid Suffolk District Council, Endeavour House, 8 Russell Rd, Ipswich IP1 2BX; Tel:
CIL
We understand that Community Infrastructure Levy (CIL) was applicable to the planning permission and the CIL Liability Notice advised that £512.82 was payable, subject to indexation. As part of the implementation works we understand that the vendor has settled the CIL liability for this scheme. However, any detailed enquiries relating to CIL should be referred to the local planning authority, Mid Suffolk District Council; . Reference: LN00005946.
Viewing
Prospective purchasers should note that to the rear of Watering Farm Barn is a working arable farm and therefore viewings should be strictly by prior appointment with the selling agents. The main range of the barn is secured and therefore access will be required by prior appointment.
NOTES
1. Every care has been taken with the preparation of these particulars, but complete accuracy cannot be guaranteed. If there is any point, which is of particular importance to you, please obtain professional confirmation. Alternatively, we will be pleased to check the information for you. These Particulars do not constitute a contract or part of a contract. All measurements quoted are approximate. The Fixtures, Fittings & Appliances have not been tested and therefore no guarantee can be given that they are in working order. Photographs are reproduced for general information and it cannot be inferred that any item shown is included. No guarantee can be given that any planning permission or listed building consent or building regulations have been applied for or approved. The agents have not been made aware of any covenants or restrictions that may impact the property, unless stated otherwise. Any site plans used in the particulars are indicative only and buyers should rely on the Land Registry/transfer plan.
2. The Money Laundering, Terrorist Financing and Transfer of Funds (Information on the Payer) Regulations 2017 require all Estate Agents to obtain sellers’ and buyers’ identity.
3. Interested parties should note that the property forms part of a working arable farm, Watering Farm, and the buildings to the north of the site are still used for the storage of crops.
4. Prospective purchasers should note that the parcel of land opposite the barn, to the north-west, benefits from planning permission for the construction of three new dwellings and this site is also being offered for sale separately.
April 2025
Brochures
Between Nettlestead & Somersham, Nr Ipswich, Suffolk
NEAREST STATIONS
Distances are straight line measurements from the centre of the postcode- Needham Market Station3.8 miles
- Ipswich Station5.8 miles
Notes
Disclaimer - Property reference S253925. The information displayed about this property comprises a property advertisement. Rightmove.co.uk makes no warranty as to the accuracy or completeness of the advertisement or any linked or associated information, and Rightmove has no control over the content. This property advertisement does not constitute property particulars. The information is provided and maintained by Clarke and Simpson Commercial, Framlingham. Please contact the selling agent or developer directly to obtain any information which may be available under the terms of The Energy Performance of Buildings (Certificates and Inspections) (England and Wales) Regulations 2007 or the Home Report if in relation to a residential property in Scotland.
Map data ©OpenStreetMap contributors.





