Umbria, Terni, Calvi dell`Umbria, Italy
- PROPERTY TYPE
Farm House
- BEDROOMS
4
- BATHROOMS
4
- SIZE
3,305 sq ft
307 sq m
Key features
- Farm House
- wooded arable land
- Land
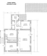
Description
State of repair
The farmhouse was completely renovated in 2010. The farmhouse with its exposed local stone walls, wooden attics and terracotta tiles, handmade terracotta floors, chestnut wood fixtures, elegantly reflects the characteristics of an Umbrian farmhouse. General structural safety: load-bearing structures completely renovated for more than 10 years and less than 20 years. energy saving level: bee category between "d" and "f". Congruity of the surfaces of the uncovered and covered spaces with respect to the surface of the building: excellent. Rationality, functionality and "flow" of the internal spaces - Internal layout: excellent. Degree of internal finishing: excellent. Degree of external finishing: excellent. Degree of ordinary and extraordinary maintenance: excellent. Internal features: terracotta floors, multiple entrances, bathroom with shower. External fixtures: double glass / wood. Year of construction: 1800. Last renovation year: 2010.
Utilities
All utilities are present, water is supplied by the aqueduct and collection of rainwater in two cisterns. Electricity is supplied. Electrical system quality: built for more than 10 years and less than 20 years. Heating system quality: built for more than 10 years and less than 20 years. Sewage system quality: built for more than 10 years and less than 20 years . Water system quality: built for more than 10 years and less than 20 years. Cooling system quality: built for more than 30 years or none at all.
Use and Potential Uses
The property is perfect as a country house for holidays and weekends, or as a main residence. With a swimming pool, the farmhouse would also lend itself as a home for seasonal rentals.
Location
The property is located less than 2 km from Calvi dell'Umbria, favored by the proximity and the historical and monumental heritage of Narni 15 km, Terni 30 km, Viterbo 50 km, Orvieto and Todi 60 km and Rome less than an hour away. Rome International Airport is less than an hour's drive away.
Land registry details
The Great Estate group carries out a technical due diligence on each property acquired through the seller's technician, which allows us to know in detail the urban and cadastral status of the property. This due diligence may be requested by the client at the time of a real interest in the property.
Ownership details and eventual contractual obligations
This property is registered to an individual/s and the sale will be subject to registration tax according to current regulations (see private purchase costs).
Umbria, Terni, Calvi dell`Umbria, Italy
NEAREST AIRPORTS
Distances are straight line measurements- Ciampino(International)40.6 miles
- Leonardo da Vinci(International)43.5 miles
Advice on buying Italian property
Learn everything you need to know to successfully find and buy a property in Italy.
Notes
This is a property advertisement provided and maintained by Great Estate Immobiliare, Italy (reference 6995) and does not constitute property particulars. Whilst we require advertisers to act with best practice and provide accurate information, we can only publish advertisements in good faith and have not verified any claims or statements or inspected any of the properties, locations or opportunities promoted. Rightmove does not own or control and is not responsible for the properties, opportunities, website content, products or services provided or promoted by third parties and makes no warranties or representations as to the accuracy, completeness, legality, performance or suitability of any of the foregoing. We therefore accept no liability arising from any reliance made by any reader or person to whom this information is made available to. You must perform your own research and seek independent professional advice before making any decision to purchase or invest in overseas property.





