2 bedroom apartment for sale
Eurotowers, Gibraltar, Gibraltar
- PROPERTY TYPE
Apartment
- BEDROOMS
2
- SIZE
Ask agent
Key features
- Lift access
- Squash courts
- Communal pool
- Duplex apartment
- Convenient location
- Parking and storage available for additional charge
Description
Additional Information
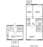
Internal 95 sq m
External 5 sq m
Service charges £2,106 pa
Rates £566 pa
Features
* Lift access
* Squash courts
* Communal pool
* Duplex apartment
* Convenient location
* Parking and storage available for additional charge
Brochures
PDF LinkMore detailsEurotowers, Gibraltar, Gibraltar
NEAREST AIRPORTS
Distances are straight line measurements- Gibraltar (North Front)(International)0.5 miles
Notes
This is a property advertisement provided and maintained by Chestertons Global, Gibraltar (reference 162083_17800558) and does not constitute property particulars. Whilst we require advertisers to act with best practice and provide accurate information, we can only publish advertisements in good faith and have not verified any claims or statements or inspected any of the properties, locations or opportunities promoted. Rightmove does not own or control and is not responsible for the properties, opportunities, website content, products or services provided or promoted by third parties and makes no warranties or representations as to the accuracy, completeness, legality, performance or suitability of any of the foregoing. We therefore accept no liability arising from any reliance made by any reader or person to whom this information is made available to. You must perform your own research and seek independent professional advice before making any decision to purchase or invest in overseas property.





