Studland Drive, Milford on Sea

- PROPERTY TYPE
Detached
- BEDROOMS
4
- BATHROOMS
3
- SIZE
Ask agent
- TENUREDescribes how you own a property. There are different types of tenure - freehold, leasehold, and commonhold.Read more about tenure in our glossary page.
Freehold
Key features
- Integral double garage and driveway
- Large south facing balcony overlooking garden and woodlands beyond
- Situated on the leafy outskirts of Milford, approx. 1 mile from the village centre
- Direct solar heating system for the hot water
- Beautiful woodland walks on the doorstep
Description
The house is situated on a very quiet road, in a sought after part of Milford on Sea and is within walking distance of the beach.
Offered with VACANT POSSESSION, the property would now benefit from a degree of modernisation.
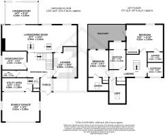
Accommodation Summary:
Ground Floor:
* Hall
* Cloakroom
* Kitchen/Breakfast Room
* Living/Dining Room
* Conservatory
* Study/Bedroom
First Floor:
* Two Bedrooms with En Suite Shower Rooms, both with access to the large south-facing Balcony
* One further Bedroom
* Family Bathroom
* Loft Room
Additional Information:
* Freehold
* Council tax band F
MILFORD ON SEA
Milford on Sea, situated on the south coast midway between Bournemouth and Southampton on the edge of The New Forest National Park with convenient mainline train links from both nearby New Milton and Brockenhurst to London Waterloo.
The picturesque village of Milford on Sea boasts an excellent array of award winning restaurants, bars, pubs, independent shops and boutiques.
Additionally, there is a wealth of social and cultural clubs within the village and local surrounding area. Offering sailing, paddle boarding, tennis, golf, pilates, art groups, u3A and an active community centre, to name just a few.
The quiet sailing hamlet of Keyhaven is easily accessible, a mere 1 mile away, whilst the pretty Georgian market town of Lymington is approximately 3 miles away, with its renowned sailing facilities and car/passenger ferry service to Yarmouth, Isle of Wight.
- COUNCIL TAXA payment made to your local authority in order to pay for local services like schools, libraries, and refuse collection. The amount you pay depends on the value of the property.Read more about council Tax in our glossary page.
- Ask agent
- PARKINGDetails of how and where vehicles can be parked, and any associated costs.Read more about parking in our glossary page.
- Yes
- GARDENA property has access to an outdoor space, which could be private or shared.
- Yes
- ACCESSIBILITYHow a property has been adapted to meet the needs of vulnerable or disabled individuals.Read more about accessibility in our glossary page.
- Ask agent
Studland Drive, Milford on Sea
Add an important place to see how long it'd take to get there from our property listings.
__mins driving to your place
Get an instant, personalised result:
- Show sellers you’re serious
- Secure viewings faster with agents
- No impact on your credit score

Your mortgage
Notes
Staying secure when looking for property
Ensure you're up to date with our latest advice on how to avoid fraud or scams when looking for property online.
Visit our security centre to find out moreDisclaimer - Property reference 50sd. The information displayed about this property comprises a property advertisement. Rightmove.co.uk makes no warranty as to the accuracy or completeness of the advertisement or any linked or associated information, and Rightmove has no control over the content. This property advertisement does not constitute property particulars. The information is provided and maintained by Collins & Butler LTD, Milford on Sea. Please contact the selling agent or developer directly to obtain any information which may be available under the terms of The Energy Performance of Buildings (Certificates and Inspections) (England and Wales) Regulations 2007 or the Home Report if in relation to a residential property in Scotland.
*This is the average speed from the provider with the fastest broadband package available at this postcode. The average speed displayed is based on the download speeds of at least 50% of customers at peak time (8pm to 10pm). Fibre/cable services at the postcode are subject to availability and may differ between properties within a postcode. Speeds can be affected by a range of technical and environmental factors. The speed at the property may be lower than that listed above. You can check the estimated speed and confirm availability to a property prior to purchasing on the broadband provider's website. Providers may increase charges. The information is provided and maintained by Decision Technologies Limited. **This is indicative only and based on a 2-person household with multiple devices and simultaneous usage. Broadband performance is affected by multiple factors including number of occupants and devices, simultaneous usage, router range etc. For more information speak to your broadband provider.
Map data ©OpenStreetMap contributors.




