Apulia, Lecce, Aradeo, Italy
- PROPERTY TYPE
Detached
- BEDROOMS
4
- BATHROOMS
3
- SIZE
2,142 sq ft
199 sq m
Key features
- 7 Rooms
- TV aerial Autonomous
- Closet
- Conditioned air
- Shower
- Aluminum frames
Description
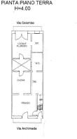
For sale in Aradeo, a one-of-a-kind property, consisting of two independent homes, perfect for those who want to combine modernity, comfort and large living spaces. A property that stands out for the quality of its finishes, attention to energy efficiency and the versatility of its spaces.
The main house, located on the first floor, was completely renovated in 2022 and presents itself as an elegant residence characterized by bright and harmonious rooms. The heart of the house is the large living room, a refined and welcoming space, embellished by a balcony overlooking the street, perfect for letting natural light filter in and giving a sense of openness and continuity with the outside. The cooking area, a generously sized kitchenette, ideal for those who love practicality without sacrificing aesthetics, opens towards the living area with a windowed view that guarantees an airy atmosphere.
The sleeping area consists of two bedrooms, both comfortable and well distributed, of which the master bedroom is enriched by a balcony overlooking the back road, ensuring privacy and tranquility. Two modern and functional bathrooms, together with a hallway equipped with laundry, complete the living level. From here, a staircase leads to the flat roof, an authentic relaxation space, already set up with lighting and a removable gazebo, perfect for enjoying summer evenings. There is also a predisposition for a methane gas barbecue, designed for those who love entertaining guests in an exclusive context.
The house is equipped with cutting-edge systems that guarantee efficiency and sustainability: a latest-generation condensing boiler and solar panels with a 300-liter boiler, capable of significantly reducing energy consumption. Comfort is further ensured by air conditioning in the living area, PVC window frames with high thermal and acoustic insulation and the presence of mosquito nets in all rooms.
The second housing unit is located on the ground floor, an area that offers both renovated rooms and spaces to customize according to your needs. The entrance leads directly into a large living area with a vaulted ceiling, a suggestive and air-conditioned environment, followed by a spacious bedroom and a completely renovated bathroom. Continuing, you access a part of the house that needs modernization, consisting of two additional rooms and a hallway, thus offering multiple possibilities of use.
To complete the property, a garage connected to the house on the ground floor, with access from the rear road and equipped with water connection and mezzanine, a further added value that makes this housing solution even more functional and versatile.
This residence represents an extraordinary opportunity for those who want a home ready to live in, with spaces already renovated and equipped with every comfort, without giving up the possibility of customizing additional rooms according to their taste. A property that combines tradition and modernity, efficiency and prestige, ready to welcome those looking for a home that knows how to combine elegance and practicality.
For more information or to book a visit, do not hesitate to contact us.
Apulia, Lecce, Aradeo, Italy
NEAREST AIRPORTS
Distances are straight line measurements- Brindisi - Salento(International)37.5 miles
Advice on buying Italian property
Learn everything you need to know to successfully find and buy a property in Italy.
Notes
This is a property advertisement provided and maintained by Coldwell Banker Gruppo Bodini, Italia (reference 280856_185511001004650) and does not constitute property particulars. Whilst we require advertisers to act with best practice and provide accurate information, we can only publish advertisements in good faith and have not verified any claims or statements or inspected any of the properties, locations or opportunities promoted. Rightmove does not own or control and is not responsible for the properties, opportunities, website content, products or services provided or promoted by third parties and makes no warranties or representations as to the accuracy, completeness, legality, performance or suitability of any of the foregoing. We therefore accept no liability arising from any reliance made by any reader or person to whom this information is made available to. You must perform your own research and seek independent professional advice before making any decision to purchase or invest in overseas property.






