
Planning Granted | Newport
- PROPERTY TYPE
Commercial Property
- BEDROOMS
14
- BATHROOMS
10
- SIZE
Ask agent
Key features
- FOR SALE BY ONLINE AUCTION
- WEDNESDAY 11TH MARCH 2026
- VIRTUAL TOUR NOW ONLINE
- VIEWINGS – REFER TO DETAILS
- DOWNLOAD FREE LEGAL PACK
- MARCH LIVE ONLINE AUCTION
- FREEHOLD DEVELOPMENT OPPORTUNITY
- RESI PLANNING GRANTED
- GDV - £2,291,500 | RENT - £186,300 pa
- EXTENDED 8 WEEK COMPLETION
Description
For Sale By Live Online Auction - ADDRESS | Drill Hall, Lower Dock Street, Newport, Wales NP20 1EF
Lot Number 44
The Live Online Auction is on Wednesday 11th March 2026 @ 12:00 Noon
Registration Deadline is on Friday 6th March 2026 @ 16:00
The Auction will be streamed LIVE ONLINE via the Hollis Morgan website & you can choose to bid by telephone, proxy or via your computer.
Registration is a simple online process – please visit the Hollis Morgan auction website and click “REGISTER TO BID”
The Property - The Grade II Listed Drill hall which was completed in 1901 was the headquarters for the 3rd Monmouthshire Rifle Volunteer Corps. The hall was decommissioned in the 1960s and has been used as a religious building until a fire severely damaged it in March 2018. The property which is located on the corner of Lower Dock St and Caroline St, close to Newport city centre.
Sold with vacant possession.
Tenure - Freehold
The Opportunity - PLANNING GRANTED | 9 FLATS
Planning has been granted to convert this iconic property into a scheme of 9 luxury flats with a small commercial element.
We understand the GDV is in the region of £2.3m
FLAT 1 – 2 BED | 66m2
FLAT 2 – 2 BED | 63.5m2
FLAT 3 – 1 BED | 49m2
FLAT 4 – 2 BED | 67m2
FLAT 5 – 2 BED | 76m2
FLAT 6 – 1 BED | 58m2
FLAT 7 – 1 BED | 67m2
FLAT 8 – 2 BED | 79m2
FLAT 9 – 2 BED | 81m2
GYMNASIUM / OFFICE SPACE | 93.5m2
COMMERCIAL
Interested parties may wish to investigate further planning and change of use on the commercial element to create additional residential flats.
Subject to consents
Newport City Centre Masterplan Area and the EOI Form for the grants earmarked for the development has been included in the Legal pack.
We understand that The Drill Hall is within the “Core City” regeneration region for the Place-maker Grants.
Planning Granted - TOWN AND COUNTRY PLANNING ACT 1990 [as amended]
Application No: 23/0743
Application Type: Full
Proposal: CONVERSION, REFURBISHMENT AND EXTENSION OF THE FORMER DRILL HALL TO CREATE A MIXED USE SCHEME COMPRISING NINE FLATS AND FIRST FLOOR OFFICE/GYM (RESUBMISSION FOLLOWING REFUSAL OF 22/1041)
Site/Location: Drill Hall, 58 Lower Dock Street, Newport, South Wales, NP20 1EF
Decision Date: 11th April 2024
Planning Information - Full details of the proposed scheme and drawings can be downloaded with the online legal pack.
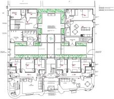
Proposed Schedule Of Accomodation - GROUND FLOOR
FLAT 1 – 2 BED – 66m2
LIVING ROOM | KITCHEN | BEDROOM 1 | BEDROOM 2 | HALL | BATHROOM | STORAGE CUPBOARD
FLAT 2 – 2 BED – 63.5m2
LIVING ROOM | KITCHEN | BEDROOM 1 | BEDROOM 2 | HALL | BATHROOM | STORAGE CUPBOARD
FLAT 3 – 1 BED 49m2
OPEN PLAN LIVING ROOM & KITCHEN | BEDROOM | HALL | BATHROOM | STORAGE CUPBOARD
FIRST FLOOR
GYMNASIUM / OFFICE SPACE – 93.5m2
FLAT 4 – 2 BED – 67m2
LIVING ROOM | KITCHEN | BEDROOM 1 | BEDROOM 2 | HALL | BATHROOM | STORAGE CUPBOARD
FLAT 5 – 2 BED – 76m2
LIVING ROOM | KITCHEN | BEDROOM 1 | EN-SUITE | BEDROOM 2 | HALL | BATHROOM | STORAGE CUPBOARD
FLAT 6 – 1 BED – 58m2
OPEN PLAN LIVING ROOM & KITCHEN | BEDROOM | HALL | BATHROOM | STORAGE CUPBOARD
SECOND FLOOR
FLAT 7 – 1 BED – 67m2
LIVING ROOM | KITCHEN | BEDROOM 1 | BEDROOM 2 | HALL | BATHROOM | STORAGE CUPBOARD
FLAT 8 – 2 BED – 79m2
OPEN PLAN LIVING ROOM & KITCHEN | BEDROOM 1 | EN-SUITE | BEDROOM 2 | HALL | BATHROOM | STORAGE CUPBOARD
THIRD FLOOR
FLAT 9 – 2 BED – 81m2 (above heigh of 1.5m)
LIVING AREA | KITCHEN | BEDROOM 1 | EN-SUITE | BEDROOM 2 | HALL | BATHROOM | STORAGE CUPBOARD 1 | STORAGE CUPBOARD 2
Gdv & Rental Appraisal - FLAT 1 – £246,000 | £1,700 pcm | £20,400 pa
FLAT 2 – £225,000 | 1,650 pcm | £19,800 pa
FLAT 3 – £197,000 | 1,200 pcm | £14,400 pa
FLAT 4 – £250,000 | 1,700 pcm | £20,400 pa
FLAT 5 – £290,000 | £1,850 pcm | £22,200 pa
FLAT 6 – £200,000 | £1,300 pcm | £15,600 pa
FLAT 7 – £220,000 | £1,400 pcm | £16,800 pa
FLAT 8 – £280,000 | £1,850 pcm | £22,200 pa
FLAT 9 – £285,000 | £1,875 pcm | £22,500 pa
COMMERCIAL - £98,500 | £1,000 pcm | £12,000 pa
GDV - £2,291,500
RENT - £15,525 pcm
RENT - £186,300 pa
* Values provided to vendor by independent local agents.
Location - A popular residential location with easy access to Newport City Centre and excellent road networks to Cardiff & Bristol being just 2 miles from Junction 24 of the M4 at the Coldra and 2 miles from the city centre. Interested parties should note the removal of both Severn Bridge Tolls has made Newport and the surrounding areas extremely popular.
Solicitors & Completion - Alan Turner
Alan Turner & Co Solicitors
EXTENDED COMPLETION
Completion is set for 8 weeks or earlier subject to mutual consent.
Important Auction Information - VIEWINGS
Please submit a viewing request online and we will contact you to organise an appointment.
We will send you an email and text to confirm the appointment time and the full property address.
Viewings are supervised by a member of the Hollis Morgan Auction team who will meet you at the property.
MATERIAL INFORMATION
Information including utilities, Electricity supply, Water supply, Sewerage, Heating, Broadband, Mobile signal / coverage, Parking, Building safety, Restrictions and rights, Rights and easements, Flood risk, Erosion risk, Coastal erosion risk, Planning permission for proposal for development, Property accessibility / adaptations, Coalfield or mining area all of which will be supplied within the legal pack that can be accessed for free via the Hollis Morgan website or via your EIG account.
ONLINE LEGAL PACKS
Digital Copies of the Online legal pack can be downloaded Free of Charge.
Please visit the Hollis Morgan Website and select the chosen lot from our Current Auction List.
Press the GREEN button to "Download Legal Packs" For the first visit you will be required to register simply with your email and a password.
Having set up your account you can download legal packs or if they are not yet available, they will automatically be sent to you when we receive them.
You will be automatically updated by email if any new information is added.
There will be a note added to the list to confirm AUCTION PACK NOW COMPLETE when no further information is due to be added.
*** STAY UPDATED *** By registering for the legal pack we can ensure you are kept updated on any changes to this Lot in the build up to the sale.
BUYER’S PREMIUM
Please be aware all purchasers are subject to a £1,500 + VAT (£1,800 inc VAT) buyer's premium which is ALWAYS payable upon exchange of contracts whether the sale is concluded before, during or after the auction date.
GUIDE PRICE
An indication of the seller's current minimum acceptable price at auction. The guide price or range of guide prices is given to assist consumers in deciding whether to pursue a purchase. It is usual, but not always the case, that a provisional reserve range is agreed between the seller and the auctioneer at the start of marketing. As the reserve is not fixed at this stage and can be adjusted by the seller at any time up to the day of the auction in the light of interest shown during the marketing period, a guide price is issued. This guide price can be shown in the form of a minimum and maximum price range within which an acceptable sale price (reserve) would fall, or as a single price figure within 10% of which the minimum acceptable price (reserve) would fall. A guide price is different to a reserve price (see separate definition). Both the guide price and the reserve price can be subject to change up to and including the day of the auction.
RESERVE PRICE
The seller's minimum acceptable price at auction and the figure below which the auctioneer cannot sell. The reserve price is not disclosed and remains confidential between the seller and the auctioneer. Both the guide price and the reserve price can be subject to change up to and including the day of the auction.
PRE AUCTION OFFERS
Some vendors are willing to consider offers prior to the auction.
Pre auction offers can ONLY be submitted by completing the online PRE AUCTION OFFER FORM
The form can be found on the Hollis Morgan website on the individual auction property listing.
Please note offers will not be considered until you have inspected the COMPLETE LEGAL PACK once it has been released.
There will be a note added to the list to confirm AUCTION PACK NOW COMPLETE when our client’s solicitor informs us no further information is due to be added.
In the event of an offer being accepted the property will only be removed from the online auction and viewings stopped once contracts have successfully EXCHANGED subject to the standard auction terms and payment of the buyer’s premium (£1,800 Inclusive of VAT) to Hollis Morgan.
Contracts can be exchanged via the solicitors or at the Hollis Morgan offices by appointment only.
REGISTRATION PROCESS
The registration process is extremely simple – visit the Hollis Morgan auction website and click on the “Register to Bid” button.
The “Register to Bid” button can be found on the auction home page or on the individual lot listings.
Please note this function is not available on Rightmove or Zoopla.
Stage 1 – Complete the Online Bidding Form
Stage 2 – Upload your certified ID
Stage 3 – Invitation to bid
Stage 4 – Pay your security deposit (£6,800)
You are now ready to bid – Good luck!
If your bid is successful, the balance of the deposit monies must be transferred to our client account within 24 hours of the auction sale.
If you are unsuccessful at the auction your holding deposit will be returned within 48 hours.
SURVEYS AND VALUATIONS
If you would like to arrange a survey or mortgage valuation of this Lot BEFORE the auction, please instruct your appointed surveyor to contact Hollis Morgan and we will arrange access for them to inspect the property. Please note that buyers CANNOT attend the surveys and the surveyors are responsible for collecting and returning keys to the Hollis Morgan offices in Clifton.
AUCTION FINANCE & BRIDGING LOANS
Some properties may require specialist auction finance- please contact Hollis Morgan for access to expert advice and whole of market rates from our independent brokers.
Hollis Morgan may receive introductory fees for this service from the broker.
AUCTION BUYER’S GUIDE VIDEO
We have short video guides for both buying and selling by Public Auction on the Hollis Morgan Website. If you have any further questions regarding the process, please don’t hesitate to contact Auction HQ.
2026 CHARITY OF THE YEAR
Hollis Morgan are proud to be supporting Bristol Schools Rugby Union as our 2026 Charity of the Year. BSRU ( working in association with Bristol Bears ) oversee and support rugby in all schools, State and Independent , in the Greater Bristol area. Bristol Schools provide School Rugby Development opportunities and County level fixtures for secondary boys and girls. Including playing fixtures at U18s against the leading Independent Schools in our region, schools such as Clifton College, BGS, QEH, Collegiate and Millfield. For more information and details of the fixture list please follow them on Instagram.
AUCTION PROPERTY DETAILS DISCLAIMER
Hollis Morgan endeavour to make our sales details clear, accurate and reliable in line with the Consumer Protection from Unfair Trading Regulations 2008 but they should not be relied on as statements or representations of fact, and they do not constitute any part of an offer or contract. All Hollis Morgan references to planning, tenants, boundaries, potential development, tenure etc is to be superseded by the information contained in the legal pack. It should not be assumed that this property has all the necessary Planning, Building Regulation, or other consents. Any services, appliances and heating system(s) listed have not been checked or tested. Please note that in some instances the photographs may have been taken using a wide-angle lens. The seller does not make any representation or give any warranty in relation to the property, and we have no authority to do so on behalf of the seller.
Property Details Disclaimer - Hollis Morgan endeavour to make our sales details clear, accurate and reliable in line with the Consumer Protection from Unfair Trading Regulations 2008 but they should not be relied on as statements or representations of fact, and they do not constitute any part of an offer or contract. All Hollis Morgan references to planning, tenants, boundaries, potential development, tenure etc is to be superseded by the information contained in the legal pack. It should not be assumed that this property has all the necessary Planning, Building Regulation, or other consents. Any services, appliances and heating system(s) listed have not been checked or tested. Please note that in some instances the photographs may have been taken using a wide-angle lens. The seller does not make any representation or give any warranty in relation to the property, and we have no authority to do so on behalf of the seller.
Brochures
PLANNING GRANTED | NEWPORT BrochurePlanning Granted | Newport
NEAREST STATIONS
Distances are straight line measurements from the centre of the postcode- Newport (S. Wales) Station0.4 miles
- Pye Corner Station2.2 miles
- Rogerstone Station3.4 miles
Notes
Disclaimer - Property reference 33761606. The information displayed about this property comprises a property advertisement. Rightmove.co.uk makes no warranty as to the accuracy or completeness of the advertisement or any linked or associated information, and Rightmove has no control over the content. This property advertisement does not constitute property particulars. The information is provided and maintained by Hollis Morgan, Commercial, Land, Development and Investment. Please contact the selling agent or developer directly to obtain any information which may be available under the terms of The Energy Performance of Buildings (Certificates and Inspections) (England and Wales) Regulations 2007 or the Home Report if in relation to a residential property in Scotland.
Auction Fees: The purchase of this property may include associated fees not listed here, as it is to be sold via auction. To find out more about the fees associated with this property please call Hollis Morgan, Commercial, Land, Development and Investment on 0117 973 6565.
*Guide Price: An indication of a seller's minimum expectation at auction and given as a Guide Price or a range of Guide Prices. This is not necessarily the figure a property will sell for and is subject to change prior to the auction.
Reserve Price: Each auction property will be subject to a Reserve Price below which the property cannot be sold at auction. Normally the Reserve Price will be set within the range of Guide Prices or no more than 10% above a single Guide Price.
Map data ©OpenStreetMap contributors.







