
3 bedroom detached house for sale
Stafford Street, Heath Hayes, Cannock

- PROPERTY TYPE
Detached
- BEDROOMS
3
- BATHROOMS
1
- SIZE
Ask agent
- TENUREDescribes how you own a property. There are different types of tenure - freehold, leasehold, and commonhold.Read more about tenure in our glossary page.
Freehold
Key features
- Well presented three bedroom detached family home
- Two large reception rooms plus breakfast kitchen
- Separate utility and WC
- Large family shower room
- Stunning rear garden with patio, lawn, summer house and garage
- Two car driveway with extra parking available at the rear
Description
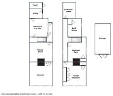
Internally, the property offers a well-designed layout comprising: a spacious front lounge, a bright and airy dining room, and a side hallway with stairs leading to the first floor and a door to the breakfast kitchen. Additional features include a utility room, an outside WC, a landing area, a large family shower room, and three well-proportioned bedrooms, with the master bedroom being particularly impressive in size.
Externally, the property benefits from a side driveway providing parking for at least two vehicles, along with double gated access to the garden, which offers additional parking if required. The expansive rear garden boasts both patio and lawn areas, perfect for entertaining or family activities. Completing the outdoor space is a charming rear summer house and a detached garage.
The property is located in Heath Hayes, Cannock, just ten minutes from Cannock Chase, an area of outstanding natural beauty. The property benefits from good local schooling, supermarket, post office, dentist and bus routes all within walking distance. Its location provides ease of access to Cannock town centre and commuter routes including A460, A5 and M6 toll road linking the Midlands motorway network.
SIDE HALLWAY:
UPVC entrance door and windows to the side, carpeted flooring, ceiling light point, radiator, decorative dado rail, stairs to the first floor and doors to the dining room and breakfast kitchen.
LOUNGE:
14' 7'' x 14' 5'' (4.438m x 4.403m)
Feature fireplace with fitted coal effect gas fire, carpeted flooring, coving, TV aerial socket, ceiling and wall light points, radiator, windows to the front and door to the dining room.
DINING ROOM:
14' 7'' x 12' 0'' (4.433m x 3.652m)
Carpeted flooring, ceiling light point, coving, radiator, windows to side and door to the hallway.
BREAKFAST KITCHEN:
10' 11'' x 12' 1'' (3.327m x 3.675m)
Range of matching wall and base units incorporating cabinets, drawers and work surfaces, inset bowl sink and drainer with mono tap, integrated electric oven and grill, plus 4 ring electric hob with extractor hood, useful under stairs pantry with additional units, tiled flooring, ceiling light point, window and door into the hallway, further door into the utility room.
UTILITY:
6' 7'' x 6' 4'' (1.999m x 1.942m)
Fitted with a wall and base units including cabinets, laminate work surface over with inset bowl sink and drainer with mono tap, space beneath for white goods including washing machine and dryer, tiled flooring, light point, wall mounted boiler, window and door to the side.
OUTSIDE WC:
2' 9'' x 6' 10'' (0.835m x 2.080m)
Suite comprising: low level WC, light point, tiled flooring and UPVC door into the garden.
FIRST FLOOR LANDING:
Carpeted flooring, ceiling light points, doors off to three bedrooms, family shower room and window to the side.
BEDROOM ONE:
14' 7'' x 14' 5'' (4.433m x 4.383m)
A range of built in wardrobes, carpeted flooring, radiator, ceiling light point and windows to the front.
BEDROOM TWO:
10' 8'' x 11' 4'' (3.248m x 3.455m)
Built in wardrobe and cupboard, carpeted flooring, ceiling light point, radiator and window to the side.
BEDROOM THREE:
9' 11'' x 6' 7'' (3.035m x 1.995m)
Carpeted flooring, ceiling light point, radiator and window to the side.
FAMILY SHOWER ROOM:
7' 9'' x 11' 2'' (2.367m x 3.402m)
White suite comprising: large walk in shower cubicle, pedestal wash hand basin, low level W/C, wall tiling, carpeted flooring, ceiling light, radiator, airing cupboard and window to the side.
GARAGE:
18' 5'' x 10' 6'' (5.609m x 3.205m)
Double opening doors to the front.
VIEWING:
Please contact us on if you would like to arrange a viewing appointment for this property or require further information.
DISCLAIMER:
These particulars are set up as a general outline only for the guidance of intending purchasers or lessees, and do not constitute part of an offer or contract. The sellers has given permission for all descriptions, dimensions, references to conditions, tenure, service charges and necessary permissions for use, occupation and other details to be used and we have taken them in good faith whether included or not & whilst we believe them to be correct, any intending purchasers or tenants should not rely on them as representations or fact but must satisfy themselves by inspection or otherwise as to the correctness of each of them and have this certified during the conveyancing by their solicitor. No person in the employment of Lovett&Co has any authority to make or give any representation or warranty whatsoever in relation to this property.
Brochures
Property BrochureFull Details- COUNCIL TAXA payment made to your local authority in order to pay for local services like schools, libraries, and refuse collection. The amount you pay depends on the value of the property.Read more about council Tax in our glossary page.
- Band: B
- PARKINGDetails of how and where vehicles can be parked, and any associated costs.Read more about parking in our glossary page.
- Yes
- GARDENA property has access to an outdoor space, which could be private or shared.
- Yes
- ACCESSIBILITYHow a property has been adapted to meet the needs of vulnerable or disabled individuals.Read more about accessibility in our glossary page.
- Ask agent
Stafford Street, Heath Hayes, Cannock
Add an important place to see how long it'd take to get there from our property listings.
__mins driving to your place
Get an instant, personalised result:
- Show sellers you’re serious
- Secure viewings faster with agents
- No impact on your credit score
Your mortgage
Notes
Staying secure when looking for property
Ensure you're up to date with our latest advice on how to avoid fraud or scams when looking for property online.
Visit our security centre to find out moreDisclaimer - Property reference 12621589. The information displayed about this property comprises a property advertisement. Rightmove.co.uk makes no warranty as to the accuracy or completeness of the advertisement or any linked or associated information, and Rightmove has no control over the content. This property advertisement does not constitute property particulars. The information is provided and maintained by Lovett&Co. Estate Agents, Lichfield. Please contact the selling agent or developer directly to obtain any information which may be available under the terms of The Energy Performance of Buildings (Certificates and Inspections) (England and Wales) Regulations 2007 or the Home Report if in relation to a residential property in Scotland.
*This is the average speed from the provider with the fastest broadband package available at this postcode. The average speed displayed is based on the download speeds of at least 50% of customers at peak time (8pm to 10pm). Fibre/cable services at the postcode are subject to availability and may differ between properties within a postcode. Speeds can be affected by a range of technical and environmental factors. The speed at the property may be lower than that listed above. You can check the estimated speed and confirm availability to a property prior to purchasing on the broadband provider's website. Providers may increase charges. The information is provided and maintained by Decision Technologies Limited. **This is indicative only and based on a 2-person household with multiple devices and simultaneous usage. Broadband performance is affected by multiple factors including number of occupants and devices, simultaneous usage, router range etc. For more information speak to your broadband provider.
Map data ©OpenStreetMap contributors.





