
Commercial property for rent
Neptune Way Medway City Estate, Rochester
Letting details
- Let available date:
- Ask agent
- PROPERTY TYPE
Commercial Property
- SIZE
Ask agent
Key features
- Available now
- Separate office spaces
- Kitchen and toilet areas
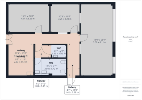
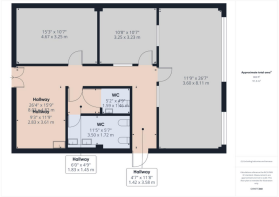
- 983 square foot
Description
Available now, second floor unit conveniently arranged as offices.
Three private rooms means that this is the perfect communal office for a larger team. There is also space for a kitchen unit and communal area. Toilets are included which means that everything you need is in one place.
Rent - £15,000 + VAT per annum, to be paid quarterly in advance
Service charge - £776.54 + VAT per quarter.
Deposit - £3,750
EPC Rating - E
Call our friendly team on to arrange your viewing today!
The office is located in Waterside Court on Medway City Estate. This is the perfect hub for an office as there are a variety of differing businesses on the estate. There are great connections to London as Strood train station being a 30 minute walk or 5 minute drive, with trains reaching St Pancreas International in just 35 minutes. You can also reach the A2 in a matter of minutes giving you a direct route to the M2, central London and the dartford crossing.
Incoming tenants to cover all legal costs.
Brochures
Neptune Way Medway City Estate, RochesterBrochureNeptune Way Medway City Estate, Rochester
NEAREST STATIONS
Distances are straight line measurements from the centre of the postcode- Rochester Station0.6 miles
- Chatham Station0.9 miles
- Strood Station0.9 miles
Notes
Disclaimer - Property reference 33950757. The information displayed about this property comprises a property advertisement. Rightmove.co.uk makes no warranty as to the accuracy or completeness of the advertisement or any linked or associated information, and Rightmove has no control over the content. This property advertisement does not constitute property particulars. The information is provided and maintained by Island Homes, Kent. Please contact the selling agent or developer directly to obtain any information which may be available under the terms of The Energy Performance of Buildings (Certificates and Inspections) (England and Wales) Regulations 2007 or the Home Report if in relation to a residential property in Scotland.
Map data ©OpenStreetMap contributors.






