
St. Leonards Road, Brighton, BN2 3AJ

- PROPERTY TYPE
Flat
- BEDROOMS
3
- BATHROOMS
1
- SIZE
Ask agent
Key features
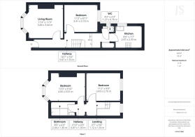
- Ground and First Floor Maisonette
- Three Bedrooms
- Own Entrance
- Share of Freehold
- No Chain
- Living Room
- Separate Kitchen
- Separate WC
- Close to Shops, Cafes and Schools
- Great Central Location
Description
INTERNAL
Upon entering the property through its own private entrance, you're welcomed by a spacious hallway that leads to a bright living room at the front and double bedroom behind. The separate kitchen at the rear of the property is is a good size and offers good storage and worktop space. There is also a separate WC on this floor – a practical addition for busy households or guests. On the first floor you'll find two further good size double bedrooms and the family bathroom.
LOCATION
St. Leonards Road sits just off Lewes Road, a thriving residential and commercial area of Brighton, popular with families, professionals, and students alike. The road itself is mostly residential, yet just a few steps away you’ll find a wide selection of shops, cafes, supermarkets (including a large Sainsbury’s), and independent retailers.
Transport links are superb, with frequent buses to the city centre, seafront, both universities, and the station. Brighton Station and London Road Station are both within walking. Local schools, including highly rated primaries and secondary, are nearby, along with several parks and open spaces such as The Level and Preston Park.
- COUNCIL TAXA payment made to your local authority in order to pay for local services like schools, libraries, and refuse collection. The amount you pay depends on the value of the property.Read more about council Tax in our glossary page.
- Band: B
- PARKINGDetails of how and where vehicles can be parked, and any associated costs.Read more about parking in our glossary page.
- Ask agent
- GARDENA property has access to an outdoor space, which could be private or shared.
- Ask agent
- ACCESSIBILITYHow a property has been adapted to meet the needs of vulnerable or disabled individuals.Read more about accessibility in our glossary page.
- Ask agent
St. Leonards Road, Brighton, BN2 3AJ
Add an important place to see how long it'd take to get there from our property listings.
__mins driving to your place
Explore area BETA
Brighton
Get to know this area with AI-generated guides about local green spaces, transport links, restaurants and more.
Get an instant, personalised result:
- Show sellers you’re serious
- Secure viewings faster with agents
- No impact on your credit score
Your mortgage
Notes
Staying secure when looking for property
Ensure you're up to date with our latest advice on how to avoid fraud or scams when looking for property online.
Visit our security centre to find out moreDisclaimer - Property reference S1382816. The information displayed about this property comprises a property advertisement. Rightmove.co.uk makes no warranty as to the accuracy or completeness of the advertisement or any linked or associated information, and Rightmove has no control over the content. This property advertisement does not constitute property particulars. The information is provided and maintained by Jacobs Steel, Hove. Please contact the selling agent or developer directly to obtain any information which may be available under the terms of The Energy Performance of Buildings (Certificates and Inspections) (England and Wales) Regulations 2007 or the Home Report if in relation to a residential property in Scotland.
*This is the average speed from the provider with the fastest broadband package available at this postcode. The average speed displayed is based on the download speeds of at least 50% of customers at peak time (8pm to 10pm). Fibre/cable services at the postcode are subject to availability and may differ between properties within a postcode. Speeds can be affected by a range of technical and environmental factors. The speed at the property may be lower than that listed above. You can check the estimated speed and confirm availability to a property prior to purchasing on the broadband provider's website. Providers may increase charges. The information is provided and maintained by Decision Technologies Limited. **This is indicative only and based on a 2-person household with multiple devices and simultaneous usage. Broadband performance is affected by multiple factors including number of occupants and devices, simultaneous usage, router range etc. For more information speak to your broadband provider.
Map data ©OpenStreetMap contributors.





