
Old Dairy Close, Fleet

- PROPERTY TYPE
Apartment
- BEDROOMS
2
- BATHROOMS
1
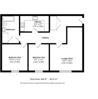
- SIZE
646 sq ft
60 sq m
Key features
- No onward chain
- Two double bedrooms with ample space
- First-floor apartment within a gated development
- Allocated parking space
- Secure telecom entry system for added privacy and convenience
- Bright and spacious lounge/dining room, perfect for entertaining
- Well-equipped kitchen with plenty of storage and workspace
- Long lease, providing peace of mind for future owners
- Communal bike storage and bin store within the development
- Ideal for first-time buyers, investors, or commuters to London
Description
This charming, well-appointed two-bedroom apartment offers a fantastic living space within a gated community in Fleet’s vibrant town centre. Located on the first floor, the property benefits from allocated parking, newly fitted bathroom and new hard flooring throughout.
The apartment is accessed via a secure telecom entry system, ensuring privacy and peace of mind. As you step inside, you'll be greeted by a welcoming hallway leading to all rooms. The generous lounge/dining room is perfect for both relaxing and entertaining, with plenty of natural light streaming through the windows. The kitchen, conveniently located off the lounge, provides ample storage and workspace.
Both double bedrooms offer excellent space, ideal for restful nights, and are serviced by a well-equipped family bathroom. The property also benefits from a long lease, adding further appeal to this highly desirable home.
Within the development, you'll find a communal bike store and bin store, offering added convenience and practicality. The apartment’s location within a gated community and an allocated parking space enhances the security and overall appeal, making it an excellent choice for first-time buyers or investors.
Located within walking distance to Fleet town centre, which offers a range of shops, leisure facilities and local amenities. Fleet railway station and M3 motorway are easily accessible providing excellent commuter routes to London and The South. With its quiet yet central location, this apartment offers the perfect blend of relaxed living in a vibrant town. Whether you're looking to downsize, enjoy a more relaxed lifestyle, or be part of a friendly and secure community, this property is a must-see.
Waterfords are delighted to represent this first floor apartment, and viewings are highly recommended to truly appreciate the opportunity. Book your viewing today!
Disclaimer: This Information has been obtained and provided by the Property Owner
Are you looking to buy a property in Fleet? Then Waterfords Estate Agents are here to help you. As your trusted local estate agent in Surrey and Hampshire since 1995, you can ask us any questions about Fleet and the surrounding area. Feel free to pop into our branch in the Hart Centre to talk to us or call us on . We look forward in assisting you with buying a home in Fleet!
Are you wondering: how much is my house worth in Fleet? Waterfords Estate Agents can provide you with a home valuation based on the latest sales agreed for similar properties as well as valuable insights into buyers based on our extensive database. We take an analytical approach to ensuring that your property is priced correctly and ready to be sold quickly. All our advice is free and without obligation.
Brochures
Old Dairy Close, FleetBrochure- COUNCIL TAXA payment made to your local authority in order to pay for local services like schools, libraries, and refuse collection. The amount you pay depends on the value of the property.Read more about council Tax in our glossary page.
- Band: C
- PARKINGDetails of how and where vehicles can be parked, and any associated costs.Read more about parking in our glossary page.
- Off street
- GARDENA property has access to an outdoor space, which could be private or shared.
- Ask agent
- ACCESSIBILITYHow a property has been adapted to meet the needs of vulnerable or disabled individuals.Read more about accessibility in our glossary page.
- Ask agent
Energy performance certificate - ask agent
Old Dairy Close, Fleet
Add an important place to see how long it'd take to get there from our property listings.
__mins driving to your place
Get an instant, personalised result:
- Show sellers you’re serious
- Secure viewings faster with agents
- No impact on your credit score
Your mortgage
Notes
Staying secure when looking for property
Ensure you're up to date with our latest advice on how to avoid fraud or scams when looking for property online.
Visit our security centre to find out moreDisclaimer - Property reference 34026531. The information displayed about this property comprises a property advertisement. Rightmove.co.uk makes no warranty as to the accuracy or completeness of the advertisement or any linked or associated information, and Rightmove has no control over the content. This property advertisement does not constitute property particulars. The information is provided and maintained by Waterfords, Fleet. Please contact the selling agent or developer directly to obtain any information which may be available under the terms of The Energy Performance of Buildings (Certificates and Inspections) (England and Wales) Regulations 2007 or the Home Report if in relation to a residential property in Scotland.
*This is the average speed from the provider with the fastest broadband package available at this postcode. The average speed displayed is based on the download speeds of at least 50% of customers at peak time (8pm to 10pm). Fibre/cable services at the postcode are subject to availability and may differ between properties within a postcode. Speeds can be affected by a range of technical and environmental factors. The speed at the property may be lower than that listed above. You can check the estimated speed and confirm availability to a property prior to purchasing on the broadband provider's website. Providers may increase charges. The information is provided and maintained by Decision Technologies Limited. **This is indicative only and based on a 2-person household with multiple devices and simultaneous usage. Broadband performance is affected by multiple factors including number of occupants and devices, simultaneous usage, router range etc. For more information speak to your broadband provider.
Map data ©OpenStreetMap contributors.








