
London Road, Westcliff-On-Sea
- PROPERTY TYPE
Land
- SIZE
Ask agent
Key features
- Tucked Away Location
- In Need Of Conversion/Renovation
- Parking and Private Driveway
- Council Tax Exempt
- No EPC Available
- Scope For Further Planning ( Subject to approval)
- Excellent Potential Office For Local Business's
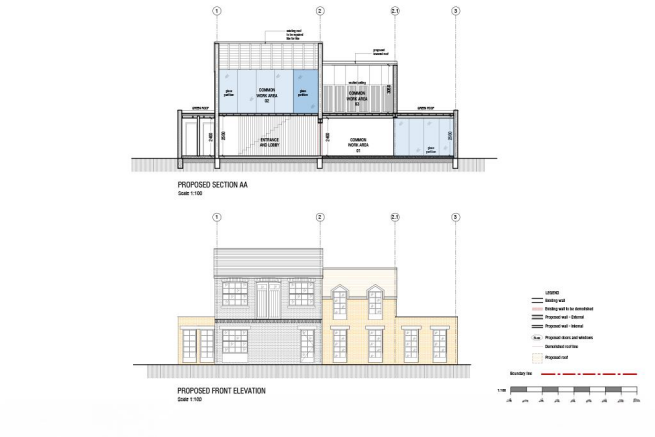
- Full Plans Passed 24/01323/FUL
- Viewing By Appointment Only
- Previously an Engineering Workshop
Description
The site is ideally situated, providing easy access to a range of local amenities, ensuring convenience for both clients and employees. With a private drive and dedicated parking, this property is well-equipped to support a growing business's needs.
While the workshop may require some tender loving care, its inherent potential is undeniable. This is a fantastic chance for investors or entrepreneurs to transform the space into a vibrant hub for their operations. The location on London Road is not only prominent but also benefits from good foot traffic, making it an attractive proposition for various business ventures.
In summary, this development site in Westcliff-On-Sea presents a unique opportunity for those with vision and ambition. With the right investment and creativity, this property could become a cornerstone for a successful business. We invite you to explore the possibilities that await at this prime location.
* Open Day Saturday The 19th Between 12pm and 3pm. Appointment Only *
Planning Details - 24/01323/FUL Convert vacant building to offices, erect part single and part two-storey side extensions, layout parking, bin storage and cycle parking
Utilities - The vendors have informed us the adjacent properties both benefit from power and water and gas. All interested parties are advised to make their own enquiries.
Situation - The site occupies a prominent location in the Southend City, Essex, ideal for growing business's. The site is offered on a vacant possession, with planning permission approved.
Tenure & Gdv - The Property is held as FREEHOLD.
For comparable evidence, please enquire within.
Location - Situated directly opposite the beautiful Chalkwell Park, this prime London Road location in Westcliff-on-Sea offers excellent access to green space, seafront leisure, and vibrant local amenities. Just a short walk from Chalkwell station (c2c line to London Fenchurch Street), the property is ideally placed with bus routes and Westcliff station also nearby. The area boasts a variety of cafés, restaurants, shops, and supermarkets, alongside reputable schools, healthcare facilities, and the beach all within easy reach—making it a perfect blend of convenience, community, and coastal benefits.
Plot Size - Acres:
0.0748
Due Diligence - Every care has been taken to ensure the accuracy of these details, however, they do not form part of any offer or contract and should not be relied upon as statements of fact. Measurement, descriptions and other information are provided in good faith and for guidance only. Prospective purchasers should verify all details independently. We have not tested any services, appliances or systems at the property.
Tenure - Freehold
EPC - Unavailable
Brochures
London Road, Westcliff-On-SeaBrochureLondon Road, Westcliff-On-Sea
NEAREST STATIONS
Distances are straight line measurements from the centre of the postcode- Chalkwell Station0.5 miles
- Westcliff Station0.9 miles
- Southend Victoria Station1.5 miles
Notes
Disclaimer - Property reference 34026687. The information displayed about this property comprises a property advertisement. Rightmove.co.uk makes no warranty as to the accuracy or completeness of the advertisement or any linked or associated information, and Rightmove has no control over the content. This property advertisement does not constitute property particulars. The information is provided and maintained by Bear Estate Agents, Hockley. Please contact the selling agent or developer directly to obtain any information which may be available under the terms of The Energy Performance of Buildings (Certificates and Inspections) (England and Wales) Regulations 2007 or the Home Report if in relation to a residential property in Scotland.
Map data ©OpenStreetMap contributors.





