
Land for sale
Edinburgh Road, Harthill
- PROPERTY TYPE
Land
- SIZE
Ask agent
Key features
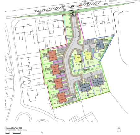
- 2 Acre Development Site
- Planning Permission for 16 Villas
- 14 x Semi Detached villas
- 2 x Detached Villas
- Site Reports & Assessments Available on Planning Portal
Description
The site extends to circa 2.03 acres (0.82 Ha) and sits back from Edinburgh Road in a cul-de-sac with a design forming 14 x semi detached villas and 2 detached villas. Site reports and assessments have been carried out and are available on the planning portal for interested parties perusal (link attached below). The proposed house details are as follows -
House type A - Semi detached villa - 124 sqm (1334 sq ft)
House type B - Semi detached villa - 105 sqm (1130sq ft)
House type C - Detached villa - 167 sqm (1804 sq ft)
The village of Harthill is located just off the M8 motorway between Glasgow and Edinburgh with excellent road and rail links to both cities and the surrounding towns. There’s local shops, schools, parks and the historic Polkemmet Country Park is nearby which offers walking trails, a golf driving range, bowling green and play areas.
A great development site located in the small village of Eastfield, which has planning permission granted for a mix of 16 semi detached and detached villas.
Brochures
Edinburgh Road, HarthillBrochureEdinburgh Road, Harthill
NEAREST STATIONS
Distances are straight line measurements from the centre of the postcode- Blackridge Station1.8 miles
- Shotts Station3.1 miles
- Fauldhouse Station3.1 miles
Notes
Disclaimer - Property reference 34027216. The information displayed about this property comprises a property advertisement. Rightmove.co.uk makes no warranty as to the accuracy or completeness of the advertisement or any linked or associated information, and Rightmove has no control over the content. This property advertisement does not constitute property particulars. The information is provided and maintained by Residence Estate Agents, Uddingston. Please contact the selling agent or developer directly to obtain any information which may be available under the terms of The Energy Performance of Buildings (Certificates and Inspections) (England and Wales) Regulations 2007 or the Home Report if in relation to a residential property in Scotland.
Map data ©OpenStreetMap contributors.





