High street retail property to lease
Unit 5, Riverside Stand Alone Unit - Brunel Drive, Bishop's Stortford, Hertfordshire, CM23
- SIZE AVAILABLE
771 sq ft
72 sq m
- SECTOR
High street retail property to lease
- USE CLASSUse class orders: Class E
E
Lease details
- Lease available date:
- Ask agent
Key features
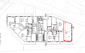
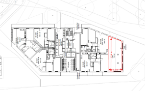
- Ground floor unit within The Goods Yard mixed use development
- c771 sqft Unit
- Located on the main pedestrian thoroughfare providing access to the train station
- Ample pay and display parking available
- Large glazed frontage
- Available immediately
- Shell and core finish
- Finished floor to ceiling height c.3.35m
- EPC Rating - A
- Riverside Views
Description
This c.771, self-contained, ground floor retail unit forms part of the Goods Yard. It is located on the banks of the River Stort within 30m of the pedestrian access bridge providing one of the main routes to the station for commuters requiring the train station.
The tenants will be expected to add amenity facilities, and insert any wall and ceiling finishes, prior to fit out. There is no rear access servicing point into the unit. In the interest of good estate management the landlord will not be entertaining another convenience grocery store.
ACCOMMODATION A full measured survey of unit footprint is awaited. However preliminary measurements indicate a NIA of approximately 771 ft². The unit has an average depth of c5.4metres (17' 6") and a frontage (width) of c13.4 metres (44 ft). The current FFL to underside of the insulated ceiling is c3.35 metres (10'10" ft).
RATEABLE VALUE The shop has not yet been assessed. Notification of the Rateable Value is awaited. The unit falls within the East Hertfordshire District area. The business rates charge out level for 2022/23 is 51.2p in the £. All available units at Energy Rating A.
SERVICES All the main services (except for Gas) are available to the unit with capped connection points.
PERMITTED USES The unit has the benefit of a range of permitted uses within the current E class of the UCOs, including A1, A3, B1(c) and D1 (under the former use classes order). Due to the absence of chimneys and flues, the landlord will not allow any takeaways or facilities cooking food onsite.
PROPOSED LEASE TERMS Our client is seeking institutionally acceptable FRI lease terms with a minimum term certain of 10 years, 5 yearly rent reviews (based on compounded RPI annual 1%-4% collar and cap uplifts). The unit is not available to purchase. Rental proposals are invited.
LEGAL COSTS
Each party shall be responsible for all their own costs arising from the proposed transaction.
SERVICE CHARGE
The unit forms part of a larger development, benefitting from well landscaped (hard & soft) public realm. The unit(s) will be charged a fair and reasonable service charge, for the upkeep, maintenance and oversight of the Common Area.
ADDITIONAL INFORMATION
A summary report specification, a measured survey, a copy
of the planning consent, and services reports are available on
request.
MARK LIELL LLP DISCLAIMER 2025
Mark Liell & Son LLP for themselves and for the vendors of this property whose agents they are given notice that 1. The particulars as set out are a general outline only for the guidance of
intending purchasers and do not constitute, nor constitute part of, an offer or contract; 2. All descriptions, dimensions, reference to condition and necessary permission for use and occupation,
and other details are given in good faith and are believed to be correct but any intending purchasers should not rely upon them as statements or representations of fact and must satisfy
themselves or otherwise as to the correctness of each of them; 3. No person in the employment of Mark Liell has any authority to make or give any representation or warranty whatever in
relation to this property; 4. Unless otherwise stated all prices and rents are quoted exclusive of Value Added Tax (VAT). Any intending purchasers must satisfy themselves independently as
to the incidence of VAT in respect of any transaction; 5. The reference to any plant, machinery, equipment, services, fixtures or fittings at the property shall not constitute a representation
(unless otherwise stated) as to its state or condition or that it is capable of fulfilling its intended function. Prospective purchasers must satisfy themselves as to the fitness of such items for their requirements; 6. The vendor is not obliged to accept the highest or any other offer received for the property. Anti Money Laundering Legislation The Money Laundering Regulations include Commercial Estate Agency work and require us to have anti money laundering procedures in place. Interested parties may be required to provide proof of identity and address.
Note: These particulars are for guidance only and are not necessarily comprehensive. Purchasers should satisfy themselves on all matters prior to purchase by inspection or otherwise. In the interests of Health and Safety, parties should take due care when inspecting the property and enter the site at their own risk.
Energy Performance Certificates
Unit B3 EPCBrochures
Unit 5, Riverside Stand Alone Unit - Brunel Drive, Bishop's Stortford, Hertfordshire, CM23
NEAREST STATIONS
Distances are straight line measurements from the centre of the postcode- Bishop's Stortford Station0.1 miles
- Stansted Mountfitchet Station2.9 miles
- Sawbridgeworth Station3.6 miles
Notes
Disclaimer - Property reference BSGY771. The information displayed about this property comprises a property advertisement. Rightmove.co.uk makes no warranty as to the accuracy or completeness of the advertisement or any linked or associated information, and Rightmove has no control over the content. This property advertisement does not constitute property particulars. The information is provided and maintained by Mark Liell Property Consultants, Essex. Please contact the selling agent or developer directly to obtain any information which may be available under the terms of The Energy Performance of Buildings (Certificates and Inspections) (England and Wales) Regulations 2007 or the Home Report if in relation to a residential property in Scotland.
Map data ©OpenStreetMap contributors.





