
Edenholme, College Road, Gildersome, Leeds

- PROPERTY TYPE
Semi-Detached
- BEDROOMS
3
- BATHROOMS
1
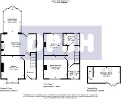
- SIZE
969 sq ft
90 sq m
- TENUREDescribes how you own a property. There are different types of tenure - freehold, leasehold, and commonhold.Read more about tenure in our glossary page.
Freehold
Key features
- **Please See Virtual Tour**
- Beautifully presented family home
- Large Multi Functional Outbuilding
- 3 Well-proportioned Bedrooms
- Fabulous Dining Kitchen
- Conservatory
- Sought after location
- Nearby access to Commuter links
- Great Local Primary and Secondary Schools
Description
GROUND FLOOR
Step inside and you're welcomed into a beautifully kept home with warmth and character throughout. The spacious living room at the front is flooded with natural light and features solid wood flooring and a stylish central fireplace - the perfect place to relax after a long day.
To the rear, the open-plan kitchen diner delivers everything a modern home needs, with plenty of cupboard space, stylish worktops, and room for a large dining table. Whether you're hosting guests or enjoying family mealtimes, this space delivers on functionality and flow.
Opening out from the kitchen, the conservatory offers a flexible second living space - ideal for lounging, working, or simply enjoying the view over the garden, thanks to its bright, airy feel and power connections for tech and media.
FIRST FLOOR
Upstairs are three well-presented bedrooms.
The main bedroom is a generous double with peaceful views over the rear garden.
Bedroom two, also a double, sits at the front of the home, with bedroom three making a great single room, nursery or dedicated home office.
The family bathroom is beautifully finished with modern tiling, a floating vanity, and a three-piece suite that includes a sleek bathtub and overhead shower - stylish and practical in equal measure.
OUTSIDE
The rear garden is an absolute standout - a beautifully kept space that's ideal for families, social gatherings, or simply enjoying the outdoors. With a large patio area and an expansive lawn, this is a garden that truly delivers on lifestyle.
To the side, a detached double-length garage has been cleverly split - the front half remains a useful garage/storage space, while the rear has been converted into a fully functioning gym/office/playroom, complete with W.C. and wash basin.
There's also a neat front garden and off-road parking via the private driveway, offering practicality and kerb appeal in equal measure.
EXPLORE MORE
Located in the heart of Gildersome, with excellent access to schools, shops, and commuter routes - this is a fantastic opportunity to secure a home that offers space, flexibility, and modern family living inside and out.
A full virtual tour is available - contact us today to book your exclusive viewing.
Council Tax Band: C
Tenure: Freehold
Brochures
Brochure- COUNCIL TAXA payment made to your local authority in order to pay for local services like schools, libraries, and refuse collection. The amount you pay depends on the value of the property.Read more about council Tax in our glossary page.
- Band: C
- PARKINGDetails of how and where vehicles can be parked, and any associated costs.Read more about parking in our glossary page.
- Garage,On street,Driveway,Off street
- GARDENA property has access to an outdoor space, which could be private or shared.
- Front garden,Private garden,Enclosed garden,Rear garden
- ACCESSIBILITYHow a property has been adapted to meet the needs of vulnerable or disabled individuals.Read more about accessibility in our glossary page.
- Ask agent
Edenholme, College Road, Gildersome, Leeds
Add an important place to see how long it'd take to get there from our property listings.
__mins driving to your place
Get an instant, personalised result:
- Show sellers you’re serious
- Secure viewings faster with agents
- No impact on your credit score
Your mortgage
Notes
Staying secure when looking for property
Ensure you're up to date with our latest advice on how to avoid fraud or scams when looking for property online.
Visit our security centre to find out moreDisclaimer - Property reference RS3812. The information displayed about this property comprises a property advertisement. Rightmove.co.uk makes no warranty as to the accuracy or completeness of the advertisement or any linked or associated information, and Rightmove has no control over the content. This property advertisement does not constitute property particulars. The information is provided and maintained by DPSH, Morley. Please contact the selling agent or developer directly to obtain any information which may be available under the terms of The Energy Performance of Buildings (Certificates and Inspections) (England and Wales) Regulations 2007 or the Home Report if in relation to a residential property in Scotland.
*This is the average speed from the provider with the fastest broadband package available at this postcode. The average speed displayed is based on the download speeds of at least 50% of customers at peak time (8pm to 10pm). Fibre/cable services at the postcode are subject to availability and may differ between properties within a postcode. Speeds can be affected by a range of technical and environmental factors. The speed at the property may be lower than that listed above. You can check the estimated speed and confirm availability to a property prior to purchasing on the broadband provider's website. Providers may increase charges. The information is provided and maintained by Decision Technologies Limited. **This is indicative only and based on a 2-person household with multiple devices and simultaneous usage. Broadband performance is affected by multiple factors including number of occupants and devices, simultaneous usage, router range etc. For more information speak to your broadband provider.
Map data ©OpenStreetMap contributors.