
Coombe Lane, Naphill, HP14

- PROPERTY TYPE
Detached
- BEDROOMS
5
- BATHROOMS
4
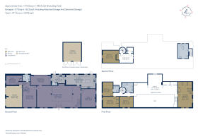
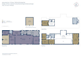
- SIZE
5,076 sq ft
472 sq m
- TENUREDescribes how you own a property. There are different types of tenure - freehold, leasehold, and commonhold.Read more about tenure in our glossary page.
Freehold
Key features
- Reception
- Kitchen/Breakfast Room
- Family Room
- Dining Room
- Snug
- Study/Bedroom 6
- Utility Room
- Galleried Landing with Library
- Principal Bedroom with En Suite Bathroom
- Bedroom with En Suite Shower Room
Description
Outside
Approached via a shared driveway and gravel parking area, the property has a detached double garage and an integral double garage. Access to the Barn is provided on both sides; the reception room on one side and through the kitchen and utility room on the other. To the rear, gardens, largely laid to lawn, are enclosed by post and rail fencing and mature hedging. There is a fire pit and seating area with dry stone walls and offering the perfect vantage point to enjoy the glorious views. The swimming pool is located in a discreet spot to the side of the garden. An L-shaped paddock borders the rear and side of the garden; it has a gate for vehicular access from the lane as well as a pedestrian gate to the gardens. Woodland and open countryside border the property, adding to the stunning landscape.
Situation
Naphill village offers a variety of small shops providing for day-to-day needs with greater shopping facilities found at Princes Risborough (approx. 6 miles) and High Wycombe (approx. 2 miles). Both have mainline railway access to London Marylebone. Junction 4 of the M40 is 4.4 miles distant. Buckinghamshire is renowned for its state and private education, details of which can be obtained from the local authority.
Property Ref Number:
HAM-42394Brochures
Brochure- COUNCIL TAXA payment made to your local authority in order to pay for local services like schools, libraries, and refuse collection. The amount you pay depends on the value of the property.Read more about council Tax in our glossary page.
- Band: G
- PARKINGDetails of how and where vehicles can be parked, and any associated costs.Read more about parking in our glossary page.
- Off street
- GARDENA property has access to an outdoor space, which could be private or shared.
- Private garden
- ACCESSIBILITYHow a property has been adapted to meet the needs of vulnerable or disabled individuals.Read more about accessibility in our glossary page.
- Ask agent
Energy performance certificate - ask agent
Coombe Lane, Naphill, HP14
Add an important place to see how long it'd take to get there from our property listings.
__mins driving to your place
Get an instant, personalised result:
- Show sellers you’re serious
- Secure viewings faster with agents
- No impact on your credit score
Your mortgage
Notes
Staying secure when looking for property
Ensure you're up to date with our latest advice on how to avoid fraud or scams when looking for property online.
Visit our security centre to find out moreDisclaimer - Property reference a1n8d000000i4HKAAY. The information displayed about this property comprises a property advertisement. Rightmove.co.uk makes no warranty as to the accuracy or completeness of the advertisement or any linked or associated information, and Rightmove has no control over the content. This property advertisement does not constitute property particulars. The information is provided and maintained by Hamptons, Great Missenden. Please contact the selling agent or developer directly to obtain any information which may be available under the terms of The Energy Performance of Buildings (Certificates and Inspections) (England and Wales) Regulations 2007 or the Home Report if in relation to a residential property in Scotland.
*This is the average speed from the provider with the fastest broadband package available at this postcode. The average speed displayed is based on the download speeds of at least 50% of customers at peak time (8pm to 10pm). Fibre/cable services at the postcode are subject to availability and may differ between properties within a postcode. Speeds can be affected by a range of technical and environmental factors. The speed at the property may be lower than that listed above. You can check the estimated speed and confirm availability to a property prior to purchasing on the broadband provider's website. Providers may increase charges. The information is provided and maintained by Decision Technologies Limited. **This is indicative only and based on a 2-person household with multiple devices and simultaneous usage. Broadband performance is affected by multiple factors including number of occupants and devices, simultaneous usage, router range etc. For more information speak to your broadband provider.
Map data ©OpenStreetMap contributors.








