2 bedroom mobile home for sale
Ilfracombe

- PROPERTY TYPE
Mobile Home
- BEDROOMS
2
- BATHROOMS
2
- SIZE
Ask agent
Key features
- Immaculately presented two bedroom park home
- Situated on Mullacot Park
- Short drive to Woolacombe & Ilfracombe
- close proximity to local travel routes
- Perfect holiday home or investment property
- Off-road parking for several vehicles
- Open plan living
- 99 year lease
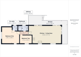
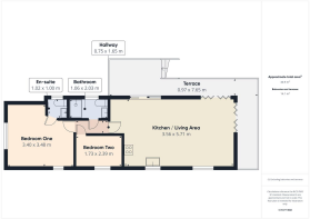
Description
The Property - Located in the popular Mullacott Park, perfectly placed between Ilfracombe and Woolacombe, this immaculately presented park home offers modern and stylish living in a peaceful setting. Finished to a high standard throughout, the property features a bright and spacious open-plan living area with a contemporary fitted kitchen, complete with integrated appliances. The accommodation includes a generous double bedroom with a two-piece en-suite, a comfortable twin bedroom and a sleek three-piece shower room. Outside, the home benefits from wrap-around composite decking ideal for outdoor dining and relaxation, a private driveway with parking for multiple vehicles, and a practical storage shed.
Whether you're looking for a holiday retreat or an investment opportunity for a low-maintenance permanent home, this superbly located park home offers a perfect blend of comfort, convenience, and coastal charm.
Location - Ilfracombe offers a vibrant mix of independent shops, art galleries, restaurants, and bars, with its picturesque seafront and harbour home to Damien Hirst’s iconic ‘Verity’ statue. The recently developed water sports centre and café have added new energy to the harbour, making it a lively hub for visitors and locals alike.
North Devon is renowned for its stunning golden beaches and world-class surf, recently earning designation as a ‘World Surfing Reserve’—one of only 12 globally, alongside Australia’s Gold Coast and California’s Malibu. Nearby Woolacombe remains a favourite for surfers, hikers, and holidaymakers, known for its breathtaking sunsets and welcoming vibe. The area’s close proximity to Croyde, Braunton, and Ilfracombe makes it ideal for those seeking a well-rounded coastal lifestyle.
Agent Notes - -The site fees for this home is £5200 annually that also includes maintenance charges, services charges and water rates
-Electric and gas are paid quarterly throughout the year
- 99 year lease which renews once purchased
Directions - From our office head South West on along the high street. At the round about take the first exist onto Church Street. Continue along this road until you reach Mullacott round about. Take the for the forth exist and turn left onto Mullacott Park. turn right towards meadow view and take the first left onto Ocean terrace where you'll find the property on your left hand side.
Brochures
Ilfracombe- COUNCIL TAXA payment made to your local authority in order to pay for local services like schools, libraries, and refuse collection. The amount you pay depends on the value of the property.Read more about council Tax in our glossary page.
- Exempt
- PARKINGDetails of how and where vehicles can be parked, and any associated costs.Read more about parking in our glossary page.
- Yes
- GARDENA property has access to an outdoor space, which could be private or shared.
- Ask agent
- ACCESSIBILITYHow a property has been adapted to meet the needs of vulnerable or disabled individuals.Read more about accessibility in our glossary page.
- Ask agent
Energy performance certificate - ask agent
Ilfracombe
Add an important place to see how long it'd take to get there from our property listings.
__mins driving to your place
Notes
Staying secure when looking for property
Ensure you're up to date with our latest advice on how to avoid fraud or scams when looking for property online.
Visit our security centre to find out moreDisclaimer - Property reference 34072643. The information displayed about this property comprises a property advertisement. Rightmove.co.uk makes no warranty as to the accuracy or completeness of the advertisement or any linked or associated information, and Rightmove has no control over the content. This property advertisement does not constitute property particulars. The information is provided and maintained by Turners, Ilfracombe. Please contact the selling agent or developer directly to obtain any information which may be available under the terms of The Energy Performance of Buildings (Certificates and Inspections) (England and Wales) Regulations 2007 or the Home Report if in relation to a residential property in Scotland.
*This is the average speed from the provider with the fastest broadband package available at this postcode. The average speed displayed is based on the download speeds of at least 50% of customers at peak time (8pm to 10pm). Fibre/cable services at the postcode are subject to availability and may differ between properties within a postcode. Speeds can be affected by a range of technical and environmental factors. The speed at the property may be lower than that listed above. You can check the estimated speed and confirm availability to a property prior to purchasing on the broadband provider's website. Providers may increase charges. The information is provided and maintained by Decision Technologies Limited. **This is indicative only and based on a 2-person household with multiple devices and simultaneous usage. Broadband performance is affected by multiple factors including number of occupants and devices, simultaneous usage, router range etc. For more information speak to your broadband provider.
Map data ©OpenStreetMap contributors.






