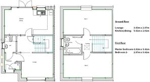
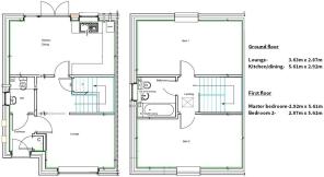
2 bedroom semi-detached house for sale
Plot 9 The Paisley, Lowans Court, Off Cookridge Close, Redditch, Worcestershire, B97

- PROPERTY TYPE
Semi-Detached
- BEDROOMS
2
- BATHROOMS
1
- SIZE
Ask agent
- TENUREDescribes how you own a property. There are different types of tenure - freehold, leasehold, and commonhold.Read more about tenure in our glossary page.
Ask agent
Key features
- Integrated dishwasher
- Integrated fridge/freezer
- Integrated single oven
- Vinyl to wet areas
- Hob and Extractor
- Turf to rear garden
- 1.8m fencing to rear
- Glass splashback to hob
- Brushed Chrome switches and sockets
- Brushed Chrome ironmongery
Description
Expected build completion March 2026
These brand new homes at Lowans Court are built to a high specification within a cul de sac of 17 private homes, located in the Batchley/Brockhill area of Redditch, with the town centre just over 1 mile away. You will find a small convenience store near the development with larger high street stores, restaurants, leisure and recreational facilities in and around the Town Centre.
There are a number of schools nearby with a good standard of education including, Moons Moat Primary, Arrow Valley Primary and Ipsley C of E Juionr School, further education can be found at Heart of Worcesterhire College.
The local bus service runs every 20 minutes into Redditch, where you will find the train station with routes to Alvechurch, Barnt Green and Birmingham City Centre. Redditch is ideally located with good commuter to links to the M42 and M5 motorways.
*Please note* All houses are of Timber Frame Construction
- COUNCIL TAXA payment made to your local authority in order to pay for local services like schools, libraries, and refuse collection. The amount you pay depends on the value of the property.Read more about council Tax in our glossary page.
- Band: TBC
- PARKINGDetails of how and where vehicles can be parked, and any associated costs.Read more about parking in our glossary page.
- Off street
- GARDENA property has access to an outdoor space, which could be private or shared.
- Yes
- ACCESSIBILITYHow a property has been adapted to meet the needs of vulnerable or disabled individuals.Read more about accessibility in our glossary page.
- Ask agent
Energy performance certificate - ask agent
Plot 9 The Paisley, Lowans Court, Off Cookridge Close, Redditch, Worcestershire, B97
Add an important place to see how long it'd take to get there from our property listings.
__mins driving to your place
Get an instant, personalised result:
- Show sellers you’re serious
- Secure viewings faster with agents
- No impact on your credit score

Your mortgage
Notes
Staying secure when looking for property
Ensure you're up to date with our latest advice on how to avoid fraud or scams when looking for property online.
Visit our security centre to find out moreDisclaimer - Property reference CTY250573. The information displayed about this property comprises a property advertisement. Rightmove.co.uk makes no warranty as to the accuracy or completeness of the advertisement or any linked or associated information, and Rightmove has no control over the content. This property advertisement does not constitute property particulars. The information is provided and maintained by John Payne Estate Agents New Homes and Land, West Midlands. Please contact the selling agent or developer directly to obtain any information which may be available under the terms of The Energy Performance of Buildings (Certificates and Inspections) (England and Wales) Regulations 2007 or the Home Report if in relation to a residential property in Scotland.
*This is the average speed from the provider with the fastest broadband package available at this postcode. The average speed displayed is based on the download speeds of at least 50% of customers at peak time (8pm to 10pm). Fibre/cable services at the postcode are subject to availability and may differ between properties within a postcode. Speeds can be affected by a range of technical and environmental factors. The speed at the property may be lower than that listed above. You can check the estimated speed and confirm availability to a property prior to purchasing on the broadband provider's website. Providers may increase charges. The information is provided and maintained by Decision Technologies Limited. **This is indicative only and based on a 2-person household with multiple devices and simultaneous usage. Broadband performance is affected by multiple factors including number of occupants and devices, simultaneous usage, router range etc. For more information speak to your broadband provider.
Map data ©OpenStreetMap contributors.




