
2 bedroom duplex for sale
Dumbarton Road, Glasgow

- PROPERTY TYPE
Duplex
- BEDROOMS
2
- BATHROOMS
1
- SIZE
926 sq ft
86 sq m
- TENUREDescribes how you own a property. There are different types of tenure - freehold, leasehold, and commonhold.Read more about tenure in our glossary page.
Freehold
Key features
- Top-floor duplex apartment
- Within an exclusive and sought-after development by Cruden Homes
- Set within one of the most sought-after residential districts in the West End
- Lounge with a large Juliet style double door formation
- Two bedrooms both with built-in storage
- Family bathroom
- Gas Central Heating
- Double Glazing
- Residents Parking
- Council Tax Band D
Description
An immediately impressive modern, top-floor duplex apartment within an exclusive and sought-after development by Cruden Homes, built circa 2007 in true walk-in condition.
Property Description - Dumbarton Road is an attractive apartment block set within one of the most sought-after residential districts in the West End of Glasgow. Within walking distance of Byres Road and Kelvin Hall underground stations and Glasgow University's primary campus, this location offers true convenience that will appeal to a broad spectrum of purchasers. From downsizers in search of an apartment with ample local amenities to young professionals who wish to take full advantage of life in the West End. Dumbarton Road is surrounded by a broad variety of amenities and benefits from an extremely central location.
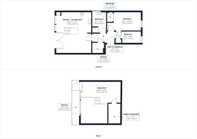
The accommodation is set over two levels, is accessed via the secure entry to the common close area. This extends to the common stairway leading to the door entrance of this great flat.
Through the main door, you are welcomed into the bright and airy entrance hallway with a large storage cupboard. To the rear of the property is the lounge with a large Juliet style double door formation giving lots of natural light with its southern open outlook. Open to the lounge is the fitted dining kitchen with floor and wall-mounted units and contrasting worktops. There are two bedrooms to the front of the property, both with built-in storage. Finishing this level is the family bathroom with a four-piece suite, giving the option of a bath or walk-in shower.
Taking the stairs from the lounge to the mezzanine, you would find space that could be utilised either for a work-from-home office or a master bedroom with a large storage cupboard. This cupboard could easily be transformed into an en-suite. From the mezzanine, there is access to the private balcony with skyline views over the city.
The property further benefits from Gas Central Heating, Double Glazing, and hardwood flooring from the lounge/kitchen through into the hall. There is also access to a communal rear terrace with a private carpark.
Dumbarton Road is well placed for a wide selection of shops and amenities on Dumbarton Road itself and Byres Road. There is a wide selection of bars, restaurants, cafes, and delicatessens, including the Duck club and Celinos. There are various supermarkets on Byres Road, including Waitrose. The famous Ashton Lane, just off Byres Road, offers a variety of bars, restaurants, and the Grosvenor Cinema. At the top of Byres Road are the Botanic Gardens, offering a beautiful green space in the city and greenhouses full of tropical plants.
Whilst we endeavour to provide as accurate information as possible, our particulars are for reference only and should not form part of any contract or offer. Measurements are taken at the widest points, and our floor plans may not be exactly to scale.
Brochures
Dumbarton Road, GlasgowBrochure- COUNCIL TAXA payment made to your local authority in order to pay for local services like schools, libraries, and refuse collection. The amount you pay depends on the value of the property.Read more about council Tax in our glossary page.
- Band: D
- PARKINGDetails of how and where vehicles can be parked, and any associated costs.Read more about parking in our glossary page.
- Residents
- GARDENA property has access to an outdoor space, which could be private or shared.
- Yes
- ACCESSIBILITYHow a property has been adapted to meet the needs of vulnerable or disabled individuals.Read more about accessibility in our glossary page.
- Lateral living
Dumbarton Road, Glasgow
Add an important place to see how long it'd take to get there from our property listings.
__mins driving to your place
Get an instant, personalised result:
- Show sellers you’re serious
- Secure viewings faster with agents
- No impact on your credit score
Your mortgage
Notes
Staying secure when looking for property
Ensure you're up to date with our latest advice on how to avoid fraud or scams when looking for property online.
Visit our security centre to find out moreDisclaimer - Property reference 34172839. The information displayed about this property comprises a property advertisement. Rightmove.co.uk makes no warranty as to the accuracy or completeness of the advertisement or any linked or associated information, and Rightmove has no control over the content. This property advertisement does not constitute property particulars. The information is provided and maintained by Moving Estate Agents, Glasgow. Please contact the selling agent or developer directly to obtain any information which may be available under the terms of The Energy Performance of Buildings (Certificates and Inspections) (England and Wales) Regulations 2007 or the Home Report if in relation to a residential property in Scotland.
*This is the average speed from the provider with the fastest broadband package available at this postcode. The average speed displayed is based on the download speeds of at least 50% of customers at peak time (8pm to 10pm). Fibre/cable services at the postcode are subject to availability and may differ between properties within a postcode. Speeds can be affected by a range of technical and environmental factors. The speed at the property may be lower than that listed above. You can check the estimated speed and confirm availability to a property prior to purchasing on the broadband provider's website. Providers may increase charges. The information is provided and maintained by Decision Technologies Limited. **This is indicative only and based on a 2-person household with multiple devices and simultaneous usage. Broadband performance is affected by multiple factors including number of occupants and devices, simultaneous usage, router range etc. For more information speak to your broadband provider.
Map data ©OpenStreetMap contributors.





