
Johnson New Road, Hoddlesden, BB3 3NN

- PROPERTY TYPE
Apartment
- BEDROOMS
1
- BATHROOMS
3
- SIZE
Ask developer
- TENUREDescribes how you own a property. There are different types of tenure - freehold, leasehold, and commonhold.Read more about tenure in our glossary page.
Freehold
Key features
- New release!
- 2 bedroom ground floor apartment
- Excellent open-plan kitchen/diner/living area
- Two double bedrooms
- Master bedroom with en-suite
- Separate bathroom
- 10 year NHBC warranty
- Stunning location with reservoir and countryside views
- Close to major commuting routes - 39 mins to Manc. Victoria from Darwen Train Station
- Local amenities within walking distance
Description
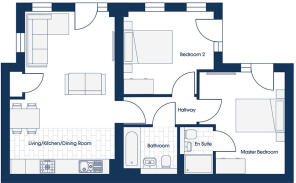
A welcoming hallway leads to an open-plan Living/Kitchen/Dining Room. This central space combines a high specification kitchen with a comfortable living area and dining space, creating an inviting atmosphere for relaxation and entertaining.
The apartment features two bedrooms: a generous Master Bedroom with a private En-Suite Bathroom, and a versatile second Bedroom, perfect as a guest room, children's room, or home office.
For added convenience, a separate Bathroom off the hallway serves guests and Bedroom 2 occupants.
Call our sales consultant from Thursday- Monday 10am-5pm.
- COUNCIL TAXA payment made to your local authority in order to pay for local services like schools, libraries, and refuse collection. The amount you pay depends on the value of the property.Read more about council Tax in our glossary page.
- Ask developer
- PARKINGDetails of how and where vehicles can be parked, and any associated costs.Read more about parking in our glossary page.
- Allocated
- GARDENA property has access to an outdoor space, which could be private or shared.
- Ask developer
- ACCESSIBILITYHow a property has been adapted to meet the needs of vulnerable or disabled individuals.Read more about accessibility in our glossary page.
- Level access
Energy performance certificate - ask developer
- 3, 4 & 5 bed homes
- A selection of excellent farmstead inspired homes
- Flexible floor plans to create a home just for you
- Register your interest to receive updates
Johnson New Road, Hoddlesden, BB3 3NN
Add an important place to see how long it'd take to get there from our property listings.
__mins driving to your place
Get an instant, personalised result:
- Show sellers you’re serious
- Secure viewings faster with agents
- No impact on your credit score
About Kingswood Homes
Kingswood Homes (UK) Ltd was established in 2009 with a view to developing small residential projects throughout the North West of England. The company, which is privately owned, was started by Paul Jones and Stephen Heaton with the help of a private investor Alastair Salt, all of whom felt there was a gap in the market for a high quality residential developer helping to regenerate local towns by providing much needed housing.
Kingswood Homes (UK) Ltd has continued to grow and has now been constructing high quality family homes in great locations throughout the North West of England over the past eight years.
The success of Kingswood Homes has been recognised with a Best Business award in 2014 for the best small – medium sized business in the Building and Construction category.
Your mortgage
Notes
Staying secure when looking for property
Ensure you're up to date with our latest advice on how to avoid fraud or scams when looking for property online.
Visit our security centre to find out moreDisclaimer - Property reference APART2PLOT44-SEPT25. The information displayed about this property comprises a property advertisement. Rightmove.co.uk makes no warranty as to the accuracy or completeness of the advertisement or any linked or associated information, and Rightmove has no control over the content. This property advertisement does not constitute property particulars. The information is provided and maintained by Kingswood Homes. Please contact the selling agent or developer directly to obtain any information which may be available under the terms of The Energy Performance of Buildings (Certificates and Inspections) (England and Wales) Regulations 2007 or the Home Report if in relation to a residential property in Scotland.
*This is the average speed from the provider with the fastest broadband package available at this postcode. The average speed displayed is based on the download speeds of at least 50% of customers at peak time (8pm to 10pm). Fibre/cable services at the postcode are subject to availability and may differ between properties within a postcode. Speeds can be affected by a range of technical and environmental factors. The speed at the property may be lower than that listed above. You can check the estimated speed and confirm availability to a property prior to purchasing on the broadband provider's website. Providers may increase charges. The information is provided and maintained by Decision Technologies Limited. **This is indicative only and based on a 2-person household with multiple devices and simultaneous usage. Broadband performance is affected by multiple factors including number of occupants and devices, simultaneous usage, router range etc. For more information speak to your broadband provider.
Map data ©OpenStreetMap contributors.