Plot for sale
Howe Drive, Beaconsfield, Buckinghamshire, HP9
- PROPERTY TYPE
Plot
- SIZE
Ask agent
Key features
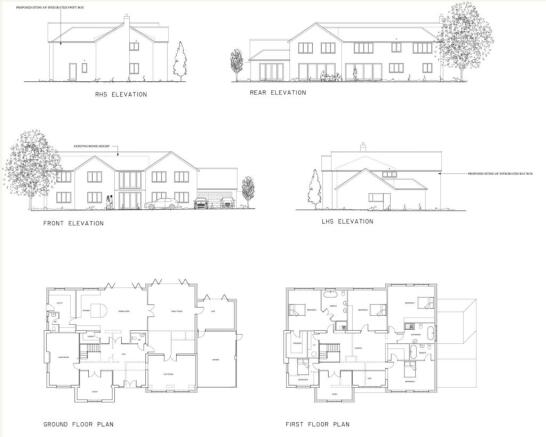
- Two brand new detached houses replacing existing house granted (PL/25/0007/FA)
- Two storey rear and front/single storey rear/first floor side extensions granted (PL/24/0033/FA)
- Wide westerly facing rear garden
- Superb sought after location
Description
Situated in a sought after quiet location a detached house, enjoying a wide westerly facing rear garden, benefitting from planning permissions granted for:
• extending the existing house substantially (PL/24/0033/FA) to
circa 5,315 sq ft, or
• two brand new detached houses (PL/25/0007/FA).
The new houses are circa 2496 square feet (2281 sq ft house plus 215 sq ft garage).
NB The vendor has advised the sizes of the existing house and the two new houses
No onward chain.
Brochures
ParticularsEnergy Performance Certificates
EPC Rating GraphHowe Drive, Beaconsfield, Buckinghamshire, HP9
NEAREST STATIONS
Distances are straight line measurements from the centre of the postcode- Beaconsfield Station0.6 miles
- Seer Green Station1.7 miles
- Amersham Station4.0 miles




Notes
Disclaimer - Property reference BEA250203. The information displayed about this property comprises a property advertisement. Rightmove.co.uk makes no warranty as to the accuracy or completeness of the advertisement or any linked or associated information, and Rightmove has no control over the content. This property advertisement does not constitute property particulars. The information is provided and maintained by The Frost Partnership, Beaconsfield. Please contact the selling agent or developer directly to obtain any information which may be available under the terms of The Energy Performance of Buildings (Certificates and Inspections) (England and Wales) Regulations 2007 or the Home Report if in relation to a residential property in Scotland.
Map data ©OpenStreetMap contributors.





