Wilson Road, Wyke, Bradford, BD12 9HN
- SIZE AVAILABLE
740,520 sq ft
68,797 sq m
- SECTOR
Land for sale
Key features
- Rare freehold development opportunity.
- Well established location.
- Close to Wyke and all amenities.
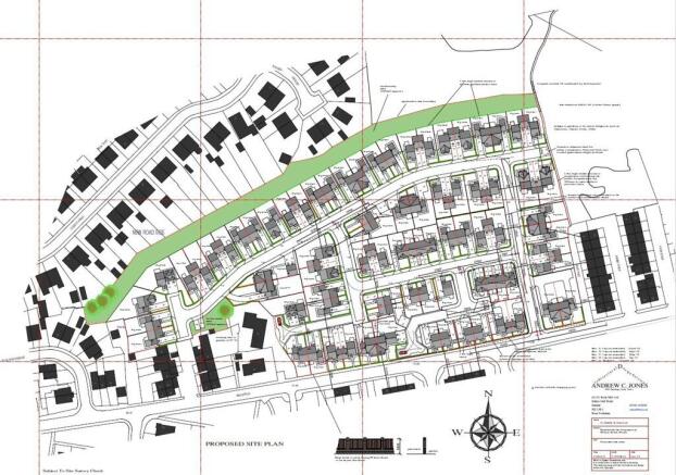
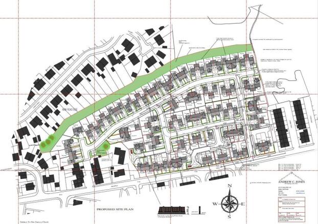
Description
The land is accessed via Wilson Road with the surrounding area being a mix of residential and commercial occupiers.
Brochures
Wilson Road, Wyke, Bradford, BD12 9HN
NEAREST STATIONS
Distances are straight line measurements from the centre of the postcode- Low Moor Station0.5 miles
- Bradford Interchange Station3.2 miles
- Brighouse Station3.4 miles
Notes
Disclaimer - Property reference 3014335FH. The information displayed about this property comprises a property advertisement. Rightmove.co.uk makes no warranty as to the accuracy or completeness of the advertisement or any linked or associated information, and Rightmove has no control over the content. This property advertisement does not constitute property particulars. The information is provided and maintained by Eddisons Commercial Limited, Bradford. Please contact the selling agent or developer directly to obtain any information which may be available under the terms of The Energy Performance of Buildings (Certificates and Inspections) (England and Wales) Regulations 2007 or the Home Report if in relation to a residential property in Scotland.
Map data ©OpenStreetMap contributors.




