
Athenian Drive, Bishop's Stortford

- PROPERTY TYPE
Town House
- BEDROOMS
3
- BATHROOMS
2
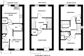
- SIZE
1,058 sq ft
98 sq m
- TENUREDescribes how you own a property. There are different types of tenure - freehold, leasehold, and commonhold.Read more about tenure in our glossary page.
Freehold
Key features
- A Fantastic Three Bedroom, Semi Detached Home
- Arranged Over Three Floors
- Kitchen/Breakfast Room & Dining Room/Study on Ground Floor
- Living Room & Bedroom on First Floor
- Two Bedrooms, En-Suite Shower & Family Bathroom on Top Floor
- South Facing Rear Garden
- Off Street Parking for Two Veichles
- Built in 2023 with a 10 Year NHBC Guarantee
- Popular Location, Walk to Town, Schooling & Amenities
- Key Facts For Buyers Included
Description
Front door into:
Entrance Hallway:
Laminate flooring, cupboard, radiator and inset down lighters Carpeted staircase to first floor accommodation and door into:
Dining Room/Study - 11'3 x 8'2 (3.44m x 2.50m)
Laminate flooring, window to front, radiator and ceiling light point.
Downstairs W.C.:
Laminate flooring, low level w.c., pedestal wash hand basin, radiator, extraction fan and inset down lighters.
Kitchen/Breakfast Room - 13'1 x 10'11 (4.00m x 3.32m) max
Laminate flooring, a range of eye and base level units with complementary work surface and inset sink unit. Integrated oven with 4 ring gas hob and extraction over, integrated dishwasher, washing machine and fridge/freezer. Door with side window and further window to rear, concealed 'Combi' boiler, storage
cupboard, radiator and inset down lighters.
Landing space with carpet, storage cupboard, ceiling light point. Carpeted stair to second floor. Doors to:
Living Room - 13'1 x 12'6 (4.00m x 3.80m)
Carpeted, double doors to Juliet balcony and window to front, over stairs cupboard, radiator and ceiling light point.
Bedroom 3 - 13'1 x 7'3 (4.00m x 2.21m)
Carpeted, two windows to rear, radiator and ceiling light point.
Second floor landing, carpeted, loft access and ceiling light point. Doors into:
Bedroom 1 - 13'1 x 9'4 (4.00m x 2.85m) max
Carpeted, two windows to front, radiator and ceiling light point. Door into:
En-suite Shower Room:
Laminate flooring, shower cubicle, low level w.c., pedestal wash hand basin, heated towel rail, extraction fan and inset down lighters.
Bedroom 2 - 13'1 x 9'4 (4.00m x 2.75m)
Carpeted, two windows to rear, over stairs cupboard, radiator and ceiling light point.
Family Bathroom:
Laminate flooring, panel bath with overhead shower, low level w.c., pedestal wash hand basin. Heated towel rail, extraction fan and inset down lighters.
Outside:
To the rear there is a South facing garden, step out onto a patio space across the back of the property, leading onto laid to lawn remainder, pathway up to the top of the garden and a storage shed. Outside lighting, power and tap, gated side access.
Off street parking for two vehicles to the side.
Agent Notes: Service charge of £224.68 per annum as of 2025
Brochures
Key Facts For Buy...- COUNCIL TAXA payment made to your local authority in order to pay for local services like schools, libraries, and refuse collection. The amount you pay depends on the value of the property.Read more about council Tax in our glossary page.
- Band: E
- PARKINGDetails of how and where vehicles can be parked, and any associated costs.Read more about parking in our glossary page.
- Off street
- GARDENA property has access to an outdoor space, which could be private or shared.
- Yes
- ACCESSIBILITYHow a property has been adapted to meet the needs of vulnerable or disabled individuals.Read more about accessibility in our glossary page.
- Ask agent
Athenian Drive, Bishop's Stortford
Add an important place to see how long it'd take to get there from our property listings.
__mins driving to your place
Get an instant, personalised result:
- Show sellers you’re serious
- Secure viewings faster with agents
- No impact on your credit score



Your mortgage
Notes
Staying secure when looking for property
Ensure you're up to date with our latest advice on how to avoid fraud or scams when looking for property online.
Visit our security centre to find out moreDisclaimer - Property reference 100280003259. The information displayed about this property comprises a property advertisement. Rightmove.co.uk makes no warranty as to the accuracy or completeness of the advertisement or any linked or associated information, and Rightmove has no control over the content. This property advertisement does not constitute property particulars. The information is provided and maintained by Pestell Estate Agents, Bishops Stortford. Please contact the selling agent or developer directly to obtain any information which may be available under the terms of The Energy Performance of Buildings (Certificates and Inspections) (England and Wales) Regulations 2007 or the Home Report if in relation to a residential property in Scotland.
*This is the average speed from the provider with the fastest broadband package available at this postcode. The average speed displayed is based on the download speeds of at least 50% of customers at peak time (8pm to 10pm). Fibre/cable services at the postcode are subject to availability and may differ between properties within a postcode. Speeds can be affected by a range of technical and environmental factors. The speed at the property may be lower than that listed above. You can check the estimated speed and confirm availability to a property prior to purchasing on the broadband provider's website. Providers may increase charges. The information is provided and maintained by Decision Technologies Limited. **This is indicative only and based on a 2-person household with multiple devices and simultaneous usage. Broadband performance is affected by multiple factors including number of occupants and devices, simultaneous usage, router range etc. For more information speak to your broadband provider.
Map data ©OpenStreetMap contributors.





