Crow Lane, Ramsbottom, BL0 9BR

- PROPERTY TYPE
Semi-Detached
- BEDROOMS
4
- BATHROOMS
2
- SIZE
Ask agent
Key features
- Four bedrooms with two en-suites
- Stylish open-plan kitchen, dining & living space
- Secure parking with gated key-fob access
- Enclosed rear decking area
- Modern décor with character features
- Fantastic location near Nuttall Park & commuter links
Description
SmoothSale are delighted to offer this deceptively spacious four-bedroom end-terrace in the heart of Ramsbottom, just a short walk from the vibrant town centre and the scenic Nuttall Park. Combining character with modern design, this home provides a superb balance of style, practicality, and comfort.
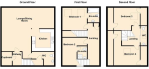
The ground floor opens into a welcoming hallway, leading to a generous open-plan living area that seamlessly connects the lounge, dining space, and contemporary fitted kitchen. This sociable layout is ideal for entertaining or relaxing with family. Completing the ground floor is a convenient WC and additional storage.
The first floor features two well-proportioned bedrooms, each with its own modern en-suite bathroom, offering privacy and convenience. The top floor provides two further bright bedrooms and an additional bathroom, making this home perfect for growing families or those working from home.
Externally, the property enjoys a secure, enclosed decking area to the rear — ideal for outdoor dining or relaxation — along with private gated parking, accessible via key fob.
Located in a highly desirable area, this home benefits from excellent local amenities, reputable schools, and easy access to major transport routes. Stylish, spacious, and ready to move into, this is an exceptional property that must be viewed to be fully appreciated.
-----------------------------------------------------
You can secure this property with an optional reservation deposit of £2,500. This forms part of the property's total purchase price and is not an additional fee. The deposit draws up a legally binding exclusivity agreement which gives exclusive rights to purchase the property within an agreed timeframe.
The reservation deposit guarantees that the seller will remove their property from the market as soon as the offer is accepted and the deposit is paid. This means that the property is reserved for you, giving you time to complete the sale without the risk of being gazumped.
The fixed exclusivity period (typically 8-10 weeks) allows you to prepare financing, surveys and property searches with the confidence that you aren't wasting money on a sale that may fall through.
---------------------------------------------------------------------------------------------------
These particulars, whilst believed to be accurate, are set out as a general outline and are only intended as guidance and do not constitute any part of an offer or contract. Intending purchasers should not rely on them as statements of representation of fact but must satisfy themselves by inspection or otherwise as to their accuracy. No person employed by SmoothSale has the authority to make or give any representation or warranty in respect of the property. Photographs are reproduced for general information and it must not be inferred that any item shown is included for sale with the property. Prospective purchasers are advised to inspect the property and commission an expert report where appropriate. Speak to one of our property specialists about our reservation deposit scheme to find out more.
- COUNCIL TAXA payment made to your local authority in order to pay for local services like schools, libraries, and refuse collection. The amount you pay depends on the value of the property.Read more about council Tax in our glossary page.
- Band: B
- PARKINGDetails of how and where vehicles can be parked, and any associated costs.Read more about parking in our glossary page.
- Yes
- GARDENA property has access to an outdoor space, which could be private or shared.
- Ask agent
- ACCESSIBILITYHow a property has been adapted to meet the needs of vulnerable or disabled individuals.Read more about accessibility in our glossary page.
- Ask agent
Crow Lane, Ramsbottom, BL0 9BR
Add an important place to see how long it'd take to get there from our property listings.
__mins driving to your place
Get an instant, personalised result:
- Show sellers you’re serious
- Secure viewings faster with agents
- No impact on your credit score

Your mortgage
Notes
Staying secure when looking for property
Ensure you're up to date with our latest advice on how to avoid fraud or scams when looking for property online.
Visit our security centre to find out moreDisclaimer - Property reference 006Tw00000JYrGfIAL. The information displayed about this property comprises a property advertisement. Rightmove.co.uk makes no warranty as to the accuracy or completeness of the advertisement or any linked or associated information, and Rightmove has no control over the content. This property advertisement does not constitute property particulars. The information is provided and maintained by SmoothSale, Leeds. Please contact the selling agent or developer directly to obtain any information which may be available under the terms of The Energy Performance of Buildings (Certificates and Inspections) (England and Wales) Regulations 2007 or the Home Report if in relation to a residential property in Scotland.
*This is the average speed from the provider with the fastest broadband package available at this postcode. The average speed displayed is based on the download speeds of at least 50% of customers at peak time (8pm to 10pm). Fibre/cable services at the postcode are subject to availability and may differ between properties within a postcode. Speeds can be affected by a range of technical and environmental factors. The speed at the property may be lower than that listed above. You can check the estimated speed and confirm availability to a property prior to purchasing on the broadband provider's website. Providers may increase charges. The information is provided and maintained by Decision Technologies Limited. **This is indicative only and based on a 2-person household with multiple devices and simultaneous usage. Broadband performance is affected by multiple factors including number of occupants and devices, simultaneous usage, router range etc. For more information speak to your broadband provider.
Map data ©OpenStreetMap contributors.




