Arden Road, Bulkington

- PROPERTY TYPE
Terraced
- BEDROOMS
3
- BATHROOMS
1
- SIZE
Ask agent
- TENUREDescribes how you own a property. There are different types of tenure - freehold, leasehold, and commonhold.Read more about tenure in our glossary page.
Freehold
Key features
- Immediate 'Exchange Of Contracts' available
- Secure Sale Online Bidding
- Mid Terraced Property
- Three Bedrooms & Bathroom
- Two Reception Rooms
- Kitchen & Utility
- Rear Garden
- Freehold
- Council Tax Band B
- EPC Rating D
Description
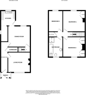
ENTRANCE PORCH
HALLWAY
LIVING ROOM 11' 2" x 12' 1" (3.4m x 3.68m)
DINING ROOM 11' 6" x 12' 2" (3.51m x 3.71m)
KITCHEN 8' 3" x 7' 9" (2.51m x 2.36m)
UTILITY AREA
LANDING
BEDROOM ONE 11' 5" x 11' 10" (3.48m x 3.61m)
BEDROOM TWO 11' 2" x 11' 10" (3.4m x 3.61m)
BEDROOM THREE 11' 7" x 7' 9" (3.53m x 2.36m)
BATHROOM 11' 9" x 7' 8" (3.58m x 2.34m)
REAR GARDEN
GENERAL INFORMATION / MATERIAL INFORMATION PART C Nuneaton & Bedworth Borough Council. Council Tax Banding B. EPC Commissioned.
Low Floor Risk Area.
The Vendor has informed the Agents, they are not aware of any Building Safety issues.
The Vendor has informed the Agents, they are not aware of any planning considerations in direct locality.
We have been made aware the property is of Standard Brick Construction.
TENURE: we understand from the vendors that the property is freehold with vacant possession on completion.
SERVICES: Russell Cope Estate Agents have not tested any apparatus, equipment, fittings, etc, or services to this property, so cannot confirm they are in working order or fit for the purpose. A buyer is recommended to obtain confirmation from their Surveyor or Solicitor.
FIXTURES AND FITTINGS: only those as mentioned in these details will be included in the sale.
MEASUREMENTS: the measurements provided are given as a general guide only and are all approximate.
VIEWING: by prior appointment through the Sole Agents.
Auctioneers Additional Comments
Pattinson Auction are working in Partnership with the marketing agent on this online auction sale and
are referred to below as 'The Auctioneer'.
This auction lot is being sold either under conditional (Modern) or unconditional (Traditional) auction
terms and overseen by the auctioneer in partnership with the marketing agent.
The property is available to be viewed strictly by appointment only via the Marketing Agent or The
Auctioneer. Bids can be made via the Marketing Agents or via The Auctioneers website.
Please be aware that any enquiry, bid or viewing of the subject property will require your details being
shared between both any marketing agent and The Auctioneer in order that all matters can be dealt
with effectively.
The property is being sold via a transparent online auction.
In order to submit a bid upon any property being marketed by The Auctioneer, all bidders/buyers will
be required to adhere to a verification of identity process in accordance with Anti Money Laundering
procedures. Bids can be submitted at any time and from anywhere.
Our verification process is in place to ensure that AML procedure are carried out in accordance with
the law.
A Legal Pack associated with this particular property is available to view upon request and contains
details relevant to the legal documentation enabling all interested parties to make an informed
decision prior to bidding. The Legal Pack will also outline the buyers' obligations and sellers'
commitments. It is strongly advised that you seek the counsel of a solicitor prior to proceeding
with any property and/or Land Title purchase.
Auctioneers Additional Comments
In order to secure the property and ensure commitment from the seller, upon exchange of contracts
the successful bidder will be expected to pay a non-refundable deposit equivalent to 5% of the
purchase price of the property. The deposit will be a contribution to the purchase price. A non-
refundable reservation fee of up to 6% inc VAT (subject to a minimum of 6,000 inc VAT) is also
required to be paid upon agreement of sale. The Reservation Fee is in addition to the agreed
purchase price and consideration should be made by the purchaser in relation to any Stamp Duty
Land Tax liability associated with overall purchase costs.
Both the Marketing Agent and The Auctioneer may believe necessary or beneficial to the customer to
pass their details to third party service suppliers, from which a referral fee may be obtained. There is
no requirement or indeed obligation to use these recommended suppliers or services.
Brochures
A4 Portrait Windo...- COUNCIL TAXA payment made to your local authority in order to pay for local services like schools, libraries, and refuse collection. The amount you pay depends on the value of the property.Read more about council Tax in our glossary page.
- Band: B
- PARKINGDetails of how and where vehicles can be parked, and any associated costs.Read more about parking in our glossary page.
- Ask agent
- GARDENA property has access to an outdoor space, which could be private or shared.
- Yes
- ACCESSIBILITYHow a property has been adapted to meet the needs of vulnerable or disabled individuals.Read more about accessibility in our glossary page.
- Ask agent
Energy performance certificate - ask agent
Arden Road, Bulkington
Add an important place to see how long it'd take to get there from our property listings.
__mins driving to your place
Get an instant, personalised result:
- Show sellers you’re serious
- Secure viewings faster with agents
- No impact on your credit score
Your mortgage
Notes
Staying secure when looking for property
Ensure you're up to date with our latest advice on how to avoid fraud or scams when looking for property online.
Visit our security centre to find out moreDisclaimer - Property reference 102700002644. The information displayed about this property comprises a property advertisement. Rightmove.co.uk makes no warranty as to the accuracy or completeness of the advertisement or any linked or associated information, and Rightmove has no control over the content. This property advertisement does not constitute property particulars. The information is provided and maintained by Russell Cope, Bedworth. Please contact the selling agent or developer directly to obtain any information which may be available under the terms of The Energy Performance of Buildings (Certificates and Inspections) (England and Wales) Regulations 2007 or the Home Report if in relation to a residential property in Scotland.
Auction Fees: The purchase of this property may include associated fees not listed here, as it is to be sold via auction. To find out more about the fees associated with this property please call Russell Cope, Bedworth on 024 7542 0723.
*Guide Price: An indication of a seller's minimum expectation at auction and given as a Guide Price or a range of Guide Prices. This is not necessarily the figure a property will sell for and is subject to change prior to the auction.
Reserve Price: Each auction property will be subject to a Reserve Price below which the property cannot be sold at auction. Normally the Reserve Price will be set within the range of Guide Prices or no more than 10% above a single Guide Price.
*This is the average speed from the provider with the fastest broadband package available at this postcode. The average speed displayed is based on the download speeds of at least 50% of customers at peak time (8pm to 10pm). Fibre/cable services at the postcode are subject to availability and may differ between properties within a postcode. Speeds can be affected by a range of technical and environmental factors. The speed at the property may be lower than that listed above. You can check the estimated speed and confirm availability to a property prior to purchasing on the broadband provider's website. Providers may increase charges. The information is provided and maintained by Decision Technologies Limited. **This is indicative only and based on a 2-person household with multiple devices and simultaneous usage. Broadband performance is affected by multiple factors including number of occupants and devices, simultaneous usage, router range etc. For more information speak to your broadband provider.
Map data ©OpenStreetMap contributors.







