
North Street, Ripon, North Yorkshire, HG4 1JZ

Letting details
- Let available date:
- Now
- Deposit:
- Ask agentA deposit provides security for a landlord against damage, or unpaid rent by a tenant.Read more about deposit in our glossary page.
- Min. Tenancy:
- Ask agent How long the landlord offers to let the property for.Read more about tenancy length in our glossary page.
- Let type:
- Long term
- Furnish type:
- Unfurnished
- Council Tax:
- Ask agent
- PROPERTY TYPE
Retirement Property
- BEDROOMS
2
- SIZE
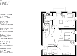
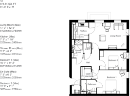
876 sq ft
81 sq m
Key features
- Ideally located in the beautiful cathedral city of Ripon
- A range of amenities close by including cafes, restaurants and shops
- Excellent transport links with easy access to surrounding area including Leeds & Harrogate
- Stunning landscaped gardens fully maintained all year round
- Elegant communal lounge to socialise in with friends and neighbours
- Expertly designed apartments with ease of living in mind
- En-suite
- Walk-in wardrobe
- Walk out balcony
- North East facing
Description
Enjoy all of the benefits of a McCarthy Stone retirement community with our assured, affordable and flexible tenancies, so you can rent your property for as long as you want (subject to a minimum term). Renting in retirement provides a wealth of benefits including one monthly fee, removing any worries you may have about the upkeep of your property and the grounds. You can move in at your pace, knowing there's long-term security with one of our Assured Tenancies and settle in to your new home with minimum fuss.
Property 12 is a beautiful two-bedroom apartment measuring 875 square feet, ideally located on the first floor boasting a North East facing walk out balcony.
The spacious living room is decorated in a natural colour which gives a bright and airy feel, the fitted kitchen comes complete with integrated appliances.
The master bedroom benefits form an en-suite shower room and walk in wardrobe fitted with hanging space and shelving units. The large second bedroom could be used as an ideal space for guests or quiet study room, the choice is yours.
Finally, the shower room is complete with a low profile shower tray and slip resistant flooring, a chrome towel radiator and an illuminating mirror.
- Council tax band: C
- Reservation deposit: £500 (to be offset against your initial payment and fully refundable should your Tenancy not proceed)
- Security deposit: £2,481 (equivalent to 5 weeks rent of the apartment only, excludes any parking space rent)
Brochures
Dawson Grange brochure- COUNCIL TAXA payment made to your local authority in order to pay for local services like schools, libraries, and refuse collection. The amount you pay depends on the value of the property.Read more about council Tax in our glossary page.
- Band: C
- PARKINGDetails of how and where vehicles can be parked, and any associated costs.Read more about parking in our glossary page.
- Yes
- GARDENA property has access to an outdoor space, which could be private or shared.
- Yes
- ACCESSIBILITYHow a property has been adapted to meet the needs of vulnerable or disabled individuals.Read more about accessibility in our glossary page.
- Ask agent
North Street, Ripon, North Yorkshire, HG4 1JZ
Add an important place to see how long it'd take to get there from our property listings.
__mins driving to your place
Notes
Staying secure when looking for property
Ensure you're up to date with our latest advice on how to avoid fraud or scams when looking for property online.
Visit our security centre to find out moreDisclaimer - Property reference a230O0000025wz6QAA. The information displayed about this property comprises a property advertisement. Rightmove.co.uk makes no warranty as to the accuracy or completeness of the advertisement or any linked or associated information, and Rightmove has no control over the content. This property advertisement does not constitute property particulars. The information is provided and maintained by McCarthy Stone, Nationwide. Please contact the selling agent or developer directly to obtain any information which may be available under the terms of The Energy Performance of Buildings (Certificates and Inspections) (England and Wales) Regulations 2007 or the Home Report if in relation to a residential property in Scotland.
*This is the average speed from the provider with the fastest broadband package available at this postcode. The average speed displayed is based on the download speeds of at least 50% of customers at peak time (8pm to 10pm). Fibre/cable services at the postcode are subject to availability and may differ between properties within a postcode. Speeds can be affected by a range of technical and environmental factors. The speed at the property may be lower than that listed above. You can check the estimated speed and confirm availability to a property prior to purchasing on the broadband provider's website. Providers may increase charges. The information is provided and maintained by Decision Technologies Limited. **This is indicative only and based on a 2-person household with multiple devices and simultaneous usage. Broadband performance is affected by multiple factors including number of occupants and devices, simultaneous usage, router range etc. For more information speak to your broadband provider.
Map data ©OpenStreetMap contributors.





