Station Avenue, Filey, YO14 9AE

- PROPERTY TYPE
Semi-Detached
- BEDROOMS
5
- BATHROOMS
3
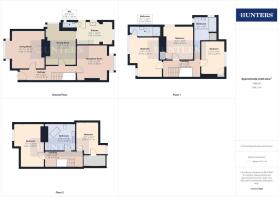
- SIZE
1,980 sq ft
184 sq m
- TENUREDescribes how you own a property. There are different types of tenure - freehold, leasehold, and commonhold.Read more about tenure in our glossary page.
Freehold
Key features
- Semi Detached House
- Five Bedrooms
- Beautifully Presented
- Off Road Parking to Rear
- Close Proximity to Town Centre & Transport Links
- Three Bathrooms & Downstairs WC
- Front & Rear Gardens
- EPC Rating: D
Description
Perfectly positioned in the ever-popular coastal town of Filey, this exquisite period property is just a short stroll from the seafront and the vibrant array of local shops, cafés, and amenities the town has to offer. Having undergone an extensive renovation in recent years, the home now combines elegant period charm with modern, high-quality finishes, offering stylish and versatile accommodation set over three floors.
The ground floor welcomes you with a bright entrance hallway leading to a spacious bay-fronted lounge and an impressive open-plan kitchen and dining area, fitted with contemporary units and complemented by a handy utility space enjoying views of the surrounding greenery. To the rear is a versatile dining or reception room, ideal for entertaining or family use, along with a convenient ground-floor WC.
The first floor features a generous landing providing access to three well-proportioned bedrooms, including one with a modern en-suite shower room. A beautifully appointed family bathroom completes this level, showcasing a sleek three-piece suite. On the top floor, you’ll find two additional double bedrooms and a luxurious bathroom featuring twin “His and Hers” basins and a roll-top bath — the perfect retreat for relaxation.
Externally, the property benefits from rear access to a driveway providing off-street parking. This space could alternatively be enclosed to create a private garden area, offering flexibility to suit your needs.
Located on Station Avenue, right in the centre of Filey, the home is ideally placed for access to local schools, transport links, and the stunning Filey Bay, known for its scenic coastal walks. With Filey Train Station nearby and excellent connections to Scarborough and beyond, this property is perfectly suited to a range of buyers. Viewing is highly recommended to fully appreciate what the property on offer!
Hmrc - Should you wish to proceed with an offer on this property we are obliged by HMRC to conduct mandatory Anti Money Laundering Checks. We outsource these checks to our compliance partners at Coadjute and they charge a fee for this service.
Brochures
Station Avenue, Filey, YO14 9AE- COUNCIL TAXA payment made to your local authority in order to pay for local services like schools, libraries, and refuse collection. The amount you pay depends on the value of the property.Read more about council Tax in our glossary page.
- Band: C
- PARKINGDetails of how and where vehicles can be parked, and any associated costs.Read more about parking in our glossary page.
- Off street
- GARDENA property has access to an outdoor space, which could be private or shared.
- Yes
- ACCESSIBILITYHow a property has been adapted to meet the needs of vulnerable or disabled individuals.Read more about accessibility in our glossary page.
- Ask agent
Station Avenue, Filey, YO14 9AE
Add an important place to see how long it'd take to get there from our property listings.
__mins driving to your place
Get an instant, personalised result:
- Show sellers you’re serious
- Secure viewings faster with agents
- No impact on your credit score
Your mortgage
Notes
Staying secure when looking for property
Ensure you're up to date with our latest advice on how to avoid fraud or scams when looking for property online.
Visit our security centre to find out moreDisclaimer - Property reference 34239792. The information displayed about this property comprises a property advertisement. Rightmove.co.uk makes no warranty as to the accuracy or completeness of the advertisement or any linked or associated information, and Rightmove has no control over the content. This property advertisement does not constitute property particulars. The information is provided and maintained by Hunters, Filey. Please contact the selling agent or developer directly to obtain any information which may be available under the terms of The Energy Performance of Buildings (Certificates and Inspections) (England and Wales) Regulations 2007 or the Home Report if in relation to a residential property in Scotland.
*This is the average speed from the provider with the fastest broadband package available at this postcode. The average speed displayed is based on the download speeds of at least 50% of customers at peak time (8pm to 10pm). Fibre/cable services at the postcode are subject to availability and may differ between properties within a postcode. Speeds can be affected by a range of technical and environmental factors. The speed at the property may be lower than that listed above. You can check the estimated speed and confirm availability to a property prior to purchasing on the broadband provider's website. Providers may increase charges. The information is provided and maintained by Decision Technologies Limited. **This is indicative only and based on a 2-person household with multiple devices and simultaneous usage. Broadband performance is affected by multiple factors including number of occupants and devices, simultaneous usage, router range etc. For more information speak to your broadband provider.
Map data ©OpenStreetMap contributors.




