
Rosemary Lane, Kelsale, Saxmundham, Suffolk, IP17

- PROPERTY TYPE
Equestrian Facility
- BEDROOMS
7
- BATHROOMS
4
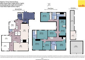
- SIZE
4,336 sq ft
403 sq m
- TENUREDescribes how you own a property. There are different types of tenure - freehold, leasehold, and commonhold.Read more about tenure in our glossary page.
Freehold
Key features
- Spacious accommodation throughout
- Steeped in local history
- Light filled kitchen/ breakfast room
- About three acres of gardens and grounds
- Post and rail paddocks, floodlit ménage, and nine loose boxes
- EPC Rating = D
Description
Description
Set along a quiet country lane The Mill House enjoys a peaceful and private setting within approximately three acres of mature gardens and grounds. This beautifully proportioned home offers an abundance of natural light and generous living spaces.
Steeped in local history, The Mill House traces its origins to the 1840s, once home to renowned Kelsale miller Thomas Skoulding beside his impressive tower mill, built in 1856. The property later served as the village police station before being transformed into the residence it is today.
Beautifully restored and sensitively modernised, The Mill House now blends heritage character with modern additions , offering a opportunity to own a distinguished piece of Kelsale’s historic landscape.
The front door opens into a spacious entrance hall, giving access to the ground floor accommodation. To the front of the property lies a delightful double-aspect library and an elegant sitting room. The sitting room also enjoys a dual aspect and features a wood-burning stove and French doors that offer access and beautiful views of the gardens.
At the heart of the home, the dining room provides an excellent space for entertaining, perfectly positioned between the main reception rooms and the kitchen. This impressive room benefits from large windows and French doors to the garden, flooding the space with natural light. The triple-aspect kitchen and breakfast room is located to the rear of the house and is bright and welcoming, featuring skylights, an Aga, and ample storage. Adjacent to the kitchen is a useful utility room, which contains the boiler and water softener.
Completing the ground floor accommodation is a studio with wood burning stove, which is a versatile space, and a charming morning room, the perfect spot to relax and enjoy views over the gardens. A cloakroom and a number of built-in storage cupboards add practicality to the home.
Two staircases lead to the first-floor accommodation, where there are seven well-proportioned bedrooms, each enjoying delightful views over the surrounding countryside. Two of the bedrooms benefit from en suite bathrooms, while one features a dressing room. A further bathroom and a wet room complete the first-floor accommodation.
The property is set within approximately three acres of gardens and grounds, offering both privacy and far-reaching views across the surrounding countryside. Beyond the formal lawns, there are post-and-rail paddocks, a floodlit ménage, and nine loose boxes, providing superb facilities for equestrian use as well as work shops. There is also a double garage further enhancing storage space.
Closer to the house, a terrace at the rear provides the perfect setting for al fresco dining and entertaining. A kitchen garden and polytunnel offer wonderful opportunities for homegrown produce, while established trees, colourful borders, and planting create a peaceful and picturesque setting throughout the seasons. In addition, a detached office provides an ideal space for home working or a creative studio, enjoying views across the gardens.
Location
The Mill House is nestled in a peaceful rural setting on the outskirts of the charming village of Kelsale, near Saxmundham. This historic village offers a variety of local amenities, including a popular public house, The Poacher's Pocket, and a community-run village hall. The village is also home to the notable medieval church of St. Mary and St. Peter's, and a strong sense of community spirit is prevalent.
Just a short drive away, Saxmundham is a thriving market town that provides a wider range of amenities. Known for its historic architecture and traditional market, Saxmundham offers a selection of independent shops, cafés, and restaurants, as well as a market. The town also benefits from excellent transport links, including a train station with services to Ipswich and London Liverpool Street.
The Mill House is ideally situated for enjoying the Suffolk Coast and Heaths Area of Outstanding Natural Beauty, which includes picturesque seaside towns and villages such as Aldeburgh, Thorpeness, Southwold, and Walberswick. Aldeburgh, in particular, is renowned for its artistic heritage, vibrant arts scene, and cultural landmarks, including the 'Scallop' sculpture by Maggi Hambling. The town offers an array of independent shops, galleries, boutiques, and a renowned restaurant scene, making it a popular destination for visitors and residents alike.
Square Footage: 4,336 sq ft
Acreage: 3 Acres
Additional Info
Services: Mains water and electricity; oil fired central heating and private drainage via sewage treatment plant.
20 solar panels
Brochures
Web DetailsParticulars- COUNCIL TAXA payment made to your local authority in order to pay for local services like schools, libraries, and refuse collection. The amount you pay depends on the value of the property.Read more about council Tax in our glossary page.
- Band: F
- PARKINGDetails of how and where vehicles can be parked, and any associated costs.Read more about parking in our glossary page.
- Garage,Driveway,Off street,Rear
- GARDENA property has access to an outdoor space, which could be private or shared.
- Yes
- ACCESSIBILITYHow a property has been adapted to meet the needs of vulnerable or disabled individuals.Read more about accessibility in our glossary page.
- Ask agent
Rosemary Lane, Kelsale, Saxmundham, Suffolk, IP17
Add an important place to see how long it'd take to get there from our property listings.
__mins driving to your place
Affordability
Get an instant, personalised result:
- Show sellers you’re serious
- Secure viewings faster with agents
- No impact on your credit score
Notes
Staying secure when looking for property
Ensure you're up to date with our latest advice on how to avoid fraud or scams when looking for property online.
Visit our security centre to find out moreDisclaimer - Property reference CLV754761. The information displayed about this property comprises a property advertisement. Rightmove.co.uk makes no warranty as to the accuracy or completeness of the advertisement or any linked or associated information, and Rightmove has no control over the content. This property advertisement does not constitute property particulars. The information is provided and maintained by Savills, Suffolk. Please contact the selling agent or developer directly to obtain any information which may be available under the terms of The Energy Performance of Buildings (Certificates and Inspections) (England and Wales) Regulations 2007 or the Home Report if in relation to a residential property in Scotland.
*This is the average speed from the provider with the fastest broadband package available at this postcode. The average speed displayed is based on the download speeds of at least 50% of customers at peak time (8pm to 10pm). Fibre/cable services at the postcode are subject to availability and may differ between properties within a postcode. Speeds can be affected by a range of technical and environmental factors. The speed at the property may be lower than that listed above. You can check the estimated speed and confirm availability to a property prior to purchasing on the broadband provider's website. Providers may increase charges. The information is provided and maintained by Decision Technologies Limited. **This is indicative only and based on a 2-person household with multiple devices and simultaneous usage. Broadband performance is affected by multiple factors including number of occupants and devices, simultaneous usage, router range etc. For more information speak to your broadband provider.
Map data ©OpenStreetMap contributors.






