Kingswood Drive, Kings park, G44

- PROPERTY TYPE
Flat
- BEDROOMS
3
- BATHROOMS
1
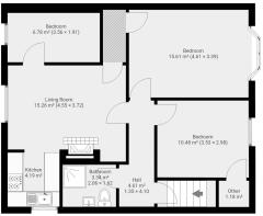
- SIZE
753 sq ft
70 sq m
- TENUREDescribes how you own a property. There are different types of tenure - freehold, leasehold, and commonhold.Read more about tenure in our glossary page.
Freehold
Key features
- Dial Ext 086 to speak directly to the agent
- 3 bedrooms
- Newly renovated throughout
- Great Storage
- Driveway and garage
Description
This bright and beautifully finished home will appeal to a wide range of buyers — families, first-time buyers, investors, and downsizers alike — offering generous accommodation, modern finishes, and a true move-in-ready feel throughout.
The property is accessed via a private stairway leading to a welcoming central hallway.
From here, you’ll find a spacious lounge, filled with natural light from a large, newly installed lined double-glazed window — the perfect place to relax or entertain.
Off the lounge sits a single bedroom, ideal for use as a child’s room, home office, or guest space, along with a newly fitted modern kitchen equipped with a range of wall-mounted and floor-standing units, offering excellent storage and ample worktop space.
There are two further generously sized bedrooms — a bright double bedroom with a large storage cupboard, and a spacious master bedroom featuring built-in storage and fitted wardrobes.
The bathroom has been fully refurbished, featuring modern tiling throughout and a contemporary standing shower unit with stylish finishes.
Additional benefits include gas central heating, new carpets, fresh décor throughout, and a clean, modern finish from top to bottom.
Externally, the property has been newly rendered, enhancing its strong kerb appeal.
It further benefits from driveway and garage, providing convenient off-street parking, as well as a well-maintained rear garden, offering an ideal outdoor space for relaxation or family use.
Transport Links
Kings Park is exceptionally well connected, with Kings Park and Croftfoot train stations both within walking distance, providing direct links to Glasgow Central Station and beyond.
Regular bus services operate nearby on Curtis Avenue and Aikenhead Road, offering easy access to the city centre, Shawlands, and surrounding areas.
For drivers, the property is conveniently located close to the M74 and M8 motorway networks, ensuring quick access across Glasgow and the wider Central Belt.
Local Area & Amenities
Kings Park is a popular residential area offering a great balance of suburban comfort and city convenience.
The property is close to a variety of shops, supermarkets (Tesco Express, Lidl, Morrisons, and Asda Toryglen), cafés, and local restaurants.
For larger retail and dining options, Silverburn and Braehead Shopping Centres are both a short drive away.
Outdoor enthusiasts will appreciate nearby Kings Park, Linn Park, and Queens Park, offering beautiful green spaces, walking trails, and leisure facilities.
The area also benefits from nearby healthcare services, including local GP practices, pharmacies, and quick access to the Queen Elizabeth University Hospital and New Victoria Hospital.
Local Schooling
Families are well served with excellent local schooling options, including Kings Park Primary School, St Fillan’s Primary School, King’s Park Secondary School, and Holyrood Secondary School all within easy reach.
Further education is also available nearby at Glasgow Clyde College – Langside Campus.
Viewings
Viewing is strictly by appointment only.
Contact David Dunn | Time 2 Sell Estate Agents today to arrange your private viewing.
Offers
Formal offers are invited and should be submitted in writing to:
David Dunn, Time 2 Sell Estate Agents, 17 Fitzroy Place, Glasgow, G3 7RW
Thinking of Selling?
If you’re considering a move, contact us today to arrange your FREE, no-obligation property valuation and discover how we can help you achieve the best result for your home.
- COUNCIL TAXA payment made to your local authority in order to pay for local services like schools, libraries, and refuse collection. The amount you pay depends on the value of the property.Read more about council Tax in our glossary page.
- Band: C
- PARKINGDetails of how and where vehicles can be parked, and any associated costs.Read more about parking in our glossary page.
- Yes
- GARDENA property has access to an outdoor space, which could be private or shared.
- Yes
- ACCESSIBILITYHow a property has been adapted to meet the needs of vulnerable or disabled individuals.Read more about accessibility in our glossary page.
- Ask agent
Kingswood Drive, Kings park, G44
Add an important place to see how long it'd take to get there from our property listings.
__mins driving to your place
Get an instant, personalised result:
- Show sellers you’re serious
- Secure viewings faster with agents
- No impact on your credit score
Your mortgage
Notes
Staying secure when looking for property
Ensure you're up to date with our latest advice on how to avoid fraud or scams when looking for property online.
Visit our security centre to find out moreDisclaimer - Property reference RX630421. The information displayed about this property comprises a property advertisement. Rightmove.co.uk makes no warranty as to the accuracy or completeness of the advertisement or any linked or associated information, and Rightmove has no control over the content. This property advertisement does not constitute property particulars. The information is provided and maintained by Time 2 Sell, Powered by Keller Williams, Covering Central Scotland. Please contact the selling agent or developer directly to obtain any information which may be available under the terms of The Energy Performance of Buildings (Certificates and Inspections) (England and Wales) Regulations 2007 or the Home Report if in relation to a residential property in Scotland.
*This is the average speed from the provider with the fastest broadband package available at this postcode. The average speed displayed is based on the download speeds of at least 50% of customers at peak time (8pm to 10pm). Fibre/cable services at the postcode are subject to availability and may differ between properties within a postcode. Speeds can be affected by a range of technical and environmental factors. The speed at the property may be lower than that listed above. You can check the estimated speed and confirm availability to a property prior to purchasing on the broadband provider's website. Providers may increase charges. The information is provided and maintained by Decision Technologies Limited. **This is indicative only and based on a 2-person household with multiple devices and simultaneous usage. Broadband performance is affected by multiple factors including number of occupants and devices, simultaneous usage, router range etc. For more information speak to your broadband provider.
Map data ©OpenStreetMap contributors.




