
Land for sale
Springfield Road, Lydney, Gloucestershire, GL15
- PROPERTY TYPE
Land
- SIZE
Ask agent
Key features
- Planning for a 5-bedroom detached home
- Full Planning Permission
- Parking Space for Two + Cars
- Large Plot with garden area
- Planning Ref: P1474/24/FUL
Description
SITUATION
Lydney town offers a wide range of facilities including a variety of shops, bank, building societies and supermarkets, as well as a sports centre, golf course, hospital, doctors’ surgeries, train station, primary and secondary schools. A wider range of facilities are also available throughout the Forest of Dean including an abundance of woodland and river walks. The Severn crossings and M4 towards London, Bristol and Cardiff are easily reached from this area along with the cities of Gloucester and Cheltenham for access onto the M5 and the Midlands.
ACCOMMODATION
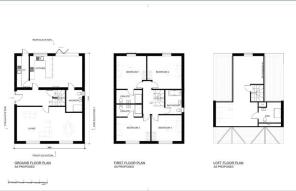
The existing plans for the property offers a large hallway to the ground floor with a ground floor shower room, open plan living area and large kitchen/diner which leads out to the rear garden and a utility room. To the first floor there are four sizeable bedrooms, one with two ensuites as well as a family bathroom. The fifth bedroom is located within the loft with an ensuite bathroom.
OUTSIDE
There is proposed space for multiple vehicles in front of the house with good sized rear garden.
VIEWING
At any reasonable daylight hour with a set of sales particulars and with the usual courtesy shown to the occupier. Please inform the Joint Agents David James on or Toombs and Toombs on that you are viewing the property.
GENERAL
Planning permission reference – P1474/24/FUL copies of planning documents available from the agents
LOCAL AUTHORITY
Forest of Dean District Council – Tel: for planning, council tax and housing matters Gloucestershire County Council-Tel: for education, social care and transport
GUIDE PRICE
£225,000 (Two Hundred and Twenty Five Thousand Pounds)
Brochures
ParticularsSpringfield Road, Lydney, Gloucestershire, GL15
NEAREST STATIONS
Distances are straight line measurements from the centre of the postcode- Lydney Station1.1 miles
Notes
Disclaimer - Property reference MAG250095. The information displayed about this property comprises a property advertisement. Rightmove.co.uk makes no warranty as to the accuracy or completeness of the advertisement or any linked or associated information, and Rightmove has no control over the content. This property advertisement does not constitute property particulars. The information is provided and maintained by David James, Monmouth. Please contact the selling agent or developer directly to obtain any information which may be available under the terms of The Energy Performance of Buildings (Certificates and Inspections) (England and Wales) Regulations 2007 or the Home Report if in relation to a residential property in Scotland.
Map data ©OpenStreetMap contributors.









