
3 bedroom detached bungalow for sale
Wall Hill Road, Corley, CV7

- PROPERTY TYPE
Detached Bungalow
- BEDROOMS
3
- BATHROOMS
1
- SIZE
2,084 sq ft
194 sq m
- TENUREDescribes how you own a property. There are different types of tenure - freehold, leasehold, and commonhold.Read more about tenure in our glossary page.
Freehold
Key features
- Sought After Location Of Corley
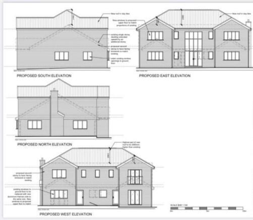
- Bungalow Has Approved Planning Permission To Increase Upto 418 SQM
- No Upward Chain
- Large Driveway Offering Ample Parking
- South Facing Large Garden With Separate Games Room
- Additional Office Space In Courtyard With W/C & Storage
- 4 Piece Bathroom Suite
- Unique Location Overlooking Ancient Woodlands & Rear Views To Open Fields. Plot Size 1.37 Acres
- EPC Current: E Potential: D
- Approx Floor Area: 193.63 SQM
Description
Property location
Corley
Approved Planning Permission - Able to Increase the Property Upto 418 SQM - Including Adding a Floor: Kitchen Extension & More - PLEASE ASK TO SEE RELEVANT PLANS
Below are the 3 planning reference numbers
Kitchen Extension-
PL/2025/0000817/HHA
Additional Floor
PL/2025/0000810/PAHA
Double Garage
PL/2024/0001626/FUL
See the brochure section below for comprehensive overview of the property and location.
We have built the Key Facts for Buyers Guide to give you information on local schools with their ratings, satellite view so that you can see the surrounding areas, as well as local and major transport connections, and much more.
On the viewing we will provide additional information on the property and the area so that you can make an informed decision.
Refurbishments and Features
Driveway | South Facing Garden With Additional Games Room & Office Space | 3 Bedrooms | Large Living Room | Views Over Woodland & Open Fields
Room Measurements
Room dimensions and total floor area are included within our floor plan.
Tenure
Freehold
Outside Space
Front: Lawn | Patio Area | Large Driveway | Shrubs
Rear: Lawn | Patio Area | Shed | Outside Bar | Outside Office Space | Summer House | Large Garden
Additional Information
Selling Position: No Upward Chain
Age of the Property: 1990s
Last Sold: 2006
Council Tax Band: F
Local Authority: Coventry
Energy Performance Certificate Rating: E
Approx. Total Floor Area: 193.63 Sq. M.
Approx. Total Plot Size: 1.37 Acre
Heating System: LPG/Oil Central Heating
Boiler Age: 13 Years
Boiler Last serviced: 25/03/2025
Boiler Location: Loft
Loft: Partially Boarded | Insulated | Light
Type of Windows: UPVC
Age of Windows: 6 Years
Fireplace: Electric
Fuse Box Location: Kitchen
Garden Orientation: South (S)
Material Information Parts B & C
History of Subsidence: No
Unsafe Cladding: No
Asbestos: No
Any Rights of Way: No
Please view the property brochure section for further Material Information Parts B and C
EPC Rating: E
Garden
Views Overlooking Ancient Woodlands & Open Fields
Parking - Driveway
Disclaimer
Disclaimer
Money Laundering Regulations: Buyers will need to provide identification documents once an offer is accepted. This is required to complete anti-money laundering (AML) checks. Please note, a fee is charged per person for these checks. Property Details: The information provided does not form part of an offer or contract for the property’s sale. Measurements: All measurements are for guidance only. We recommend prospective buyers verify dimensions before incurring any expenses. Appliances and Fixtures: Bayzos has not tested any equipment, fixtures, or services. Buyers are advised to check the condition and functioning of appliances independently.
Legal Title: Bayzos has not verified the legal ownership of the property. Buyers should obtain confirmation through their solicitor.
Brochures
Key Facts For Buyers Guide- COUNCIL TAXA payment made to your local authority in order to pay for local services like schools, libraries, and refuse collection. The amount you pay depends on the value of the property.Read more about council Tax in our glossary page.
- Band: F
- PARKINGDetails of how and where vehicles can be parked, and any associated costs.Read more about parking in our glossary page.
- Driveway
- GARDENA property has access to an outdoor space, which could be private or shared.
- Private garden
- ACCESSIBILITYHow a property has been adapted to meet the needs of vulnerable or disabled individuals.Read more about accessibility in our glossary page.
- Ask agent
Energy performance certificate - ask agent
Wall Hill Road, Corley, CV7
Add an important place to see how long it'd take to get there from our property listings.
__mins driving to your place
Get an instant, personalised result:
- Show sellers you’re serious
- Secure viewings faster with agents
- No impact on your credit score
Your mortgage
Notes
Staying secure when looking for property
Ensure you're up to date with our latest advice on how to avoid fraud or scams when looking for property online.
Visit our security centre to find out moreDisclaimer - Property reference aef817ba-a322-471e-9e33-89c513552f38. The information displayed about this property comprises a property advertisement. Rightmove.co.uk makes no warranty as to the accuracy or completeness of the advertisement or any linked or associated information, and Rightmove has no control over the content. This property advertisement does not constitute property particulars. The information is provided and maintained by Bayzos Estate Agents, Coventry. Please contact the selling agent or developer directly to obtain any information which may be available under the terms of The Energy Performance of Buildings (Certificates and Inspections) (England and Wales) Regulations 2007 or the Home Report if in relation to a residential property in Scotland.
*This is the average speed from the provider with the fastest broadband package available at this postcode. The average speed displayed is based on the download speeds of at least 50% of customers at peak time (8pm to 10pm). Fibre/cable services at the postcode are subject to availability and may differ between properties within a postcode. Speeds can be affected by a range of technical and environmental factors. The speed at the property may be lower than that listed above. You can check the estimated speed and confirm availability to a property prior to purchasing on the broadband provider's website. Providers may increase charges. The information is provided and maintained by Decision Technologies Limited. **This is indicative only and based on a 2-person household with multiple devices and simultaneous usage. Broadband performance is affected by multiple factors including number of occupants and devices, simultaneous usage, router range etc. For more information speak to your broadband provider.
Map data ©OpenStreetMap contributors.





