4 bedroom detached house for sale
Marshalswick Lane, St. Albans, Hertfordshire, AL1

- PROPERTY TYPE
Detached
- BEDROOMS
4
- BATHROOMS
1
- SIZE
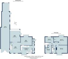
2,146 sq ft
199 sq m
- TENUREDescribes how you own a property. There are different types of tenure - freehold, leasehold, and commonhold.Read more about tenure in our glossary page.
Freehold
Key features
- Four Bedrooms
- Detached
- Generous Plot
- Extension Potential STPP
- Chain Free
- Close to Highly Regarded Schooling
- Excellent Location
Description
Internally, the home offers a light and airy feel throughout, with spacious rooms designed to make the most of the garden aspect. A welcoming entrance/living room sits at the centre of the ground floor, featuring a beautiful fireplace and providing access to the kitchen/breakfast room at the front of the property. The kitchen leads to a useful W/C and pantry, which includes a door opening out to the garden. To the rear, a family room enjoys direct access to the patio and lawns beyond, while the dining room, currently utilised as a home office, also includes a striking feature fireplace. Together, these spaces provide flexibility and warmth, ideally suited for both family living and entertaining.
Upstairs, the property offers four well-proportioned bedrooms, two of which include built-in storage, alongside a family bathroom. The rooms are bright and versatile, offering ample space for family members or the potential to create a guest room or study.
Externally, the home sits on an exceptional plot, with a truly expansive rear garden extending to approximately 0.29 acres. The garden is beautifully laid out in distinct sections, beginning with a paved patio terrace for outdoor dining, leading to a large lawn area, and finally to an allotment-style section with planting beds and a garden shed at the far end. Mature trees and shrubs provide privacy and a sense of tranquillity throughout. To the front, there is generous driveway parking leading to the triple-length garage, ensuring both practicality and convenience.
Marshalswick Lane remains one of St Albans’ most sought-after residential addresses, known for its family-friendly atmosphere, excellent amenities, and strong community feel. The highly-regarded Sandringham School is within walking distance, while nearby Quadrant shopping parade, parks, and cafés provide everyday convenience. St Albans city centre and mainline station are also close at hand, offering a fast and direct service to London St Pancras, making this an exceptional opportunity to secure a substantial home in a prime location.
Brochures
Particulars- COUNCIL TAXA payment made to your local authority in order to pay for local services like schools, libraries, and refuse collection. The amount you pay depends on the value of the property.Read more about council Tax in our glossary page.
- Band: G
- PARKINGDetails of how and where vehicles can be parked, and any associated costs.Read more about parking in our glossary page.
- Yes
- GARDENA property has access to an outdoor space, which could be private or shared.
- Yes
- ACCESSIBILITYHow a property has been adapted to meet the needs of vulnerable or disabled individuals.Read more about accessibility in our glossary page.
- Ask agent
Marshalswick Lane, St. Albans, Hertfordshire, AL1
Add an important place to see how long it'd take to get there from our property listings.
__mins driving to your place
Get an instant, personalised result:
- Show sellers you’re serious
- Secure viewings faster with agents
- No impact on your credit score
Your mortgage
Notes
Staying secure when looking for property
Ensure you're up to date with our latest advice on how to avoid fraud or scams when looking for property online.
Visit our security centre to find out moreDisclaimer - Property reference MAR240252. The information displayed about this property comprises a property advertisement. Rightmove.co.uk makes no warranty as to the accuracy or completeness of the advertisement or any linked or associated information, and Rightmove has no control over the content. This property advertisement does not constitute property particulars. The information is provided and maintained by Bradford & Howley, Marshalswick. Please contact the selling agent or developer directly to obtain any information which may be available under the terms of The Energy Performance of Buildings (Certificates and Inspections) (England and Wales) Regulations 2007 or the Home Report if in relation to a residential property in Scotland.
*This is the average speed from the provider with the fastest broadband package available at this postcode. The average speed displayed is based on the download speeds of at least 50% of customers at peak time (8pm to 10pm). Fibre/cable services at the postcode are subject to availability and may differ between properties within a postcode. Speeds can be affected by a range of technical and environmental factors. The speed at the property may be lower than that listed above. You can check the estimated speed and confirm availability to a property prior to purchasing on the broadband provider's website. Providers may increase charges. The information is provided and maintained by Decision Technologies Limited. **This is indicative only and based on a 2-person household with multiple devices and simultaneous usage. Broadband performance is affected by multiple factors including number of occupants and devices, simultaneous usage, router range etc. For more information speak to your broadband provider.
Map data ©OpenStreetMap contributors.




