Lily Street Farm, Swanwick, Alfreton

- PROPERTY TYPE
- Detached 
- BEDROOMS
- 4 
- BATHROOMS
- 1 
- SIZE
- Ask agent 
- TENUREDescribes how you own a property. There are different types of tenure - freehold, leasehold, and commonhold.Read more about tenure in our glossary page.
- Freehold 
Description
Set on this up and coming new estate, convenient for access to the A38 with onward travel to the M1 at Junction 28 or into Derby.
The BOSWORTH is a spacious 4 bedroom family home. The ground floor hallway leads to a front facing lounge with patio doors leading to the rear garden. Adjacent to the lounge is an open plan kitchen/dining area featuring a separate utility area. On the first floor you will find four good sized bedrooms as well as a large family bathroom. The property has gas central heating, double glazing, parking and a GARAGE.
If you would like to see this home for yourself, feel free to let us know when you are available. We are open 7 days a week.
PLEASE NOTE that the images shown may not be of the actual plot that is for sale, but have been taken from a similar style house on the same development. Reservation fees apply.
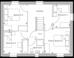
Entrance Hall -
Guest Wc -
Kitchen/Diner - 5.98 x 2.73 (19'7" x 8'11") -
Utility Room -
Lounge - 5.98 x 3.05 (19'7" x 10'0") -
First Floor Landing -
Master Bedroom - 3.10 (max) x 2.07 (10'2" (max) x 6'9") -
Bedroom 2 - 3.19 x 2.88 (max) (10'5" x 9'5" (max)) -
Bedroom 3 - 2.70 x 2.21 (8'10" x 7'3") -
Bedroom 4 - 2.81 x 2.09 (9'2" x 6'10") -
Bathroom -
Front/Driveway -
Garage -
Rear Garden -
Peveril Homes - Please note images and descriptions are for representative purposes only. Peveril Homes reserve the right to make amendments. For further information please contact the Sales Manager. Reservation fees apply.
Important Information - These sales details are produced in good faith with the approval of the vendors and are given as a guide only. If there is any point which is of specific importance to you, please check with us first, particularly if travelling some distance to view the property. Please note that we have not tested any of the appliances or systems at this property and cannot verify them to be in working order. Unless otherwise stated fitted items are excluded from the sale, such as carpets, curtains, light fittings and sheds. These sales details, the descriptions and the measurements therein do not form part of any contract and whilst every effort is made to ensure accuracy this cannot be guaranteed. Nothing in these details shall be deemed to be a statement that the property is in good structural condition or otherwise. Purchasers should satisfy themselves on such matters prior to purchase. Any areas, measurements or distances are given as a guide only. Photographs are taken with a wide angle digital camera. Nothing herein contained shall be a warranty or condition and neither the vendor or ourselves will be liable to the purchaser in respect of any mis-statement or misrepresentation made at or before the date hereof by the vendor, agents or otherwise. Any floor plan included is intended as a guide layout only. Dimensions are approximate. Do Not Scale.
Brochures
Lily Street Farm, Swanwick, AlfretonBrochure- COUNCIL TAXA payment made to your local authority in order to pay for local services like schools, libraries, and refuse collection. The amount you pay depends on the value of the property.Read more about council Tax in our glossary page.
- Band: TBC
- PARKINGDetails of how and where vehicles can be parked, and any associated costs.Read more about parking in our glossary page.
- Yes
- GARDENA property has access to an outdoor space, which could be private or shared.
- Yes
- ACCESSIBILITYHow a property has been adapted to meet the needs of vulnerable or disabled individuals.Read more about accessibility in our glossary page.
- Ask agent
Energy performance certificate - ask agent
Lily Street Farm, Swanwick, Alfreton
Add an important place to see how long it'd take to get there from our property listings.
__mins driving to your place
Get an instant, personalised result:
- Show sellers you’re serious
- Secure viewings faster with agents
- No impact on your credit score
Your mortgage
Notes
Staying secure when looking for property
Ensure you're up to date with our latest advice on how to avoid fraud or scams when looking for property online.
Visit our security centre to find out moreDisclaimer - Property reference 34241073. The information displayed about this property comprises a property advertisement. Rightmove.co.uk makes no warranty as to the accuracy or completeness of the advertisement or any linked or associated information, and Rightmove has no control over the content. This property advertisement does not constitute property particulars. The information is provided and maintained by Hopkins & Dainty, Ticknall. Please contact the selling agent or developer directly to obtain any information which may be available under the terms of The Energy Performance of Buildings (Certificates and Inspections) (England and Wales) Regulations 2007 or the Home Report if in relation to a residential property in Scotland.
*This is the average speed from the provider with the fastest broadband package available at this postcode. The average speed displayed is based on the download speeds of at least 50% of customers at peak time (8pm to 10pm). Fibre/cable services at the postcode are subject to availability and may differ between properties within a postcode. Speeds can be affected by a range of technical and environmental factors. The speed at the property may be lower than that listed above. You can check the estimated speed and confirm availability to a property prior to purchasing on the broadband provider's website. Providers may increase charges. The information is provided and maintained by Decision Technologies Limited. **This is indicative only and based on a 2-person household with multiple devices and simultaneous usage. Broadband performance is affected by multiple factors including number of occupants and devices, simultaneous usage, router range etc. For more information speak to your broadband provider.
Map data ©OpenStreetMap contributors.





