
Sharston Crescent, Knutsford

- PROPERTY TYPE
Semi-Detached
- BEDROOMS
4
- BATHROOMS
1
- SIZE
1,281 sq ft
119 sq m
- TENUREDescribes how you own a property. There are different types of tenure - freehold, leasehold, and commonhold.Read more about tenure in our glossary page.
Freehold
Key features
- No chain- move-in ready four-bedroom semi-detached family home.
- Sympathetically extended and maintained, offering flexible living across two floors. With 4 Bedrooms and a study/dressing room.
- Spacious front living room with open views over the green.
- Extended breakfast kitchen and separate dining room ideal for family living.
- Private rear garden with patio area and direct access to detached garage.
- Garage with EV charger and electronically operated roller door.
- Solar panels providing energy efficiency and lower running costs.
- Quiet crescent location, within walking distance of Knutsford town centre and local amenities.
Description
The property is approached via a beautiful, well-maintained open space with flagged pathway leading to the front entrance. To the rear is a generously sized enclosed garden laid mainly to lawn and bordered by wood-lap fencing and mature trees, offering a private aspect. An extensive patio area provides the perfect opportunity for al fresco dining.
Directions
From Knutsford Rail Station head down Adams Hill and passing Aldi. At the set of lights continue straight onto Brook Street and just prior to The Legh Arms public house turn sharp left on to Mobberley Road Take the first right on to Manor Park South and after a short distance Sharston Crescent can be found on your left hand side.
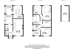
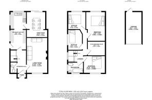
Enclosed Porch
uPVC double glazed windows to front and sides. Front door. Downlights. Tiled floor. Inner door to:-
Hallway
Ceiling light point. radiator. Turning staircase to first floor. Under stairs storage.
Downstairs WC
White low level WC. Wall hung wash hand basin with chrome mixer tap. Ceiling light point. Opaque double glazed window to side. Radiator. Half tiled walls. Wood flooring.
Living Room
Coved ceiling. Two ceiling light points. uPVC double glazed window to front. Feature fireplace housing gas living flame fire. Radiator.
Dining Room
Two ceiling light points. Two wall light points. Radiator. Fitted wall cupboards. uPVC double glazed sliding doors to rear garden. Wood flooring.
Breakfast Kitchen
Fitted with a range of units comprising cupboards and drawers with work surfaces over and matching wall units. 1 1/2 bowl stainless steel sink unit with chrome mixer tap. Built-in oven and four ring gas hob with extractor over. Space and plumbing for dishwasher, washing machine and dryer. Courtesy door to side. Tiled splashback. Radiator. Breakfast bar seating area. Wall mounted boiler. Wood flooring.
Landing
Two ceiling light points. Loft hatch. Opaque uPVC double glazed window to side.
Bedroom
Ceiling light point. Double glazed window to rear. Radiator. Fitted wardrobes and drawers.
Bedroom
Ceiling light point. Double glazed window to rear. Radiator.
Bedroom
Ceiling light point. Double glazed window to front. Radiator.
Bedroom
Ceiling light point. Double glazed window to side. Radiator.
Study/Dressing Room
Ceiling light point.
Bathroom
White suite comprising panelled bath with chrome mixer tap and shower fitment over and glazed screen. Vanity wash hand basin with chrome mixer tap and cupboards under. Low level WC. Chrome heated towel radiator. Downlights. Extractor fan. Opaque double glazed window to side. Tiled walls. Wood effect flooring.
Externally
The property is approached via a beautiful, well-maintained open space with flagged pathway leading to the front entrance. To the rear is a generously sized enclosed garden laid mainly to lawn and bordered by woodlap fencing and mature trees, offering a private aspect. An extensive patio area provides the perfect opportunity for al fresco dining.
Garage
Metal roller door. Light and power. Courtesy door to rear garden.
Brochures
51 Sharston Crescent- COUNCIL TAXA payment made to your local authority in order to pay for local services like schools, libraries, and refuse collection. The amount you pay depends on the value of the property.Read more about council Tax in our glossary page.
- Band: E
- PARKINGDetails of how and where vehicles can be parked, and any associated costs.Read more about parking in our glossary page.
- Garage
- GARDENA property has access to an outdoor space, which could be private or shared.
- Yes
- ACCESSIBILITYHow a property has been adapted to meet the needs of vulnerable or disabled individuals.Read more about accessibility in our glossary page.
- Ask agent
Energy performance certificate - ask agent
Sharston Crescent, Knutsford
Add an important place to see how long it'd take to get there from our property listings.
__mins driving to your place
Get an instant, personalised result:
- Show sellers you’re serious
- Secure viewings faster with agents
- No impact on your credit score
Your mortgage
Notes
Staying secure when looking for property
Ensure you're up to date with our latest advice on how to avoid fraud or scams when looking for property online.
Visit our security centre to find out moreDisclaimer - Property reference 27256. The information displayed about this property comprises a property advertisement. Rightmove.co.uk makes no warranty as to the accuracy or completeness of the advertisement or any linked or associated information, and Rightmove has no control over the content. This property advertisement does not constitute property particulars. The information is provided and maintained by Irlams, Knutsford. Please contact the selling agent or developer directly to obtain any information which may be available under the terms of The Energy Performance of Buildings (Certificates and Inspections) (England and Wales) Regulations 2007 or the Home Report if in relation to a residential property in Scotland.
*This is the average speed from the provider with the fastest broadband package available at this postcode. The average speed displayed is based on the download speeds of at least 50% of customers at peak time (8pm to 10pm). Fibre/cable services at the postcode are subject to availability and may differ between properties within a postcode. Speeds can be affected by a range of technical and environmental factors. The speed at the property may be lower than that listed above. You can check the estimated speed and confirm availability to a property prior to purchasing on the broadband provider's website. Providers may increase charges. The information is provided and maintained by Decision Technologies Limited. **This is indicative only and based on a 2-person household with multiple devices and simultaneous usage. Broadband performance is affected by multiple factors including number of occupants and devices, simultaneous usage, router range etc. For more information speak to your broadband provider.
Map data ©OpenStreetMap contributors.





